20% Off House Plans Sitewide Ends Sunday
20% Off House Plans Sitewide Ends Sunday

House Plan: DFD-11619

See All 20 Photos > (photographs may reflect modified homes)
© copyright by designer
SQ FT
1,468
BEDS
3
BATHS
2
STORIES
2
CARS
0
HOUSE PLANS SALE 
START AT  $876.00
For questions and help, live chat, email or call us at 877-895-5299
Floor Plans
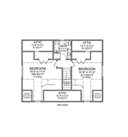
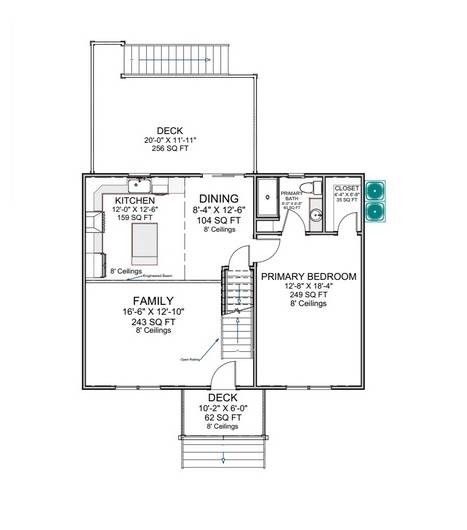
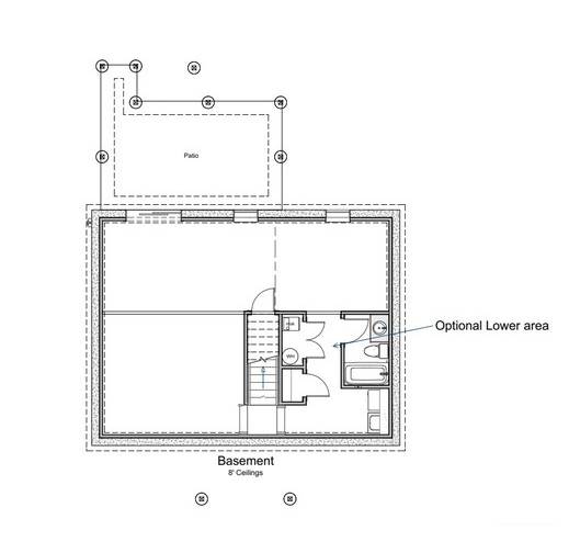
Click to Zoom In on Floor Plan
 
About House Plan 11619:
This charming 1,468-square-foot Country home brings together traditional comfort and modern convenience. The open floor plan highlights an L-shaped kitchen with a central island that flows naturally into the dining and family rooms, making daily living easy and enjoyable. The main-level primary suite features a walk-in closet and private bath access, while two additional bedrooms are tucked away for quiet privacy. A cozy rec room adds space for fun and family time. The covered porch and backyard deck extend the living area outdoors, perfect for casual gatherings. With its efficient design and timeless charm, this home makes an ideal choice for couples or young families ready to settle into a welcoming space.
House Plan Pricing
STEP 1 Select Your Package

PDF Single Build


Digital plans emailed to you in PDF format that allows for printing copies and sharing electronically with contractors, subs, decorators, and more. This package includes a license to build the home one time.

PDF Single Build $1,095
Most recommended package

PDF Unlimited Build


Digital plans with an unlimited build license emailed in PDF format, that allows for printing copies on a home printer or local print shop and sharing with contractors, subs, decorators and more 

PDF Unlimited Build $1,595
Digital plans including unlimited build license

CAD + PDF Unlimited Build


CAD files are a complete set of construction drawings delivered electronically. They can be used for any type of modification—including major design changes and engineering—and include a release granting permission to modify the plan. Most CAD plan orders are emailed the same or next business day.
 
This package also comes with a PDF set of plans and a multi-use building license, granting permission to construct the home an unlimited number of times, along with a copyright release for making modifications and printing unlimited copies.
 
CAD files are provided in .dwg format. For details on the specific CAD program used, please refer to the PLAN DETAILS section located above the floor plan on each plan’s page.

CAD + PDF Unlimited Build $2,095
2D electronic editable computer files
STEP 2 Need To Reverse This Plan?
STEP 3 CHOOSE YOUR FOUNDATION
STEP 4 OPTIONAL ADD-ONS
Subtotal:
$1095
FREE SHIPPING
 
Plan Details
See All Details
Finished Square Footage
850 Sq. Ft.
Main Level:
618 Sq. Ft.
Upper Level:
850 Sq. Ft.
Lower Level:
1,468 Sq. Ft.
Total:
Room Details
3
Bedrooms:
2
Full Baths:
General House Information
2
Number of Stories:
34' 0"
Width:
48' 0"
Depth:
Single
Dwelling Number:
Unfinished Square Footage
62 Sq. Ft.
Porch:
GARAGE
0
Garage Size:
Exterior Style
Cottage
Country
Collections
Affordable
Budget
First Home
Split Bedroom
Foundation
Basement
Crawl Space
Daylight Basement
Monolithic Slab
Slab
Walkout Basement
Framing Information
Stick
Roof Framing:
2x4
Exterior Wall Framing:
Roof Pitch
12/12
Primary:
8/12
Secondary:
Insulation (R)
House And Ceiling Heights
8
First Floor Ceiling:
8
Second Floor Ceiling:
22' 0"
Maximum House Height:
Key Features
Deck
Dining Room
Family Room
Kitchen Island
Laundry 1st Fl
L-Shaped
Primary Bdrm Main Floor
Open Floor Plan
Rec Room
Split Bedrooms
Suited for corner lot
Walk-in Closet

Our Guarantees

  • Only the highest quality plans
  • Int’l Residential Code Compliant
  • Full structural details on all plans
  • Best plan price guarantee
  • Free modification Estimates
  • Builder-ready construction drawings
  • Expert advice from leading designers
  •  PDFs NOW!™ plans in minutes
  • 100% satisfaction guarantee
  • Free Home Building Organizer