15% off ALL House Plans Sitewide
15% off ALL House Plans Sitewide

House Plan: DFD-11622

See All 21 Photos > (photographs may reflect modified homes)
© copyright by designer
SQ FT
1,999
BEDS
3
BATHS
2.5
STORIES
2
CARS
0
HOUSE PLANS SALE 
START AT  $1,015.75
For questions and help, live chat, email or call us at 877-895-5299
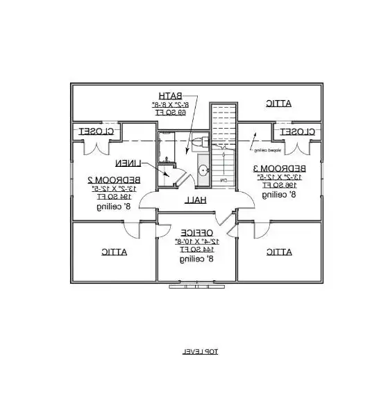
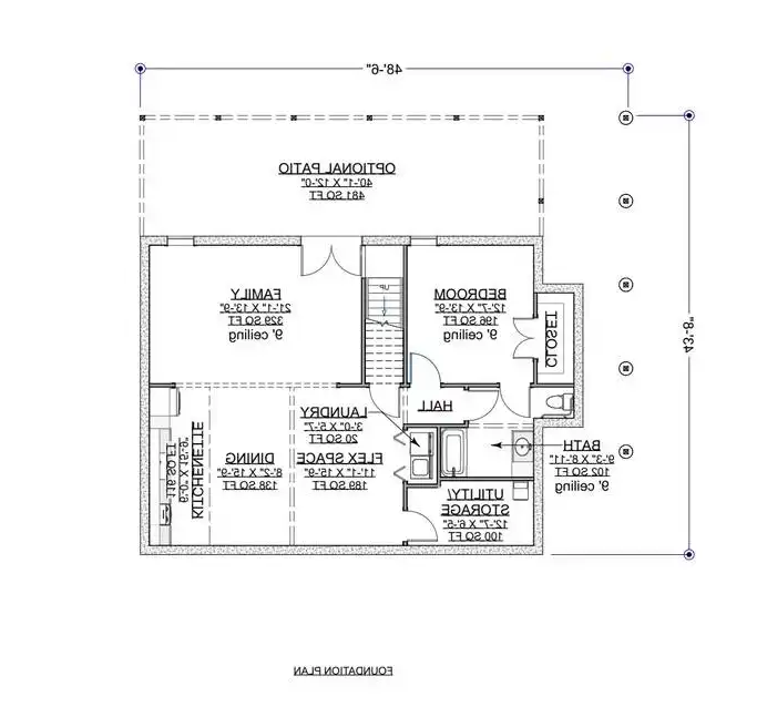
Floor Plans
Click to Zoom In on Floor Plan
 
About House Plan 11622:
This charming 1,999-square-foot Farmhouse combines cozy style with efficient design for today’s families. The open floor plan seamlessly connects the living, dining, and kitchen areas, creating a bright and airy heart of the home. The kitchen features an L-shaped layout with an island and pantry, offering both style and convenience. The main-floor primary suite provides a peaceful retreat with a large walk-in closet and private bath. Upstairs, two additional bedrooms share a full bath and offer space for children, guests, or hobbies. The covered front and rear porches extend living outdoors, perfect for morning coffee or evening gatherings. Blending rustic charm with modern touches, this home welcomes you with warmth and livability at every turn.
House Plan Pricing
STEP 1 Select Your Package

PDF Single Build


Digital plans emailed to you in PDF format that allows for printing copies and sharing electronically with contractors, subs, decorators, and more. This package includes a license to build the home one time.

PDF Single Build $1,195
Most recommended package

PDF Unlimited Build


Digital plans with an unlimited build license emailed in PDF format, that allows for printing copies on a home printer or local print shop and sharing with contractors, subs, decorators and more 

PDF Unlimited Build $1,695
Digital plans including unlimited build license

CAD + PDF Unlimited Build


This plan package is created in AutoCAD and delivered in .DWG format. CAD files are intended for use by design professionals, structural engineers, and builders to update plans for local building codes or to make revisions based on specific needs, lot requirements, and budget considerations. A complimentary PDF copy is included with this package for reference. CAD packages are delivered within 1 to 2 business days.
 
This package also comes with a multi-use building license, granting permission to construct the home an unlimited number of times, along with a copyright release for making revisions and printing unlimited copies.
 
For details on the specific CAD program used, please refer to the PLAN DETAILS section located above the floor plan on each plan page.

CAD + PDF Unlimited Build $2,195
2D electronic editable computer files
STEP 2 Need To Reverse This Plan?
STEP 3 CHOOSE YOUR FOUNDATION
STEP 4 OPTIONAL ADD-ONS
Subtotal:
$1195
FREE SHIPPING
 
Plan Details
See All Details
Finished Square Footage
1,284 Sq. Ft.
Main Level:
715 Sq. Ft.
Upper Level:
1,284 Sq. Ft.
Lower Level:
1,999 Sq. Ft.
Total:
Room Details
3
Bedrooms:
2
Full Baths:
1
Half Baths:
General House Information
2
Number of Stories:
48' 6"
Width:
49' 8"
Depth:
Single
Dwelling Number:
Unfinished Square Footage
GARAGE
0
Garage Size:
Exterior Style
Cottage
Country
Farmhouse
Collections
Affordable
Mountain
Split Bedroom
Foundation
Basement
Crawl Space
Monolithic Slab
Walkout Basement
Framing Information
Stick
Roof Framing:
2x4
Exterior Wall Framing:
Roof Pitch
8/12
Primary:
12/12
Secondary:
Insulation (R)
House And Ceiling Heights
9
First Floor Ceiling:
8
Second Floor Ceiling:
24' 5"
Maximum House Height:
Key Features
Covered Front Porch
Covered Rear Porch
Deck
Dining Room
Family Room
Fireplace
Home Office
Kitchen Island
Laundry 1st Fl
L-Shaped
Primary Bdrm Main Floor
Mud Room
Peninsula / Eating Bar
Split Bedrooms
Storage Space
Suited for corner lot
Walk-in Closet
Walk-in Pantry

Our Guarantees

  • Only the highest quality plans
  • Int’l Residential Code Compliant
  • Full structural details on all plans
  • Best plan price guarantee
  • Free modification Estimates
  • Builder-ready construction drawings
  • Expert advice from leading designers
  •  PDFs NOW!™ plans in minutes
  • 100% satisfaction guarantee
  • Free Home Building Organizer