15% off ALL House Plans Sitewide
15% off ALL House Plans Sitewide

House Plan: DFD-11627

See All 18 Photos > (photographs may reflect modified homes)
© copyright by designer
SQ FT
1,410
BEDS
3
BATHS
2
STORIES
2
CARS
0
HOUSE PLANS SALE 
START AT  $930.75
For questions and help, live chat, email or call us at 877-895-5299
Floor Plans
Click to Zoom In on Floor Plan
 
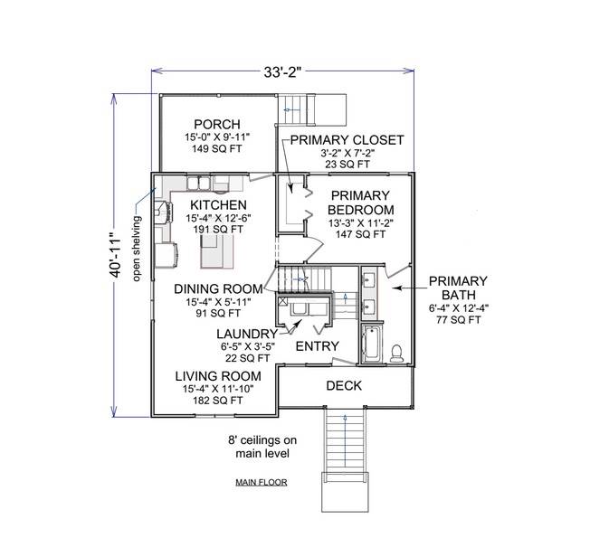
About House Plan 11627:

This charming 1,410 square foot Country style home offers 3 bedrooms and 2 baths in a warm and efficient layout ideal for today’s families. The open-concept kitchen includes a central island and eating bar, flowing easily into the family and dining areas for relaxed entertaining. A main-floor primary suite with a walk-in closet and double vanity provides peaceful comfort, while two additional bedrooms upstairs add flexible living options. The home office, rear porch, and deck add both practicality and charm to the design. With its clean lines and welcoming exterior, this home fits beautifully on a corner lot. Inviting and thoughtfully designed, it’s a perfect blend of cozy cottage charm and modern livability.

House Plan Pricing
STEP 1 Select Your Package

PDF Single Build


Digital plans emailed to you in PDF format that allows for printing copies and sharing electronically with contractors, subs, decorators, and more. This package includes a license to build the home one time.

PDF Single Build $1,095
Most recommended package

PDF Unlimited Build


Digital plans with an unlimited build license emailed in PDF format, that allows for printing copies on a home printer or local print shop and sharing with contractors, subs, decorators and more 

PDF Unlimited Build $1,595
Digital plans including unlimited build license

CAD + PDF Unlimited Build


This plan package is created in AutoCAD and delivered in .DWG format. CAD files are intended for use by design professionals, structural engineers, and builders to update plans for local building codes or to make revisions based on specific needs, lot requirements, and budget considerations. A complimentary PDF copy is included with this package for reference. CAD packages are delivered within 1 to 2 business days.
 
This package also comes with a multi-use building license, granting permission to construct the home an unlimited number of times, along with a copyright release for making revisions and printing unlimited copies.
 
For details on the specific CAD program used, please refer to the PLAN DETAILS section located above the floor plan on each plan page.

CAD + PDF Unlimited Build $2,095
2D electronic editable computer files
STEP 2 Need To Reverse This Plan?
STEP 3 CHOOSE YOUR FOUNDATION
STEP 4 OPTIONAL ADD-ONS
Subtotal:
$1095
FREE SHIPPING
 
Plan Details
See All Details
Finished Square Footage
915 Sq. Ft.
Main Level:
495 Sq. Ft.
Upper Level:
915 Sq. Ft.
Lower Level:
1,410 Sq. Ft.
Total:
Room Details
3
Bedrooms:
2
Full Baths:
General House Information
2
Number of Stories:
33' 2"
Width:
40' 11"
Depth:
Single
Dwelling Number:
Unfinished Square Footage
94 Sq. Ft.
Porch:
GARAGE
0
Garage Size:
Exterior Style
Country
Farmhouse
Traditional
Collections
Affordable
Budget
Empty Nester
First Home
Open Floor Plan
Split Bedroom
Foundation
Basement
Crawl Space
Monolithic Slab
Slab
Walkout Basement
Framing Information
Stick
Roof Framing:
2x4
Exterior Wall Framing:
Roof Pitch
10/12
Primary:
4/12
Secondary:
Insulation (R)
House And Ceiling Heights
8
First Floor Ceiling:
8
Second Floor Ceiling:
24' 6"
Maximum House Height:
Key Features
Deck
Dining Room
Double Vanity Sink
Family Room
Home Office
Kitchen Island
Laundry 1st Fl
L-Shaped
Primary Bdrm Main Floor
Open Floor Plan
Peninsula / Eating Bar
Rear Porch
Split Bedrooms
Storage Space
Suited for corner lot
Walk-in Closet

Our Guarantees

  • Only the highest quality plans
  • Int’l Residential Code Compliant
  • Full structural details on all plans
  • Best plan price guarantee
  • Free modification Estimates
  • Builder-ready construction drawings
  • Expert advice from leading designers
  •  PDFs NOW!™ plans in minutes
  • 100% satisfaction guarantee
  • Free Home Building Organizer