15% off ALL House Plans Sitewide
15% off ALL House Plans Sitewide

House Plan: DFD-11648

See All 15 Photos > (photographs may reflect modified homes)
© copyright by designer
SQ FT
1,522
BEDS
3
BATHS
2.5
STORIES
2
CARS
0
HOUSE PLANS SALE 
START AT  $1,015.75
For questions and help, live chat, email or call us at 877-895-5299
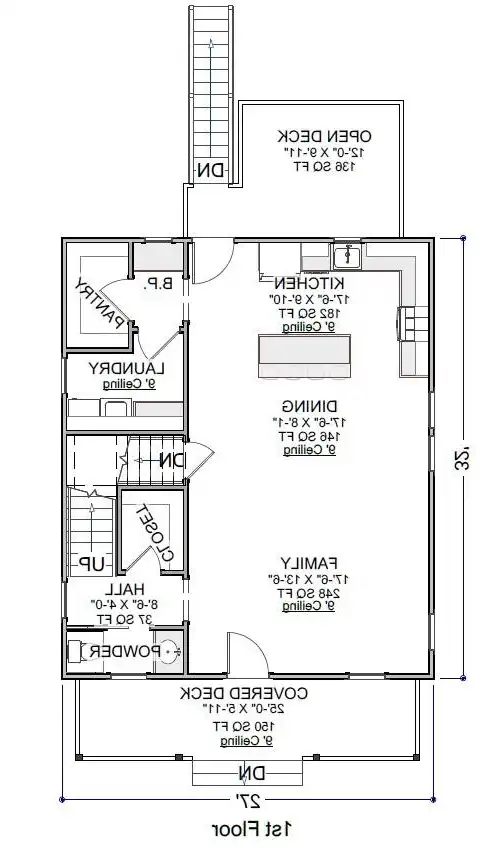
Floor Plans
Click to Zoom In on Floor Plan
 
About House Plan 11648:
Designed for modern family living, this welcoming two-story home includes 1,522 heated square feet of well-planned space. The open floor plan brings together the kitchen, dining area, and family room for effortless connection. A large island and butler’s pantry enhance both function and charm in the heart of the home. Upstairs, the primary suite features a walk-in closet and double vanity, while two additional bedrooms offer cozy, versatile spaces. The covered front porch creates a welcoming first impression, and the rear deck invites outdoor gatherings or quiet evenings under the stars. With first-floor laundry and a family-friendly flow, this home combines everyday convenience with timeless appeal. You’ll love how easily this space adapts to both busy days and peaceful weekends.
House Plan Pricing
STEP 1 Select Your Package

PDF Single Build


Digital plans emailed to you in PDF format that allows for printing copies and sharing electronically with contractors, subs, decorators, and more. This package includes a license to build the home one time.

PDF Single Build $1,195
Most recommended package

PDF Unlimited Build


Digital plans with an unlimited build license emailed in PDF format, that allows for printing copies on a home printer or local print shop and sharing with contractors, subs, decorators and more 

PDF Unlimited Build $1,695
Digital plans including unlimited build license

CAD + PDF Unlimited Build


This plan package is created in AutoCAD and delivered in .DWG format. CAD files are intended for use by design professionals, structural engineers, and builders to update plans for local building codes or to make revisions based on specific needs, lot requirements, and budget considerations. A complimentary PDF copy is included with this package for reference. CAD packages are delivered within 1 to 2 business days.
 
This package also comes with a multi-use building license, granting permission to construct the home an unlimited number of times, along with a copyright release for making revisions and printing unlimited copies.
 
For details on the specific CAD program used, please refer to the PLAN DETAILS section located above the floor plan on each plan page.

CAD + PDF Unlimited Build $2,195
2D electronic editable computer files
STEP 2 Need To Reverse This Plan?
STEP 3 CHOOSE YOUR FOUNDATION
STEP 4 OPTIONAL ADD-ONS
Subtotal:
$1195
FREE SHIPPING
 
Plan Details
See All Details
Finished Square Footage
761 Sq. Ft.
Main Level:
761 Sq. Ft.
Upper Level:
761 Sq. Ft.
Lower Level:
1,522 Sq. Ft.
Total:
Room Details
3
Bedrooms:
2
Full Baths:
1
Half Baths:
General House Information
2
Number of Stories:
27' 0"
Width:
46' 0"
Depth:
Single
Dwelling Number:
Unfinished Square Footage
150 Sq. Ft.
Porch:
136 Sq. Ft.
Deck:
GARAGE
0
Garage Size:
Exterior Style
Country
Craftsman
Farmhouse
Traditional
Collections
Open Floor Plan
Split Bedroom
Foundation
Basement
Crawl Space
Daylight Basement
Monolithic Slab
Slab
Stem Wall Slab
Walkout Basement
Framing Information
Stick
Roof Framing:
2x4
Exterior Wall Framing:
Roof Pitch
10/12
Primary:
6/12
Secondary:
Insulation (R)
House And Ceiling Heights
8
First Floor Ceiling:
8
Second Floor Ceiling:
26' 8"
Maximum House Height:
Key Features
Butler's Pantry
Covered Front Porch
Deck
Dining Room
Double Vanity Sink
Family Room
Family Style
Kitchen Island
Laundry 1st Fl
L-Shaped
Primary Bdrm Upstairs
Open Floor Plan
Peninsula / Eating Bar
Suited for corner lot
Walk-in Closet

Our Guarantees

  • Only the highest quality plans
  • Int’l Residential Code Compliant
  • Full structural details on all plans
  • Best plan price guarantee
  • Free modification Estimates
  • Builder-ready construction drawings
  • Expert advice from leading designers
  •  PDFs NOW!™ plans in minutes
  • 100% satisfaction guarantee
  • Free Home Building Organizer