20% off ALL House Plans Sitewide
20% off ALL House Plans Sitewide

House Plan: DFD-11657

See All 20 Photos > (photographs may reflect modified homes)
© copyright by designer
SQ FT
1,531
BEDS
3
BATHS
2.5
STORIES
2
CARS
0
HOUSE PLANS SALE 
START AT  $916.00
For questions and help, live chat, email or call us at 877-895-5299
Floor Plans
Click to Zoom In on Floor Plan
 
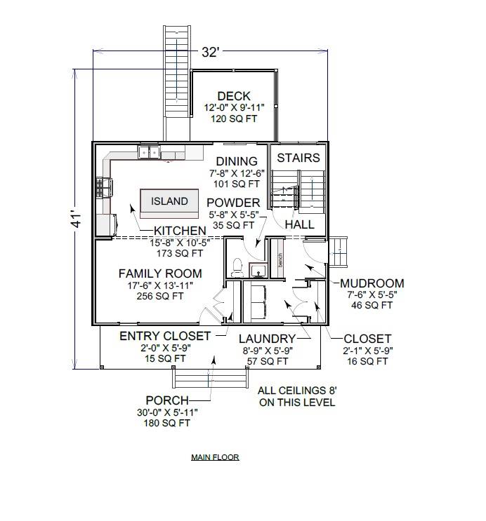
About House Plan 11657:
Designed with family in mind, this delightful two-story home offers 1,531 heated square feet of well-balanced space. The main floor welcomes you with an open living area that connects the kitchen, dining, and family rooms for easy flow. The kitchen island and peninsula bar create the perfect space for casual meals or entertaining friends. Upstairs, the primary suite includes a private bath and generous walk-in closet, while two additional bedrooms share a convenient full bath. A welcoming front porch and rear deck provide inviting spots to enjoy the outdoors. The mud room and first-floor laundry add to the home’s practical appeal. Comfortable, stylish, and designed for everyday living, this home makes it easy to feel right at home from day one.
House Plan Pricing
STEP 1 Select Your Package

PDF Single Build


Digital plans emailed to you in PDF format that allows for printing copies and sharing electronically with contractors, subs, decorators, and more. This package includes a license to build the home one time.

PDF Single Build $1,145
Most recommended package

PDF Unlimited Build


Digital plans with an unlimited build license emailed in PDF format, that allows for printing copies on a home printer or local print shop and sharing with contractors, subs, decorators and more 

PDF Unlimited Build $1,645
Digital plans including unlimited build license

CAD + PDF Unlimited Build


CAD files are a complete set of construction drawings delivered electronically. They can be used for any type of modification—including major design changes and engineering—and include a release granting permission to modify the plan. Most CAD plan orders are emailed the same or next business day.
 
This package also comes with a PDF set of plans and a multi-use building license, granting permission to construct the home an unlimited number of times, along with a copyright release for making modifications and printing unlimited copies.
 
CAD files are provided in .dwg format. For details on the specific CAD program used, please refer to the PLAN DETAILS section located above the floor plan on each plan’s page.

CAD + PDF Unlimited Build $2,145
2D electronic editable computer files
STEP 2 Need To Reverse This Plan?
STEP 3 CHOOSE YOUR FOUNDATION
STEP 4 OPTIONAL ADD-ONS
Subtotal:
$1145
FREE SHIPPING
 
Plan Details
See All Details
Finished Square Footage
800 Sq. Ft.
Main Level:
731 Sq. Ft.
Upper Level:
800 Sq. Ft.
Lower Level:
1,531 Sq. Ft.
Total:
Room Details
3
Bedrooms:
2
Full Baths:
1
Half Baths:
General House Information
2
Number of Stories:
32' 0"
Width:
41' 0"
Depth:
Single
Dwelling Number:
Unfinished Square Footage
180 Sq. Ft.
Porch:
96 Sq. Ft.
Deck:
GARAGE
0
Garage Size:
Exterior Style
Colonial
Cottage
Country
Farmhouse
Traditional
Collections
Affordable
Budget
First Home
Foundation
Basement
Crawl Space
Monolithic Slab
Slab
Walkout Basement
Framing Information
Stick
Roof Framing:
2x4
Exterior Wall Framing:
Roof Pitch
8/12
Primary:
6/12
Secondary:
Insulation (R)
House And Ceiling Heights
8
First Floor Ceiling:
8
Second Floor Ceiling:
24' 7"
Maximum House Height:
Key Features
Deck
Dining Room
Double Vanity Sink
Family Room
Family Style
Foyer
Front Porch
Kitchen Island
Laundry 1st Fl
L-Shaped
Primary Bdrm Upstairs
Mud Room
Peninsula / Eating Bar
Suited for sloping lot
Walk-in Closet

Our Guarantees

  • Only the highest quality plans
  • Int’l Residential Code Compliant
  • Full structural details on all plans
  • Best plan price guarantee
  • Free modification Estimates
  • Builder-ready construction drawings
  • Expert advice from leading designers
  •  PDFs NOW!™ plans in minutes
  • 100% satisfaction guarantee
  • Free Home Building Organizer