20% off ALL House Plans Sitewide
20% off ALL House Plans Sitewide

House Plan: DFD-11666

See All 13 Photos > (photographs may reflect modified homes)
© copyright by designer
SQ FT
1,272
BEDS
4
BATHS
3
STORIES
1
CARS
1
HOUSE PLANS SALE 
START AT  $876.00
For questions and help, live chat, email or call us at 877-895-5299
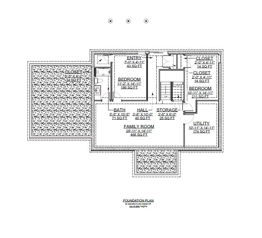
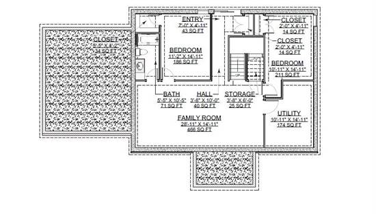
Floor Plans
Click to Zoom In on Floor Plan
 
About House Plan 11666:
At 1,272 square feet, this inviting ranch home makes the most of every inch. The heart of the home is the open living area, where the kitchen, dining space, and family room come together for effortless entertaining. A large kitchen island provides a central hub for gatherings, while the home office offers flexibility for remote work or study. The main-floor primary suite and split-bedroom layout ensure peace and privacy for everyone. Thoughtful details like a mudroom and front-entry garage add everyday convenience. A cozy front porch and back deck extend your living space outdoors, making this home perfect for relaxation and connection. It’s a warm, practical design that fits today’s family lifestyle beautifully.
House Plan Pricing
STEP 1 Select Your Package

PDF Single Build


Digital plans emailed to you in PDF format that allows for printing copies and sharing electronically with contractors, subs, decorators, and more. This package includes a license to build the home one time.

PDF Single Build $1,095
Most recommended package

PDF Unlimited Build


Digital plans with an unlimited build license emailed in PDF format, that allows for printing copies on a home printer or local print shop and sharing with contractors, subs, decorators and more 

PDF Unlimited Build $1,595
Digital plans including unlimited build license

CAD + PDF Unlimited Build


This plan package is created in AutoCAD and delivered in .DWG format. CAD files are intended for use by design professionals, structural engineers, and builders to update plans for local building codes or to make revisions based on specific needs, lot requirements, and budget considerations. A complimentary PDF copy is included with this package for reference. CAD packages are delivered within 1 to 2 business days.
 
This package also comes with a multi-use building license, granting permission to construct the home an unlimited number of times, along with a copyright release for making revisions and printing unlimited copies.
 
For details on the specific CAD program used, please refer to the PLAN DETAILS section located above the floor plan on each plan page.

CAD + PDF Unlimited Build $2,095
2D electronic editable computer files
STEP 2 Need To Reverse This Plan?
STEP 3 CHOOSE YOUR FOUNDATION
STEP 4 OPTIONAL ADD-ONS
Subtotal:
$1095
FREE SHIPPING
 
Plan Details
See All Details
Finished Square Footage
1,272 Sq. Ft.
Main Level:
1,450 Sq. Ft.
Lower Level:
1,272 Sq. Ft.
Total:
Room Details
4
Bedrooms:
3
Full Baths:
General House Information
1
Number of Stories:
62' 0"
Width:
50' 0"
Depth:
Single
Dwelling Number:
Unfinished Square Footage
480 Sq. Ft.
Garage:
112 Sq. Ft.
Porch:
GARAGE
Front
Garage Location:
1
Garage Size:
Exterior Style
Ranch
Southern
Traditional
Collections
Accessible
Affordable
First Home
Open Floor Plan
Split Bedroom
Foundation
Basement
Crawl Space
Framing Information
Stick
Roof Framing:
2x4
Exterior Wall Framing:
Roof Pitch
8/12
Primary:
Insulation (R)
House And Ceiling Heights
9
First Floor Ceiling:
9
Second Floor Ceiling:
20' 9"
Maximum House Height:
Key Features
Attached
Deck
Family Room
Front Porch
Front-entry
Home Office
Kitchen Island
Laundry 1st Fl
L-Shaped
Primary Bdrm Main Floor
Mud Room
Open Floor Plan
Peninsula / Eating Bar
Split Bedrooms
Storage Space
Suited for corner lot
Walk-in Closet

Our Guarantees

  • Only the highest quality plans
  • Int’l Residential Code Compliant
  • Full structural details on all plans
  • Best plan price guarantee
  • Free modification Estimates
  • Builder-ready construction drawings
  • Expert advice from leading designers
  •  PDFs NOW!™ plans in minutes
  • 100% satisfaction guarantee
  • Free Home Building Organizer