House Plan: DFD-11672

See All 5 Photos > (photographs may reflect modified homes)
© copyright by designer
SQ FT
1,319
BEDS
3
BATHS
2
STORIES
1
CARS
2
PLANS FROM $2,050
For questions and help, live chat, email or call us at 877-895-5299
Floor Plans
Click to Zoom In on Floor Plan
 
About House Plan 11672:
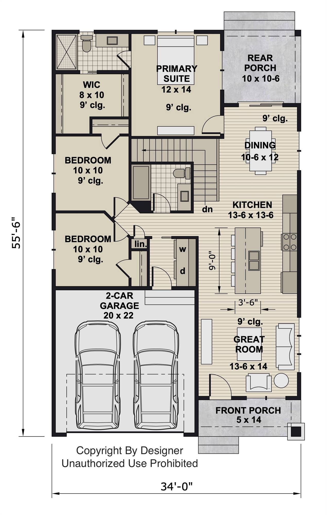
House Plan 11672 delivers classic country farmhouse appeal paired with a practical, efficient layout. The main level showcases an open-concept great room, kitchen, and dining space designed for easy living and entertaining. The kitchen island provides additional workspace while keeping the layout open and connected. The primary suite is located on the main floor and features a walk-in closet for everyday convenience. Two secondary bedrooms share access to a full bathroom, creating a comfortable family-style bedroom arrangement. The unfinished lower level adds valuable flexibility with space for a future family room, bedroom, and storage. Covered front and rear porches enhance the home’s charm while extending the living space outdoors.
House Plan Pricing
STEP 1 Select Your Package

PDF Single Build


Digital plans emailed to you in PDF format that allows for printing copies and sharing electronically with contractors, subs, decorators, and more. This package includes a license to build the home one time.

PDF Single Build $2,050
Most recommended package

5 Printed Sets


Five Printed Sets of Residential Construction Drawings are typically 24” x 36” documents and come with a license to construct a single residence shipped to a physical address. Keep in mind PDF Plan Packages are our most popular choice which allows you to print as many copies as you need and to electronically send files to your builder, subcontractors, etc.

5 Printed Sets $2,250
Five printed sets of house plans

8 Printed Sets


Eight Printed Sets of Construction Drawings, typically 24” x 36” documents, with a license to construct a single residence shipped to your physical address. PDF Plan Packages are our most popular choice which allows you to print as many copies as you need and to electronically send files to your builder, subcontractors, bank/mortgage reps, material stores, decorators and more.

8 Printed Sets $2,350
Eight printed sets of house plans

5 Printed Sets + PDF


Digital plan emailed to you in PDF format that allows for printing copies on a home printer or local print shop and sharing with contractors, subs, decorators, and more. PLUS five printed sets shipped and delivered 3-5 business days.

5 Printed Sets + PDF $2,350
Digital plans plus 5 printed sets

CAD + PDF Single Build


CAD files are a complete set of construction drawings delivered electronically. They can be used for any type of modification—including major design changes and engineering—and include a release granting permission to modify the plan. Most CAD plan orders are emailed the same or next business day.
 
This package also comes with a PDF set of plans and a copyright release for making modifications and printing unlimited copies.
 
CAD files are provided in .dwg format. For details on the specific CAD program used, please refer to the PLAN DETAILS section located above the floor plan on each plan’s page.

CAD + PDF Single Build $2,700
2D electronic editable computer files
STEP 2 Need To Reverse This Plan?
STEP 3 CHOOSE YOUR FOUNDATION
STEP 4 OPTIONAL ADD-ONS
Subtotal:
$2050
FREE SHIPPING
 
Plan Details
See All Details
Finished Square Footage
1,319 Sq. Ft.
Main Level:
684 Sq. Ft.
Lower Level:
1,319 Sq. Ft.
Total:
Room Details
3
Bedrooms:
2
Full Baths:
General House Information
1
Number of Stories:
34'
Width:
55'
Depth:
Single
Dwelling Number:
None
Bonus Access:
Unfinished Square Footage
463 Sq. Ft.
Garage:
70 Sq. Ft.
Front Porch:
105 Sq. Ft.
Rear Porch:
GARAGE
Front
Garage Location:
2
Garage Size:
Exterior Style
Farmhouse
Ranch
Collections
Affordable
Kitchens
Primary Suites
Open Floor Plan
Outdoor Living
Foundation
Basement
Crawlspace
Slab Foundation
Walkout Basement
Framing Information
Truss
Roof Framing:
2x6
Exterior Wall Framing:
Insulation (R)
House And Ceiling Heights
9
First Floor Ceiling:
Key Features
Attached
Covered Front Porch
Covered Rear Porch
Dining Room
Family Room
Family Style
Front-entry
Great Room
Kitchen Island
Laundry 1st Fl
Primary Bdrm Main Floor
Open Floor Plan
Peninsula / Eating Bar
Storage Space
Unfinished Space
Walk-in Closet

Our Guarantees

  • Only the highest quality plans
  • Int’l Residential Code Compliant
  • Full structural details on all plans
  • Best plan price guarantee
  • Free modification Estimates
  • Builder-ready construction drawings
  • Expert advice from leading designers
  •  PDFs NOW!™ plans in minutes
  • 100% satisfaction guarantee
  • Free Home Building Organizer