15% off ALL House Plans Sitewide
15% off ALL House Plans Sitewide

House Plan: DFD-11679

See All 16 Photos > (photographs may reflect modified homes)
© copyright by designer
SQ FT
1,426
BEDS
3
BATHS
2
STORIES
2
CARS
0
HOUSE PLANS SALE 
START AT  $973.25
For questions and help, live chat, email or call us at 877-895-5299
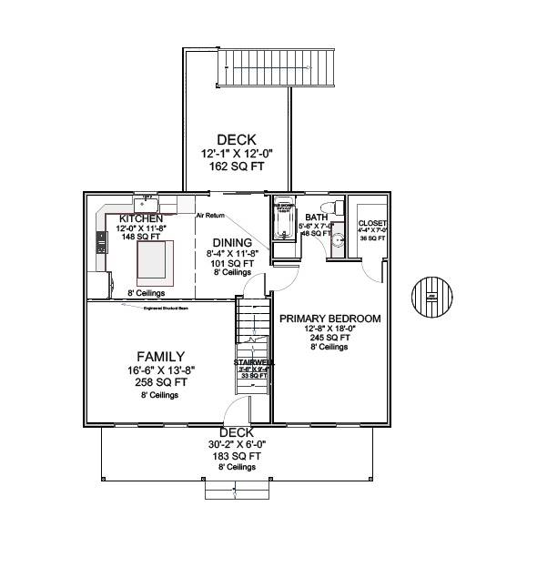
Floor Plans
Click to Zoom In on Floor Plan
 
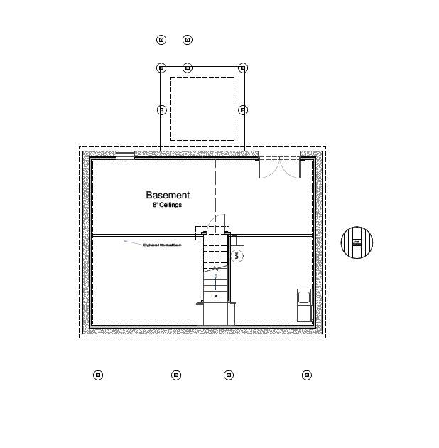
About House Plan 11679:
This 1,426-square-foot design blends cozy living spaces with thoughtful details that make everyday life simple and comfortable. The open floor plan centers around an L-shaped kitchen with an island and bar seating, ideal for casual dining and entertaining. The primary suite rests on the main floor, offering quiet seclusion, while the upstairs bedrooms provide space for family or guests. A spacious family room and adjoining dining area create a bright, open feel throughout. Outdoor living is equally inviting, with a covered porch and rear deck to enjoy in every season. Blending warmth, balance, and functionality, this Cottage-style home is a perfect fit for modern family living.
House Plan Pricing
STEP 1 Select Your Package

PDF Single Build


Digital plans emailed to you in PDF format that allows for printing copies and sharing electronically with contractors, subs, decorators, and more. This package includes a license to build the home one time.

PDF Single Build $1,145
Most recommended package

PDF Unlimited Build


Digital plans with an unlimited build license emailed in PDF format, that allows for printing copies on a home printer or local print shop and sharing with contractors, subs, decorators and more 

PDF Unlimited Build $1,645
Digital plans including unlimited build license

CAD + PDF Unlimited Build


This plan package is created in AutoCAD and delivered in .DWG format. CAD files are intended for use by design professionals, structural engineers, and builders to update plans for local building codes or to make revisions based on specific needs, lot requirements, and budget considerations. A complimentary PDF copy is included with this package for reference. CAD packages are delivered within 1 to 2 business days.
 
This package also comes with a multi-use building license, granting permission to construct the home an unlimited number of times, along with a copyright release for making revisions and printing unlimited copies.
 
For details on the specific CAD program used, please refer to the PLAN DETAILS section located above the floor plan on each plan page.

CAD + PDF Unlimited Build $2,145
2D electronic editable computer files
STEP 2 Need To Reverse This Plan?
STEP 3 CHOOSE YOUR FOUNDATION
STEP 4 OPTIONAL ADD-ONS
Subtotal:
$1145
FREE SHIPPING
 
Plan Details
See All Details
Finished Square Footage
847 Sq. Ft.
Main Level:
579 Sq. Ft.
Upper Level:
847 Sq. Ft.
Lower Level:
1,426 Sq. Ft.
Total:
Room Details
3
Bedrooms:
2
Full Baths:
General House Information
2
Number of Stories:
34' 0"
Width:
44' 0"
Depth:
Single
Dwelling Number:
Unfinished Square Footage
183 Sq. Ft.
Porch:
162 Sq. Ft.
Deck:
GARAGE
0
Garage Size:
Exterior Style
Cottage
Country
Craftsman
Traditional
Collections
Affordable
Budget
First Home
Split Bedroom
Foundation
Basement
Crawl Space
Daylight Basement
Monolithic Slab
Slab
Stem Wall Slab
Walkout Basement
Framing Information
Stick
Roof Framing:
2x4
Exterior Wall Framing:
Roof Pitch
8/12
Primary:
4/12
Secondary:
Insulation (R)
House And Ceiling Heights
8
First Floor Ceiling:
8
Second Floor Ceiling:
23' 2"
Maximum House Height:
Key Features
Deck
Dining Room
Family Room
Kitchen Island
Laundry 1st Fl
L-Shaped
Primary Bdrm Main Floor
Peninsula / Eating Bar
Split Bedrooms
Suited for corner lot
Walk-in Closet

Our Guarantees

  • Only the highest quality plans
  • Int’l Residential Code Compliant
  • Full structural details on all plans
  • Best plan price guarantee
  • Free modification Estimates
  • Builder-ready construction drawings
  • Expert advice from leading designers
  •  PDFs NOW!™ plans in minutes
  • 100% satisfaction guarantee
  • Free Home Building Organizer