15% off ALL House Plans Sitewide
15% off ALL House Plans Sitewide

House Plan: DFD-11680

See All 18 Photos > (photographs may reflect modified homes)
© copyright by designer
SQ FT
1,614
BEDS
3
BATHS
2.5
STORIES
2
CARS
2
HOUSE PLANS SALE 
START AT  $973.25
For questions and help, live chat, email or call us at 877-895-5299
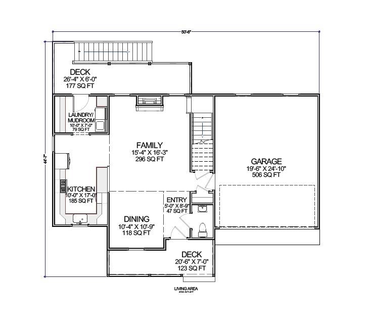
Floor Plans
Click to Zoom In on Floor Plan
 
About House Plan 11680:
Offering 1,614 square feet of thoughtfully designed space, this lovely two-story home welcomes you with timeless charm and modern functionality. The family-friendly layout includes a U-shaped kitchen, open dining area, and a cozy family room with a fireplace. Upstairs, the primary suite is a true retreat with his and hers closets and a beautifully appointed bath. Two more bedrooms ensure plenty of room for everyone, while the bonus room provides flexible space for work or play. Convenient features like the main-floor laundry and mudroom keep life organized and easy. Outdoor living is encouraged with a relaxing deck and inviting front porch perfect for unwinding. Designed with warmth and livability in mind, this home offers lasting comfort for years to come.
House Plan Pricing
STEP 1 Select Your Package

PDF Single Build


Digital plans emailed to you in PDF format that allows for printing copies and sharing electronically with contractors, subs, decorators, and more. This package includes a license to build the home one time.

PDF Single Build $1,145
Most recommended package

PDF Unlimited Build


Digital plans with an unlimited build license emailed in PDF format, that allows for printing copies on a home printer or local print shop and sharing with contractors, subs, decorators and more 

PDF Unlimited Build $1,645
Digital plans including unlimited build license

CAD + PDF Unlimited Build


This plan package is created in AutoCAD and delivered in .DWG format. CAD files are intended for use by design professionals, structural engineers, and builders to update plans for local building codes or to make revisions based on specific needs, lot requirements, and budget considerations. A complimentary PDF copy is included with this package for reference. CAD packages are delivered within 1 to 2 business days.
 
This package also comes with a multi-use building license, granting permission to construct the home an unlimited number of times, along with a copyright release for making revisions and printing unlimited copies.
 
For details on the specific CAD program used, please refer to the PLAN DETAILS section located above the floor plan on each plan page.

CAD + PDF Unlimited Build $2,145
2D electronic editable computer files
STEP 2 Need To Reverse This Plan?
STEP 3 CHOOSE YOUR FOUNDATION
STEP 4 OPTIONAL ADD-ONS
Subtotal:
$1145
FREE SHIPPING
 
Plan Details
See All Details
Finished Square Footage
839 Sq. Ft.
Main Level:
775 Sq. Ft.
Upper Level:
839 Sq. Ft.
Lower Level:
1,614 Sq. Ft.
Total:
Room Details
3
Bedrooms:
2
Full Baths:
1
Half Baths:
General House Information
2
Number of Stories:
50' 7"
Width:
44' 7"
Depth:
Single
Dwelling Number:
2nd Floor
Bonus Access:
Unfinished Square Footage
506 Sq. Ft.
Garage:
123 Sq. Ft.
Front Porch:
177 Sq. Ft.
Deck:
333 Sq. Ft.
Bonus Room:
GARAGE
Front
Garage Location:
2
Garage Size:
Exterior Style
Colonial
Farmhouse
Modern Farmhouse
Traditional
Collections
Affordable
First Home
Kitchens
Open Floor Plan
Foundation
Basement
Crawl Space
Daylight Basement
Monolithic Slab
Slab
Stem Wall Slab
Walkout Basement
Framing Information
Stick
Roof Framing:
2x4
Exterior Wall Framing:
Roof Pitch
10/12
Primary:
12/12
Secondary:
Insulation (R)
House And Ceiling Heights
9
First Floor Ceiling:
8
Second Floor Ceiling:
29' 6"
Maximum House Height:
Key Features
Attached
Bonus Room
Country Kitchen
Deck
Dining Room
Double Vanity Sink
Family Room
Family Style
Fireplace
Front-entry
His and Hers Primary Closets
Laundry 1st Fl
Primary Bdrm Upstairs
Mud Room
Open Floor Plan
Storage Space
Suited for corner lot
U-Shaped
Walk-in Closet

Our Guarantees

  • Only the highest quality plans
  • Int’l Residential Code Compliant
  • Full structural details on all plans
  • Best plan price guarantee
  • Free modification Estimates
  • Builder-ready construction drawings
  • Expert advice from leading designers
  •  PDFs NOW!™ plans in minutes
  • 100% satisfaction guarantee
  • Free Home Building Organizer