20% off ALL House Plans Sitewide
20% off ALL House Plans Sitewide

House Plan: DFD-11705

See All 16 Photos > (photographs may reflect modified homes)
© copyright by designer
SQ FT
1,316
BEDS
3
BATHS
3
STORIES
2
CARS
0
HOUSE PLANS SALE 
START AT  $876.00
For questions and help, live chat, email or call us at 877-895-5299
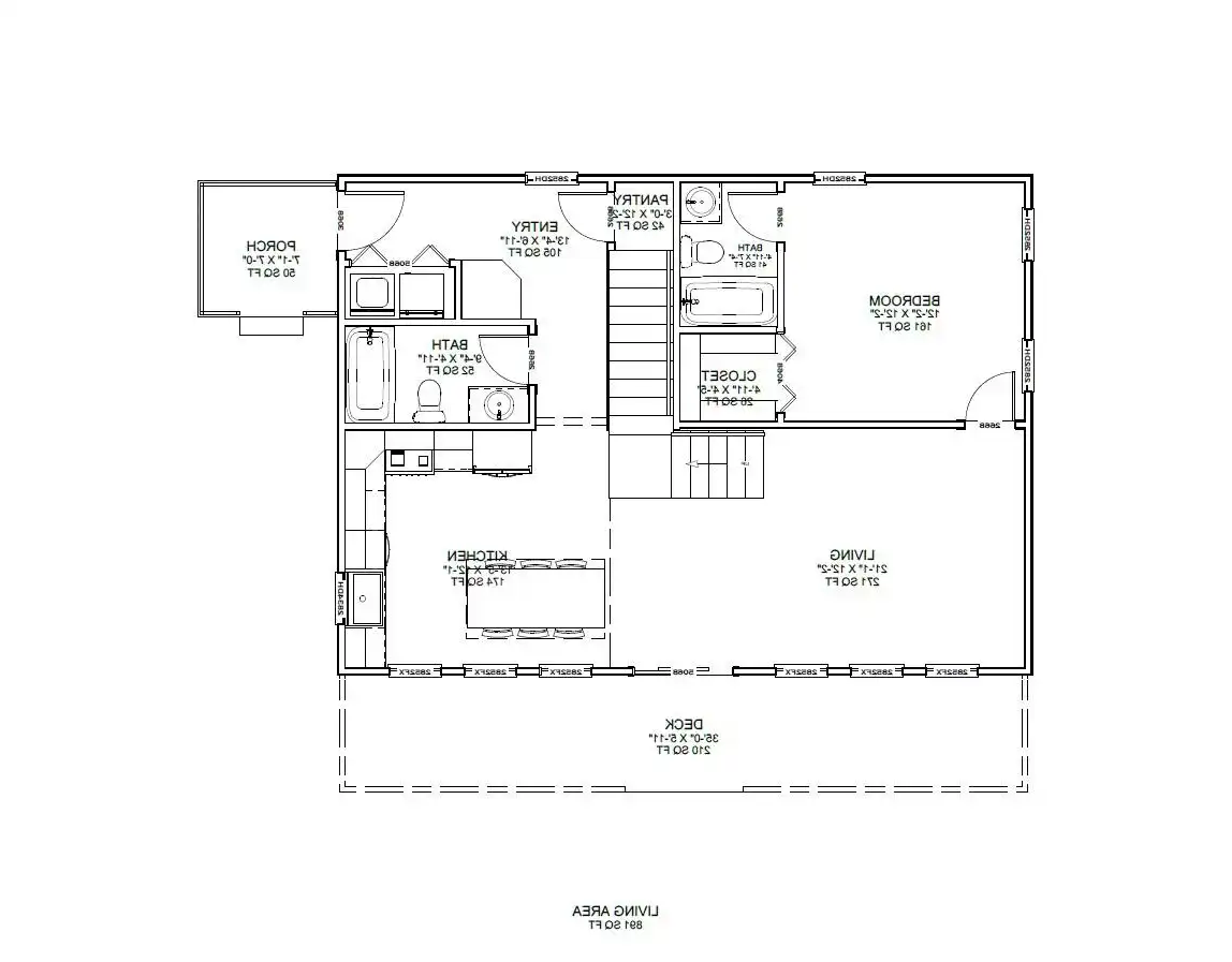
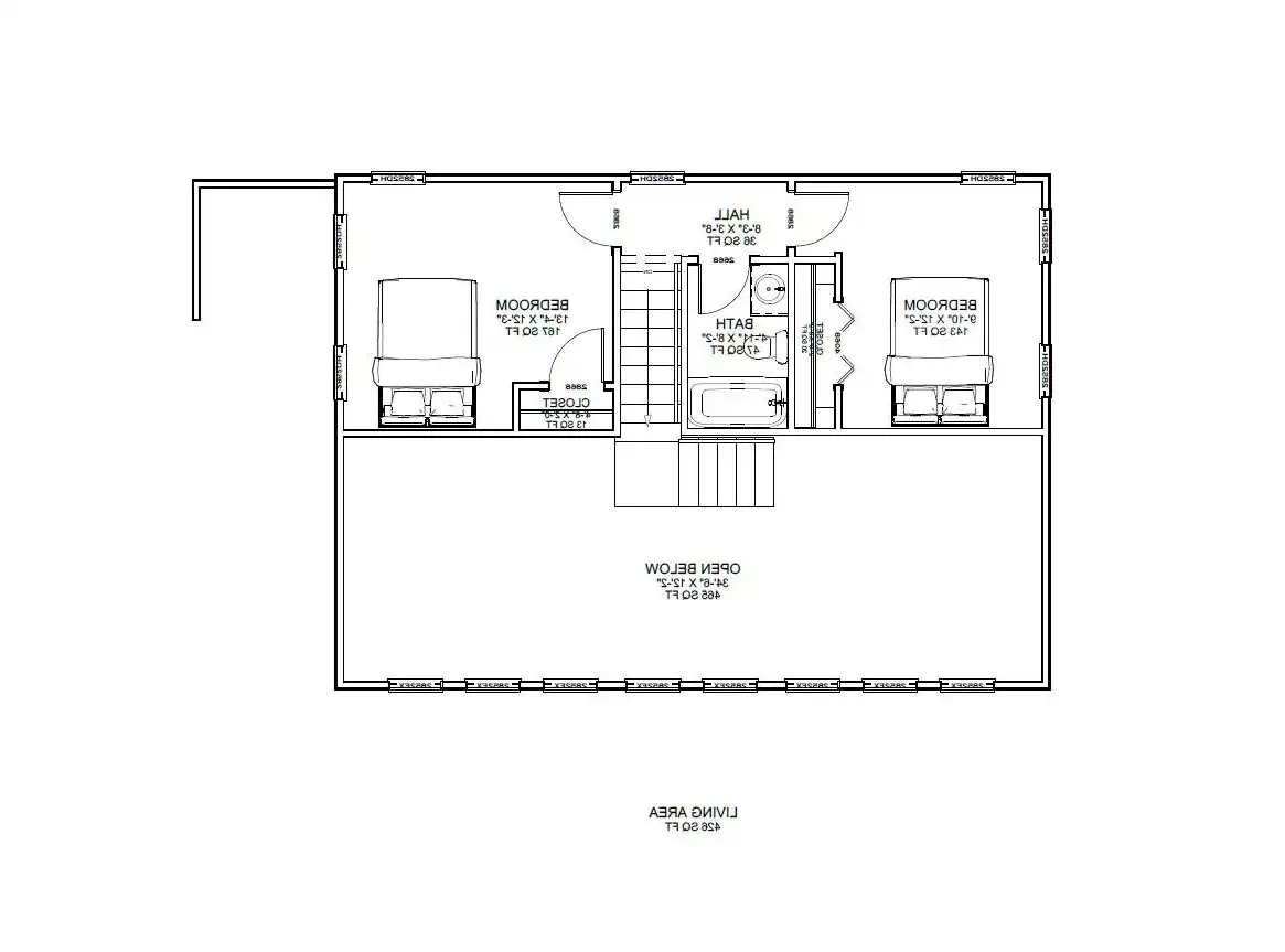
Floor Plans
Click to Zoom In on Floor Plan
 
About House Plan 11705:
This charming 1,316 square foot residence delivers a welcoming blend of comfort and convenience. The open-concept main floor centers around an L-shaped kitchen with an island and peninsula eating bar, ideal for casual meals and gatherings. The primary suite is located on the main level, offering privacy and a generous walk-in closet. Upstairs, two bedrooms provide flexible living options, perfect for children, guests, or a home office. A formal living room and mudroom add both style and practicality. Outdoor enjoyment is encouraged with a covered porch and rear deck, creating relaxing spaces to unwind. This home combines timeless appeal with a layout tailored for today’s lifestyle.
House Plan Pricing
STEP 1 Select Your Package

PDF Single Build


Digital plans emailed to you in PDF format that allows for printing copies and sharing electronically with contractors, subs, decorators, and more. This package includes a license to build the home one time.

PDF Single Build $1,095
Most recommended package

PDF Unlimited Build


Digital plans with an unlimited build license emailed in PDF format, that allows for printing copies on a home printer or local print shop and sharing with contractors, subs, decorators and more 

PDF Unlimited Build $1,595
Digital plans including unlimited build license

CAD + PDF Unlimited Build


CAD files are a complete set of construction drawings delivered electronically. They can be used for any type of modification—including major design changes and engineering—and include a release granting permission to modify the plan. Most CAD plan orders are emailed the same or next business day.
 
This package also comes with a PDF set of plans and a multi-use building license, granting permission to construct the home an unlimited number of times, along with a copyright release for making modifications and printing unlimited copies.
 
CAD files are provided in .dwg format. For details on the specific CAD program used, please refer to the PLAN DETAILS section located above the floor plan on each plan’s page.

CAD + PDF Unlimited Build $2,095
2D electronic editable computer files
STEP 2 Need To Reverse This Plan?
STEP 3 CHOOSE YOUR FOUNDATION
STEP 4 OPTIONAL ADD-ONS
Subtotal:
$1095
FREE SHIPPING
 
Plan Details
See All Details
Finished Square Footage
891 Sq. Ft.
Main Level:
426 Sq. Ft.
Upper Level:
1,316 Sq. Ft.
Total:
Room Details
3
Bedrooms:
3
Full Baths:
General House Information
2
Number of Stories:
35' 2"
Width:
25' 4"
Depth:
Single
Dwelling Number:
Unfinished Square Footage
50 Sq. Ft.
Front Porch:
16 Sq. Ft.
Rear Porch:
210 Sq. Ft.
Deck:
GARAGE
0
Garage Size:
Exterior Style
Contemporary
Modern
Modern Farmhouse
Transitional
Collections
Affordable
Budget
Cabin
First Home
Split Bedroom
Foundation
Basement
Crawl Space
Daylight Basement
Monolithic Slab
Slab
Stem Wall Slab
Walkout Basement
Framing Information
Stick
Roof Framing:
2x4
Exterior Wall Framing:
Roof Pitch
2/12
Primary:
Insulation (R)
House And Ceiling Heights
9
First Floor Ceiling:
8
Second Floor Ceiling:
23' 6"
Maximum House Height:
Key Features
Deck
Formal LR
Front Porch
Kitchen Island
Laundry 1st Fl
L-Shaped
Primary Bdrm Main Floor
Mud Room
Peninsula / Eating Bar
Split Bedrooms
Suited for corner lot
Walk-in Closet
Walk-in Pantry

Our Guarantees

  • Only the highest quality plans
  • Int’l Residential Code Compliant
  • Full structural details on all plans
  • Best plan price guarantee
  • Free modification Estimates
  • Builder-ready construction drawings
  • Expert advice from leading designers
  •  PDFs NOW!™ plans in minutes
  • 100% satisfaction guarantee
  • Free Home Building Organizer