20% off ALL House Plans Sitewide
20% off ALL House Plans Sitewide

House Plan: DFD-11706

See All 13 Photos > (photographs may reflect modified homes)
© copyright by designer
SQ FT
1,652
BEDS
2
BATHS
2
STORIES
2
CARS
0
HOUSE PLANS SALE 
START AT  $916.00
For questions and help, live chat, email or call us at 877-895-5299
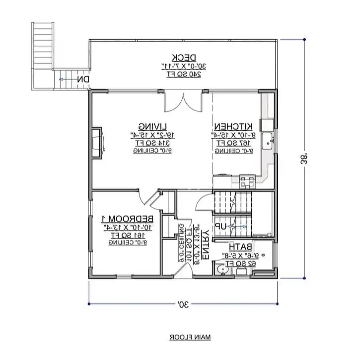
Floor Plans
Click to Zoom In on Floor Plan
 
About House Plan 11706:
At 1,652 square feet, this delightful two-bedroom, two-bath home blends cozy charm with modern efficiency. The main floor showcases an L-shaped kitchen with a convenient pantry, flowing naturally into a bright and open living area anchored by a beautiful fireplace. Upstairs, the primary suite offers comfort and privacy, featuring a generous walk-in closet. The split-bedroom layout makes it perfect for guests, children, or a flexible home office. A formal living room and mudroom add everyday convenience, while first-floor laundry simplifies household routines. Outside, a large deck extends the living space for relaxation and entertaining. This well-balanced design offers style, function, and comfort all in one inviting home.
House Plan Pricing
STEP 1 Select Your Package

PDF Single Build


Digital plans emailed to you in PDF format that allows for printing copies and sharing electronically with contractors, subs, decorators, and more. This package includes a license to build the home one time.

PDF Single Build $1,145
Most recommended package

PDF Unlimited Build


Digital plans with an unlimited build license emailed in PDF format, that allows for printing copies on a home printer or local print shop and sharing with contractors, subs, decorators and more 

PDF Unlimited Build $1,645
Digital plans including unlimited build license

CAD + PDF Unlimited Build


CAD files are a complete set of construction drawings delivered electronically. They can be used for any type of modification—including major design changes and engineering—and include a release granting permission to modify the plan. Most CAD plan orders are emailed the same or next business day.
 
This package also comes with a PDF set of plans and a multi-use building license, granting permission to construct the home an unlimited number of times, along with a copyright release for making modifications and printing unlimited copies.
 
CAD files are provided in .dwg format. For details on the specific CAD program used, please refer to the PLAN DETAILS section located above the floor plan on each plan’s page.

CAD + PDF Unlimited Build $2,145
2D electronic editable computer files
STEP 2 Need To Reverse This Plan?
STEP 3 CHOOSE YOUR FOUNDATION
STEP 4 OPTIONAL ADD-ONS
Subtotal:
$1145
FREE SHIPPING
 
Plan Details
See All Details
Finished Square Footage
826 Sq. Ft.
Main Level:
826 Sq. Ft.
Upper Level:
887 Sq. Ft.
Lower Level:
1,652 Sq. Ft.
Total:
Room Details
2
Bedrooms:
2
Full Baths:
General House Information
2
Number of Stories:
30' 0"
Width:
38' 0"
Depth:
Single
Dwelling Number:
Unfinished Square Footage
240 Sq. Ft.
Rear Porch:
240 Sq. Ft.
Deck:
GARAGE
0
Garage Size:
Exterior Style
Colonial
Cottage
Country
Modern Farmhouse
Traditional
Collections
Budget
Cabin
First Home
Split Bedroom
Foundation
Basement
Crawl Space
Daylight Basement
Monolithic Slab
Slab
Stem Wall Slab
Walkout Basement
Framing Information
2x6
Exterior Wall Framing:
Roof Pitch
4/12
Primary:
6/12
Secondary:
Insulation (R)
House And Ceiling Heights
9
First Floor Ceiling:
8
Second Floor Ceiling:
26' 6"
Maximum House Height:
Key Features
Deck
Fireplace
Formal LR
Laundry 1st Fl
L-Shaped
Primary Bdrm Upstairs
Mud Room
Pantry
Split Bedrooms
Storage Space
Suited for corner lot
Walk-in Closet

Our Guarantees

  • Only the highest quality plans
  • Int’l Residential Code Compliant
  • Full structural details on all plans
  • Best plan price guarantee
  • Free modification Estimates
  • Builder-ready construction drawings
  • Expert advice from leading designers
  •  PDFs NOW!™ plans in minutes
  • 100% satisfaction guarantee
  • Free Home Building Organizer