15% off ALL House Plans Sitewide
15% off ALL House Plans Sitewide

House Plan: DFD-11708

See All 16 Photos > (photographs may reflect modified homes)
© copyright by designer
SQ FT
1,600
BEDS
3
BATHS
2
STORIES
1
CARS
0
HOUSE PLANS SALE 
START AT  $973.25
For questions and help, live chat, email or call us at 877-895-5299
Floor Plans
Click to Zoom In on Floor Plan
 
About House Plan 11708:
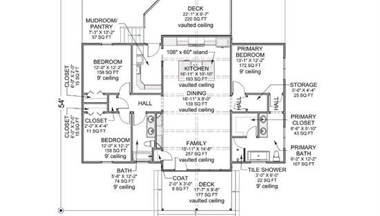
This charming 1,600 square feet home features an inviting L-shaped kitchen with a butler’s pantry, island, and peninsula with an eating bar that opens beautifully into the dining and family rooms. The vaulted ceiling in the kitchen adds a touch of spaciousness, while the open floor plan makes this home ideal for entertaining. The primary suite on the main floor includes a walk-in closet, double vanity sink, and a separate tub and shower for added comfort. Split bedrooms offer privacy and flexibility for family or guests, and the first-floor laundry and mud room add everyday convenience. The covered porch and rear deck extend the living space outdoors, perfect for quiet evenings or casual gatherings. Blending charm and practicality, this Country-style home is designed for easy living with timeless appeal.
House Plan Pricing
STEP 1 Select Your Package

PDF Single Build


Digital plans emailed to you in PDF format that allows for printing copies and sharing electronically with contractors, subs, decorators, and more. This package includes a license to build the home one time.

PDF Single Build $1,145
Most recommended package

PDF Unlimited Build


Digital plans with an unlimited build license emailed in PDF format, that allows for printing copies on a home printer or local print shop and sharing with contractors, subs, decorators and more 

PDF Unlimited Build $1,645
Digital plans including unlimited build license

CAD + PDF Unlimited Build


CAD files are a complete set of construction drawings delivered electronically. They can be used for any type of modification—including major design changes and engineering—and include a release granting permission to modify the plan. Most CAD plan orders are emailed the same or next business day.
 
This package also comes with a PDF set of plans and a multi-use building license, granting permission to construct the home an unlimited number of times, along with a copyright release for making modifications and printing unlimited copies.
 
CAD files are provided in .dwg format. For details on the specific CAD program used, please refer to the PLAN DETAILS section located above the floor plan on each plan’s page.

CAD + PDF Unlimited Build $2,145
2D electronic editable computer files
STEP 2 Need To Reverse This Plan?
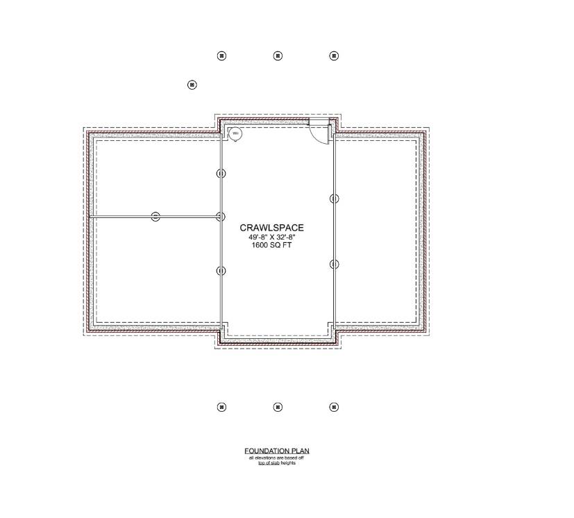
STEP 3 CHOOSE YOUR FOUNDATION
STEP 4 OPTIONAL ADD-ONS
Subtotal:
$1145
FREE SHIPPING
 
Plan Details
See All Details
Finished Square Footage
1,600 Sq. Ft.
Main Level:
1,600 Sq. Ft.
Total:
Room Details
3
Bedrooms:
2
Full Baths:
General House Information
1
Number of Stories:
51' 0"
Width:
54' 0"
Depth:
Single
Dwelling Number:
Unfinished Square Footage
177 Sq. Ft.
Porch:
220 Sq. Ft.
Deck:
GARAGE
0
Garage Size:
Exterior Style
Country
Ranch
Traditional
Collections
Affordable
First Home
Open Floor Plan
Split Bedroom
Foundation
Crawl Space
Monolithic Slab
Framing Information
2x4
Exterior Wall Framing:
Roof Pitch
8/12
Primary:
10/12
Secondary:
Insulation (R)
House And Ceiling Heights
9
First Floor Ceiling:
20' 0"
Maximum House Height:
Key Features
Butler's Pantry
Deck
Dining Room
Double Vanity Sink
Family Room
Kitchen Island
Laundry 1st Fl
L-Shaped
Primary Bdrm Main Floor
Mud Room
Open Floor Plan
Peninsula / Eating Bar
Separate Tub and Shower
Split Bedrooms
Suited for corner lot
Vaulted Kitchen
Walk-in Closet

Our Guarantees

  • Only the highest quality plans
  • Int’l Residential Code Compliant
  • Full structural details on all plans
  • Best plan price guarantee
  • Free modification Estimates
  • Builder-ready construction drawings
  • Expert advice from leading designers
  •  PDFs NOW!™ plans in minutes
  • 100% satisfaction guarantee
  • Free Home Building Organizer