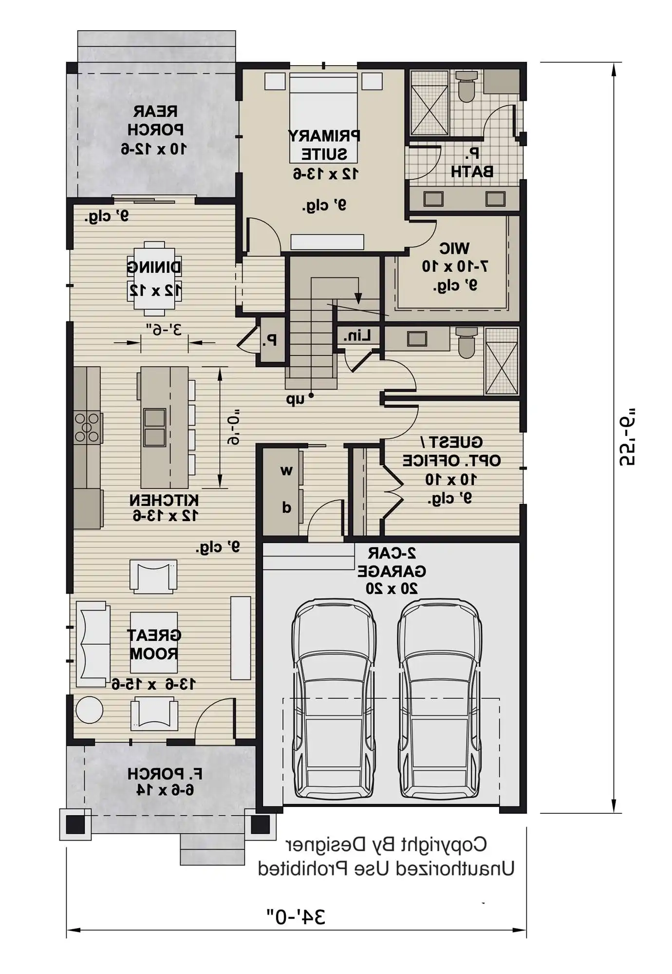
This thoughtfully designed home includes 2,233 square feet of heated living space with 4 bedrooms and 3 baths arranged across two stories. The main level showcases an open layout that blends the great room, dining room, and kitchen for easy flow and connection. A kitchen island, pantry, and peninsula eating bar make cooking and gathering simple and efficient. The primary bedroom is located on the main floor and features a walk-in closet and a well-appointed bath with double vanities. Upstairs, a loft or balcony space adds flexible room for relaxing, hobbies, or shared family time. Family-style living is enhanced by split bedrooms and a functional mud room near the front-entry garage. Covered porches at both the front and rear create inviting spaces to enjoy fresh air and quiet moments at home.
This thoughtfully designed home includes 2,233 square feet of heated living space with 4 bedrooms and 3 baths arranged across two stories. The main level showcases an open layout that blends the great room, dining room, and kitchen for easy flow and connection. A kitchen island, pantry, and peninsula eating bar make cooking and gathering simple and efficient. The primary bedroom is located on the main floor and features a walk-in closet and a well-appointed bath with double vanities. Upstairs, a loft or balcony space adds flexible room for relaxing, hobbies, or shared family time. Family-style living is enhanced by split bedrooms and a functional mud room near the front-entry garage. Covered porches at both the front and rear create inviting spaces to enjoy fresh air and quiet moments at home.