20% off ALL House Plans Sitewide
20% off ALL House Plans Sitewide

House Plan: DFD-11719

See All 14 Photos > (photographs may reflect modified homes)
© copyright by designer
SQ FT
2,079
BEDS
3
BATHS
2.5
STORIES
2
CARS
0
HOUSE PLANS SALE 
START AT  $956.00
For questions and help, live chat, email or call us at 877-895-5299
Floor Plans
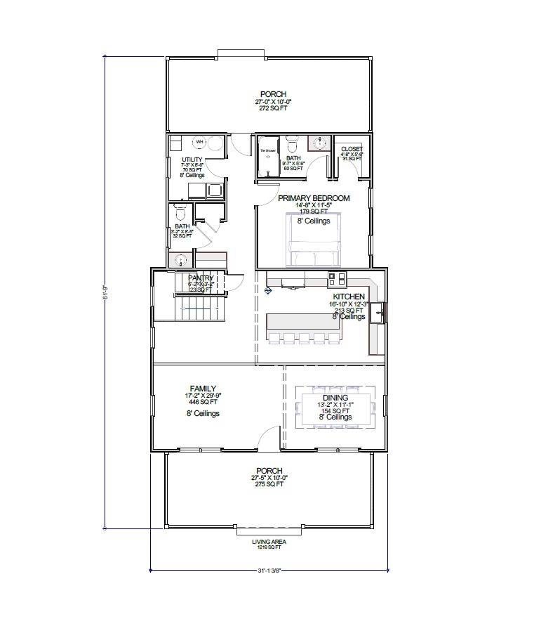
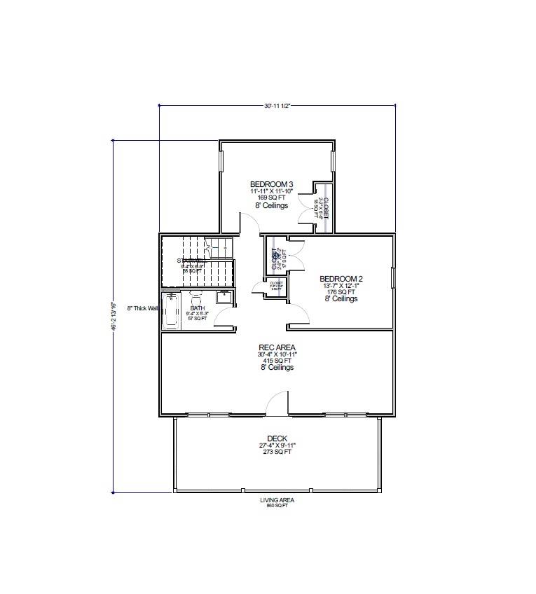
Click to Zoom In on Floor Plan
 
About House Plan 11719:
This charming 2,079 square feet Southern style home combines open living with cozy elegance. The main floor centers around a bright kitchen with a spacious island, eating peninsula, and walk-in pantry that opens to a welcoming family and dining area. The primary suite, located on the main floor, ensures comfort and privacy with easy access to the home’s central spaces. Upstairs, two bedrooms and a recreation room offer versatile areas for work, play, or quiet retreat. Covered front and rear porches enhance outdoor enjoyment while complementing the home’s inviting exterior. With a split-bedroom layout and warm design features, this home delivers both style and functionality for families seeking comfort and connection.
House Plan Pricing
STEP 1 Select Your Package

PDF Single Build


Digital plans emailed to you in PDF format that allows for printing copies and sharing electronically with contractors, subs, decorators, and more. This package includes a license to build the home one time.

PDF Single Build $1,195
Most recommended package

PDF Unlimited Build


Digital plans with an unlimited build license emailed in PDF format, that allows for printing copies on a home printer or local print shop and sharing with contractors, subs, decorators and more 

PDF Unlimited Build $1,695
Digital plans including unlimited build license

CAD + PDF Unlimited Build


This plan package is created in AutoCAD and delivered in .DWG format. CAD files are intended for use by design professionals, structural engineers, and builders to update plans for local building codes or to make revisions based on specific needs, lot requirements, and budget considerations. A complimentary PDF copy is included with this package for reference. CAD packages are delivered within 1 to 2 business days.
 
This package also comes with a multi-use building license, granting permission to construct the home an unlimited number of times, along with a copyright release for making revisions and printing unlimited copies.
 
For details on the specific CAD program used, please refer to the PLAN DETAILS section located above the floor plan on each plan page.

CAD + PDF Unlimited Build $2,195
2D electronic editable computer files
STEP 2 Need To Reverse This Plan?
STEP 3 CHOOSE YOUR FOUNDATION
STEP 4 OPTIONAL ADD-ONS
Subtotal:
$1195
FREE SHIPPING
 
Plan Details
See All Details
Finished Square Footage
1,219 Sq. Ft.
Main Level:
860 Sq. Ft.
Upper Level:
2,079 Sq. Ft.
Total:
Room Details
3
Bedrooms:
2
Full Baths:
1
Half Baths:
General House Information
2
Number of Stories:
31' 1"
Width:
61' 9"
Depth:
Single
Dwelling Number:
Unfinished Square Footage
275 Sq. Ft.
Porch:
272 Sq. Ft.
Deck:
GARAGE
0
Garage Size:
Exterior Style
Country
Lake
Southern
Traditional
Collections
Outdoor Living
Split Bedroom
Vacation
Foundation
Basement
Crawl Space
Daylight Basement
Monolithic Slab
Slab
Stem Wall Slab
Walkout Basement
Framing Information
2x4
Exterior Wall Framing:
Roof Pitch
4/12
Primary:
8/12
Secondary:
Insulation (R)
House And Ceiling Heights
8
First Floor Ceiling:
8
Second Floor Ceiling:
26' 2"
Maximum House Height:
Key Features
Covered Front Porch
Covered Rear Porch
Dining Room
Family Room
Kitchen Island
Laundry 1st Fl
L-Shaped
Primary Bdrm Main Floor
Peninsula / Eating Bar
Rec Room
Split Bedrooms
Suited for corner lot
Walk-in Closet
Walk-in Pantry

Our Guarantees

  • Only the highest quality plans
  • Int’l Residential Code Compliant
  • Full structural details on all plans
  • Best plan price guarantee
  • Free modification Estimates
  • Builder-ready construction drawings
  • Expert advice from leading designers
  •  PDFs NOW!™ plans in minutes
  • 100% satisfaction guarantee
  • Free Home Building Organizer