15% off ALL House Plans Sitewide
15% off ALL House Plans Sitewide

House Plan: DFD-11736

See All 2 Photos > (photographs may reflect modified homes)
© copyright by designer
SQ FT
1,204
BEDS
1
BATHS
1.5
STORIES
1
CARS
0
HOUSE PLANS SALE 
START AT  $1,283.50
For questions and help, live chat, email or call us at 877-895-5299
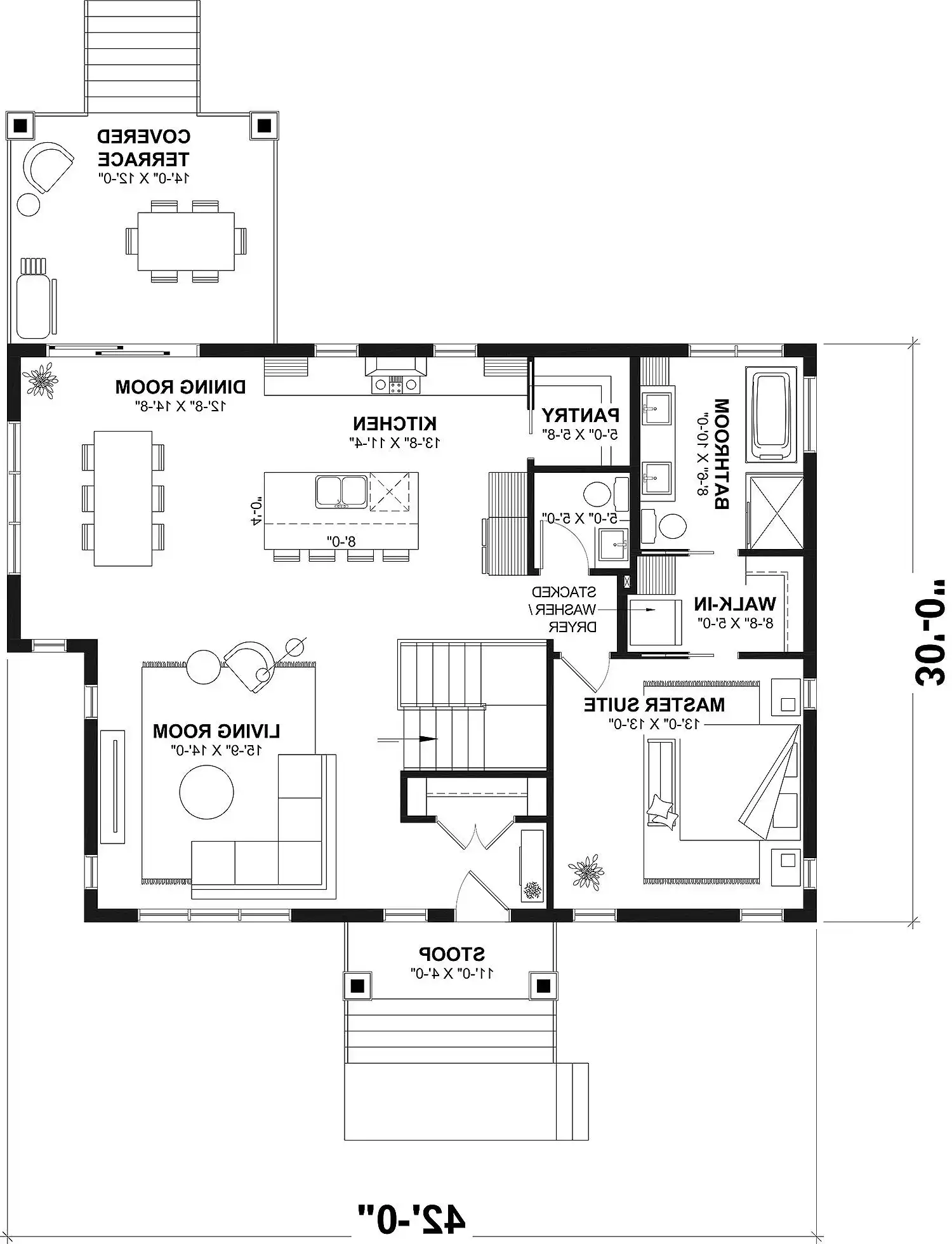
Floor Plans
Click to Zoom In on Floor Plan
 
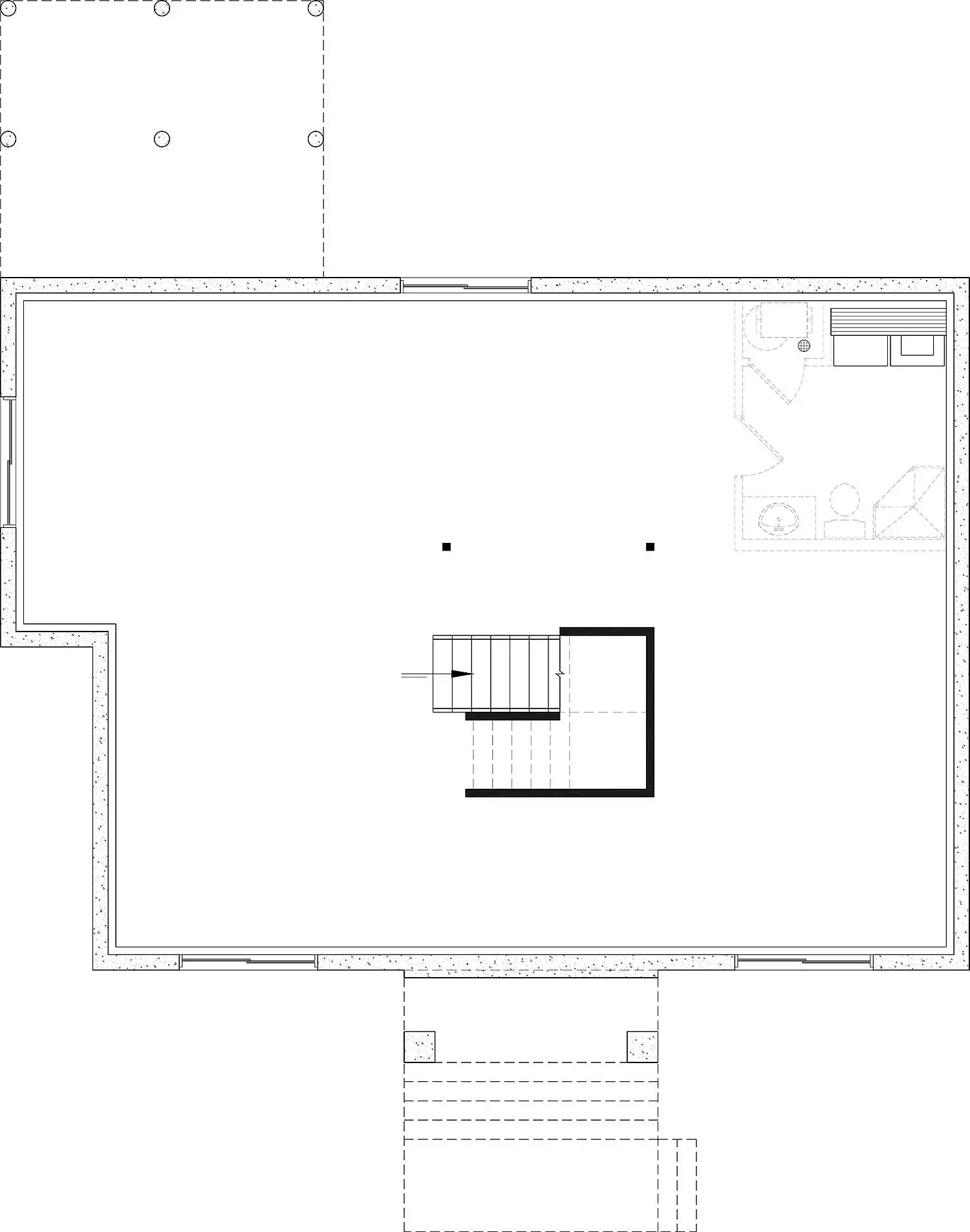
About House Plan 11736:
House Plan 11736 is a compact bungalow design that balances efficient living with long-term potential. The main level features an open-concept kitchen, dining, and living area that feels spacious and easy to navigate. A kitchen island and walk-in pantry support daily cooking and storage needs, while the main-floor primary bedroom offers comfort and privacy. The layout includes a full bathroom plus a half bath for guests. Covered outdoor spaces add everyday livability and enhance the home’s connection to the outdoors. An unfinished basement provides ample opportunity to add living space, storage, or hobby areas in the future.
House Plan Pricing
STEP 1 Select Your Package

PDF Single Build


Digital plans emailed to you in PDF format that allows for printing copies and sharing electronically with contractors, subs, decorators, and more. This package includes a license to build the home one time.

PDF Single Build $1,510
Most recommended package

3 Printed Sets + PDF


Includes 3 physical printed blueprint sets, shipped free via UPS within the U.S. Printed sets ship within 1 business day and are delivered within 3 – 5 business days. A complimentary PDF plan set is also emailed within 1 business day for easy sharing and local printing. These plans may be used to construct one home.

3 Printed Sets + PDF $1,650
3 Printed Sets + PDF

CAD + PDF Single Build


This plan package is created in AutoCAD and delivered in .DWG format. CAD files are intended for use by design professionals, structural engineers, and builders to update plans for local building codes or to make revisions based on specific needs, lot requirements, and budget considerations. A complimentary PDF copy is included with this package for reference. CAD packages are delivered within 1 to 2 business days.
 
This package also comes with a copyright release for making revisions and printing unlimited copies.

For details on the specific CAD program used, please refer to the PLAN DETAILS section located above the floor plan on each plan page.

CAD + PDF Single Build $2,510
2D electronic editable computer files
STEP 2 Need To Reverse This Plan?
STEP 3 CHOOSE YOUR FOUNDATION
STEP 4 OPTIONAL ADD-ONS
Subtotal:
$1510
FREE SHIPPING
Please allow 3-5 business days for delivery of this plan Please check our PDFs NOW collection for plans that can be downloaded and received immediately or live chat us to help you find a similar plan available now.
 
Plan Details
See All Details
Finished Square Footage
1,204 Sq. Ft.
Main Level:
1,204 Sq. Ft.
Lower Level:
1,204 Sq. Ft.
Total:
Room Details
1
Bedrooms:
1
Full Baths:
1
Half Baths:
General House Information
1
Number of Stories:
42'
Width:
30'
Depth:
Single
Dwelling Number:
Unfinished Square Footage
GARAGE
0
Garage Size:
Exterior Style
Bungalow
Contemporary
Cottage
Country
Farmhouse
Ranch
Collections
Accessible
Affordable
Canada
Empty Nester
First Home
Foundation
Crawlspace
Floating slab
Full Unfinished Basement (included)
Monolithic slab
Framing Information
Truss
Roof Framing:
2x6
Exterior Wall Framing:
Roof Pitch
8/12
Primary:
Insulation (R)
House And Ceiling Heights
9
First Floor Ceiling:
24'
Maximum House Height:
Key Features
Covered Front Porch
Covered Rear Porch
Dining Room
Double Vanity Sink
Family Room
Foyer
His and Hers Primary Closets
Kitchen Island
Laundry 1st Fl
L-Shaped
Primary Bdrm Main Floor
Open Floor Plan
Separate Tub and Shower
Walk-in Closet
Walk-in Pantry

Our Guarantees

  • Only the highest quality plans
  • Int’l Residential Code Compliant
  • Full structural details on all plans
  • Best plan price guarantee
  • Free modification Estimates
  • Builder-ready construction drawings
  • Expert advice from leading designers
  •  PDFs NOW!™ plans in minutes
  • 100% satisfaction guarantee
  • Free Home Building Organizer