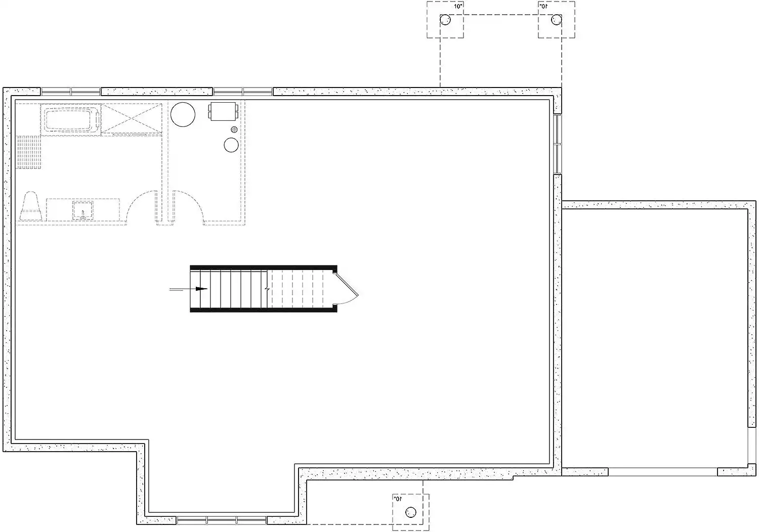
Designed for efficiency and livability, this 1511 square feet single story home plan includes 3 bedrooms and 1 bath arranged within a bright, open layout. The foyer opens to a comfortable family room that connects naturally to the dining area and kitchen. The kitchen’s island, walk-in pantry, and butlers pantry create a well-equipped space for everyday cooking and entertaining. The main level primary suite offers privacy with dual closets and a bath featuring double vanities and a separate tub and shower. Secondary bedrooms are positioned to accommodate family members or guests with ease. A mud room and first-floor laundry support daily routines with added convenience. The attached garage and welcoming front porch bring together practicality and charm in this inviting home design.
Designed for efficiency and livability, this 1511 square feet single story home plan includes 3 bedrooms and 1 bath arranged within a bright, open layout. The foyer opens to a comfortable family room that connects naturally to the dining area and kitchen. The kitchen’s island, walk-in pantry, and butlers pantry create a well-equipped space for everyday cooking and entertaining. The main level primary suite offers privacy with dual closets and a bath featuring double vanities and a separate tub and shower. Secondary bedrooms are positioned to accommodate family members or guests with ease. A mud room and first-floor laundry support daily routines with added convenience. The attached garage and welcoming front porch bring together practicality and charm in this inviting home design.