15% off ALL House Plans Sitewide
15% off ALL House Plans Sitewide

House Plan: DFD-11744

See All 11 Photos > (photographs may reflect modified homes)
© copyright by designer
SQ FT
910
BEDS
2
BATHS
1.5
STORIES
2
CARS
2
PLANS FROM $895
For questions and help, live chat, email or call us at 877-895-5299
Floor Plans
Click to Zoom In on Floor Plan
 
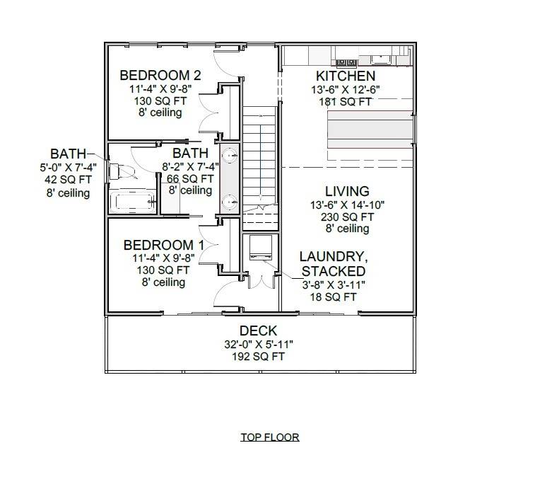
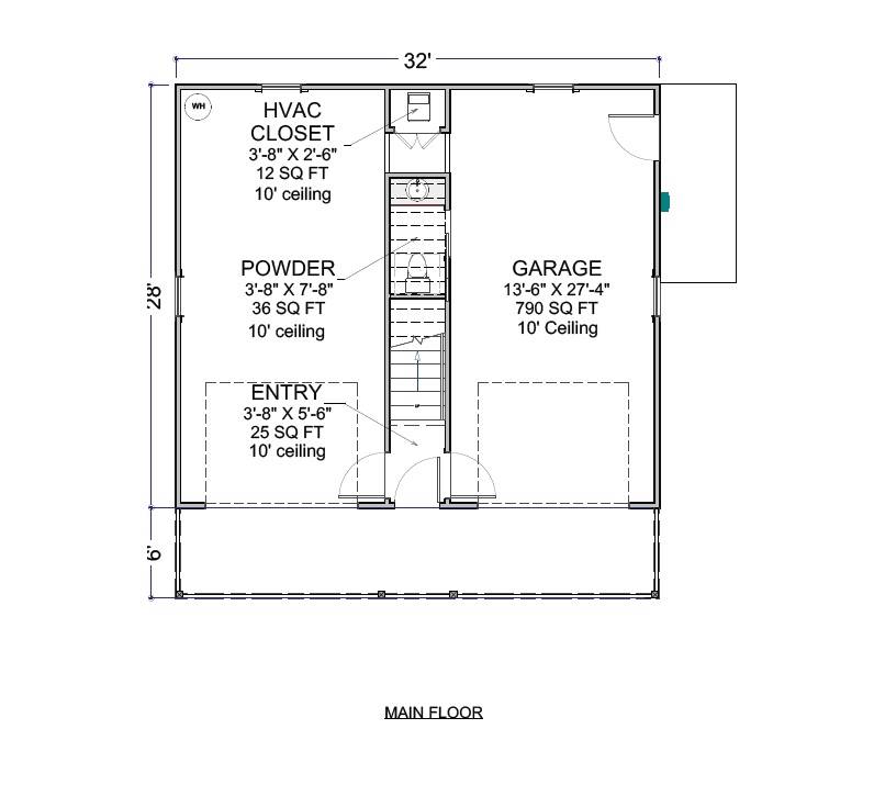
About House Plan 11744:
This charming 910-square-foot home design delivers a perfect balance of function and warmth. The main level features an open kitchen with both an island and a peninsula, creating a bright and engaging space for casual meals and entertaining. Upstairs, two bedrooms share access to a double vanity bath, with the primary suite offering added privacy and comfort. The laundry area is thoughtfully placed on the second floor for convenience. A front-entry garage and deck add both curb appeal and outdoor enjoyment. Designed for corner lots, it maximizes space while maintaining a cozy, connected feel. Perfect for first-time buyers or small families, this home offers inviting style and everyday comfort.
House Plan Pricing
STEP 1 Select Your Package

PDF Single Build


Digital plans emailed to you in PDF format that allows for printing copies and sharing electronically with contractors, subs, decorators, and more. This package includes a license to build the home one time.

PDF Single Build $895
Most recommended package

PDF Unlimited Build


Digital plans with an unlimited build license emailed in PDF format, that allows for printing copies on a home printer or local print shop and sharing with contractors, subs, decorators and more 

PDF Unlimited Build $1,345
Digital plans including unlimited build license

CAD + PDF Unlimited Build


CAD files are a complete set of construction drawings delivered electronically. They can be used for any type of modification—including major design changes and engineering—and include a release granting permission to modify the plan. Most CAD plan orders are emailed the same or next business day.
 
This package also comes with a PDF set of plans and a multi-use building license, granting permission to construct the home an unlimited number of times, along with a copyright release for making modifications and printing unlimited copies.
 
CAD files are provided in .dwg format. For details on the specific CAD program used, please refer to the PLAN DETAILS section located above the floor plan on each plan’s page.

CAD + PDF Unlimited Build $1,895
2D electronic editable computer files
STEP 2 Need To Reverse This Plan?
STEP 3 CHOOSE YOUR FOUNDATION
STEP 4 OPTIONAL ADD-ONS
Subtotal:
$895
FREE SHIPPING
 
Plan Details
See All Details
Finished Square Footage
61 Sq. Ft.
Main Level:
849 Sq. Ft.
Upper Level:
910 Sq. Ft.
Total:
Room Details
2
Bedrooms:
1
Full Baths:
1
Half Baths:
General House Information
2
Number of Stories:
32' 0"
Width:
28' 0"
Depth:
Single
Dwelling Number:
Unfinished Square Footage
810 Sq. Ft.
Garage:
192 Sq. Ft.
Deck:
GARAGE
Front
Garage Location:
2
Garage Size:
Exterior Style
Cottage
Country
Traditional
Collections
Affordable
Budget
Cabin
First Home
Mountain
Foundation
Basement
Crawl Space
Daylight Basement
Monolithic Slab
Slab
Stem Wall Slab
Walkout Basement
Framing Information
Stick
Roof Framing:
2x4
Exterior Wall Framing:
Roof Pitch
4/12
Primary:
Insulation (R)
House And Ceiling Heights
10
First Floor Ceiling:
9
Second Floor Ceiling:
25' 4"
Maximum House Height:
Key Features
Attached
Deck
Double Vanity Sink
Drive-under
Family Style
Kitchen Island
Laundry 2nd Fl
L-Shaped
Primary Bdrm Upstairs
Peninsula / Eating Bar
Suited for corner lot

Our Guarantees

  • Only the highest quality plans
  • Int’l Residential Code Compliant
  • Full structural details on all plans
  • Best plan price guarantee
  • Free modification Estimates
  • Builder-ready construction drawings
  • Expert advice from leading designers
  •  PDFs NOW!™ plans in minutes
  • 100% satisfaction guarantee
  • Free Home Building Organizer