20% off ALL House Plans Sitewide
20% off ALL House Plans Sitewide

House Plan: DFD-11747

See All 5 Photos > (photographs may reflect modified homes)
© copyright by designer
SQ FT
1,958
BEDS
3
BATHS
2
STORIES
2
CARS
2
HOUSE PLANS SALE 
START AT  $1,379.20
For questions and help, live chat, email or call us at 877-895-5299
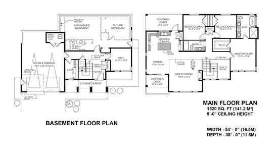
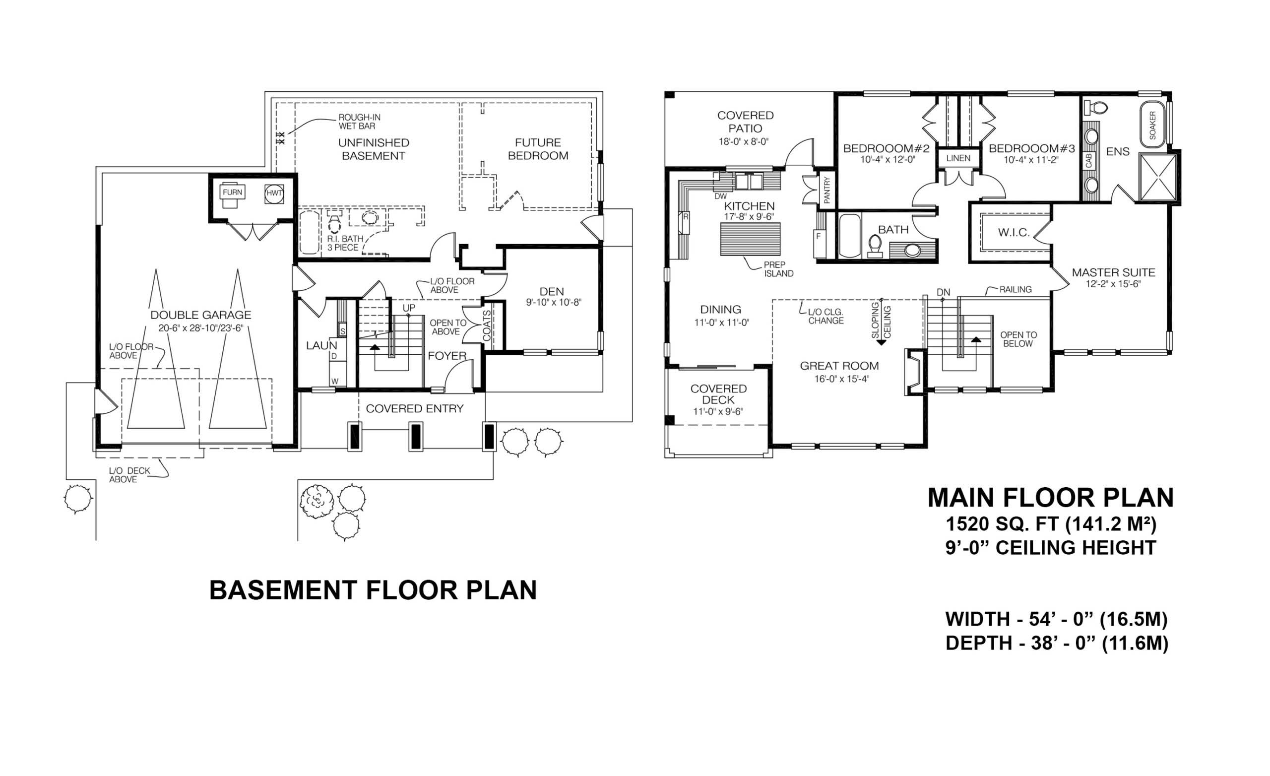
Floor Plans
Click to Zoom In on Floor Plan
 
About House Plan 11747:
House Plan 11747 combines efficient modern design with classic comfort in a three-bedroom layout totaling 1,520 square feet. The exterior pairs stucco and brick for a timeless appeal, while the covered entry leads into a bright foyer with a den to the right and laundry to the left. Upstairs, the open great room impresses with its sloped ceiling, gas fireplace, and seamless connection to the dining area and partially covered deck for outdoor entertaining. The kitchen features a functional L-shaped layout with a separate prep area and a windowed sink overlooking the backyard. The private master suite offers luxury and relaxation with dual vanities, an oval soaking tub, a glassed-in shower, and a large walk-in closet. Two additional bedrooms share a full bath, and both overlook the rear garden. With nine-foot ceilings throughout and future plans for a fourth bedroom and bath in the basement, this home blends comfort, flexibility, and contemporary style for families at any stage.
House Plan Pricing
STEP 1 Select Your Package

PDF Single Build


Digital plans emailed to you in PDF format that allows for printing copies and sharing electronically with contractors, subs, decorators, and more. This package includes a license to build the home one time.

PDF Single Build $1,724
Most recommended package

5 Printed Sets + PDF


Digital plan emailed to you in PDF format that allows for printing copies on a home printer or local print shop and sharing with contractors, subs, decorators, and more. PLUS five printed sets shipped and delivered 3-5 business days.

5 Printed Sets + PDF $1,881
Digital plans plus 5 printed sets

CAD + PDF Single Build


CAD files are a complete set of construction drawings delivered electronically. They can be used for any type of modification—including major design changes and engineering—and include a release granting permission to modify the plan. Most CAD plan orders are emailed the same or next business day.
 
This package also comes with a PDF set of plans and a copyright release for making modifications and printing unlimited copies.
 
CAD files are provided in .dwg format. For details on the specific CAD program used, please refer to the PLAN DETAILS section located above the floor plan on each plan’s page.

CAD + PDF Single Build $3,201
2D electronic editable computer files

CAD + PDF Unlimited Build


CAD files are a complete set of construction drawings delivered electronically. They can be used for any type of modification—including major design changes and engineering—and include a release granting permission to modify the plan. Most CAD plan orders are emailed the same or next business day.
 
This package also comes with a PDF set of plans and a multi-use building license, granting permission to construct the home an unlimited number of times, along with a copyright release for making modifications and printing unlimited copies.
 
CAD files are provided in .dwg format. For details on the specific CAD program used, please refer to the PLAN DETAILS section located above the floor plan on each plan’s page.

CAD + PDF Unlimited Build $6,312
2D electronic editable computer files
STEP 2 Need To Reverse This Plan?
STEP 3 CHOOSE YOUR FOUNDATION
STEP 4 OPTIONAL ADD-ONS
Subtotal:
$1724
FREE SHIPPING
 
Plan Details
See All Details
Finished Square Footage
1,082 Sq. Ft.
Main Level:
1,520 Sq. Ft.
Upper Level:
1,958 Sq. Ft.
Total:
Room Details
3
Bedrooms:
2
Full Baths:
General House Information
2
Number of Stories:
54' 0"
Width:
38' 0"
Depth:
Single
Dwelling Number:
Unfinished Square Footage
580 Sq. Ft.
Garage:
105 Sq. Ft.
Front Porch:
144 Sq. Ft.
Rear Porch:
249 Sq. Ft.
Deck:
GARAGE
Front
Garage Location:
2
Garage Size:
Exterior Style
Modern
Transitional
Collections
Architects Choice
Builders
Canada
In-Law Suite
Open Floor Plan
Foundation
Basement
Crawl Space
Walkout Basement
Framing Information
Truss
Roof Framing:
2x6
Exterior Wall Framing:
Roof Pitch
4/12
Primary:
1.5/12
Secondary:
Insulation (R)
Per IRC Climate Zones
House And Ceiling Heights
8
First Floor Ceiling:
9
Second Floor Ceiling:
24' 0"
Maximum House Height:
Key Features
2 Story Volume
Attached
Country Kitchen
Covered Front Porch
Covered Rear Porch
Deck
Double Vanity Sink
Drive-under
Fireplace
Foyer
Front-entry
Great Room
Home Office
In-law Suite
Kitchen Island
Laundry 1st Fl
Library/Media Rm
Primary Bdrm Upstairs
Open Floor Plan
Oversized
Pantry
Separate Tub and Shower
Split Bedrooms
Suited for narrow lot
Suited for sloping lot
Suited for view lot
Unfinished Space
U-Shaped
Vaulted Ceilings
Vaulted Great Room/Living
Walk-in Closet

Our Guarantees

  • Only the highest quality plans
  • Int’l Residential Code Compliant
  • Full structural details on all plans
  • Best plan price guarantee
  • Free modification Estimates
  • Builder-ready construction drawings
  • Expert advice from leading designers
  •  PDFs NOW!™ plans in minutes
  • 100% satisfaction guarantee
  • Free Home Building Organizer