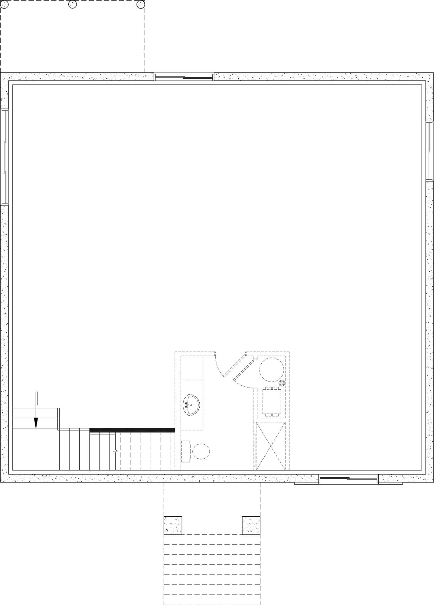
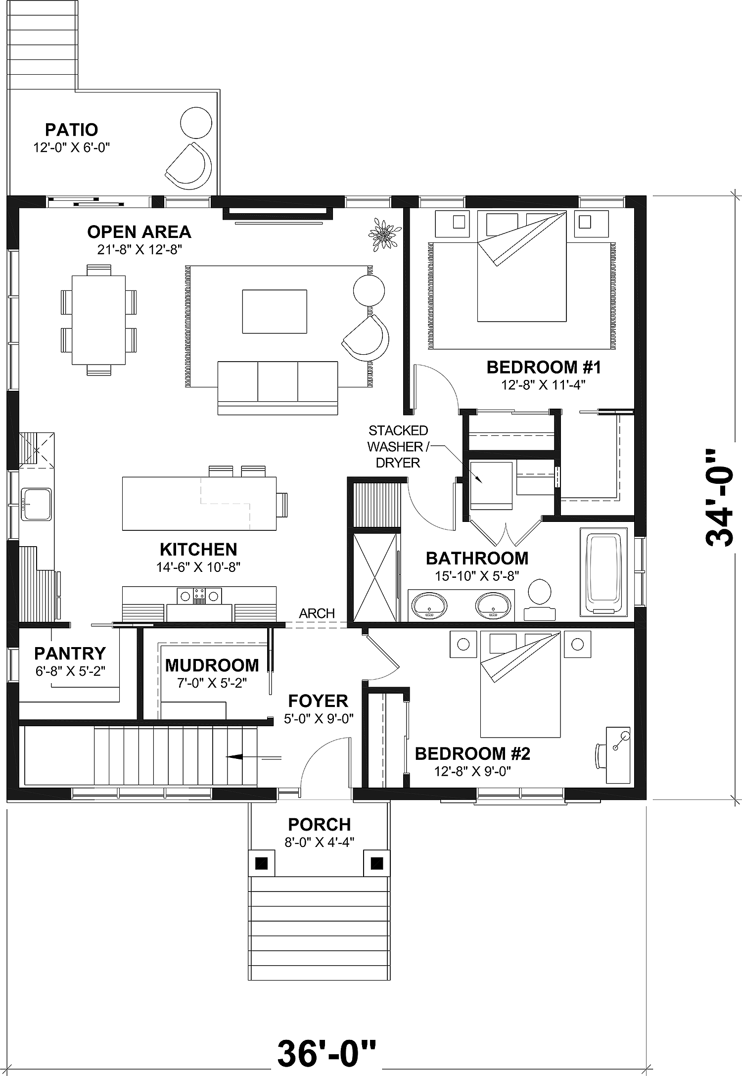
Designed for simplicity and functionality, this 1224 square feet single story home plan includes 2 bedrooms and 2 baths arranged within a bright, open layout. The family room connects naturally to the dining area and kitchen, creating a comfortable central gathering space. The kitchen’s island and walk-in pantry maximize storage while maintaining an efficient workflow. The main level primary suite provides privacy with dual closets and a bath featuring double vanities and a separate tub and shower. A second bedroom is thoughtfully positioned for flexibility. A mud room and first-floor laundry support daily routines with ease. With charming architectural details and unfinished space ready for future possibilities, this home offers both comfort and room to grow.
Designed for simplicity and functionality, this 1224 square feet single story home plan includes 2 bedrooms and 2 baths arranged within a bright, open layout. The family room connects naturally to the dining area and kitchen, creating a comfortable central gathering space. The kitchen’s island and walk-in pantry maximize storage while maintaining an efficient workflow. The main level primary suite provides privacy with dual closets and a bath featuring double vanities and a separate tub and shower. A second bedroom is thoughtfully positioned for flexibility. A mud room and first-floor laundry support daily routines with ease. With charming architectural details and unfinished space ready for future possibilities, this home offers both comfort and room to grow.