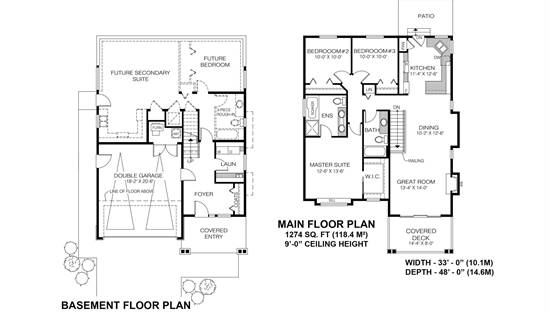
House Plan 11764 showcases a warm, traditional exterior paired with a versatile interior layout designed for long term living. Gabled rooflines and detailed pilasters give this two storey home a welcoming presence, while a covered front entry leads into a spacious foyer with generous storage. The main living areas are located upstairs, where the great room and dining room flow together seamlessly. A gas fireplace creates a cozy focal point, and access to a covered deck extends the living space outdoors. The dining area includes a bayed section that adds character and offers the perfect spot for custom cabinetry. The kitchen is efficiently arranged with an angled sink beneath a window, a pantry for storage, and direct access to a patio for grilling and casual meals outside. The primary suite faces the front garden and features a walk in closet and a private ensuite with a soaking tub, dual sinks, and a glass shower. Two additional bedrooms share a three piece bathroom, with a centrally located linen closet for added convenience. The ground floor includes a roughed in secondary suite with space for a kitchen, dining, and sitting area, along with a three piece bathroom, providing excellent flexibility for future needs. A laundry room with access to the double garage completes the lower level and doubles as a functional mudroom. With painted wood siding, vertical gable detailing, and classic trim accents, this home delivers 1,274 square feet of upper level living space within a compact and efficient footprint.