15% off ALL House Plans Sitewide
15% off ALL House Plans Sitewide

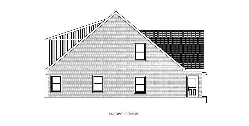
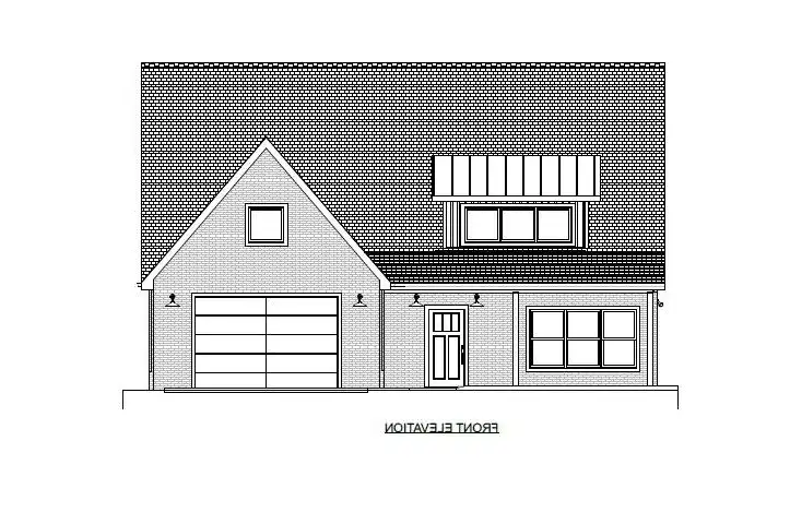
House Plan: DFD-11772

See All 16 Photos > (photographs may reflect modified homes)
© copyright by designer
SQ FT
2,670
BEDS
4
BATHS
3.5
STORIES
2
CARS
2
HOUSE PLANS SALE 
START AT  $1,058.25
For questions and help, live chat, email or call us at 877-895-5299
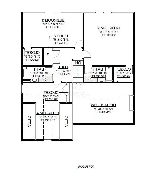
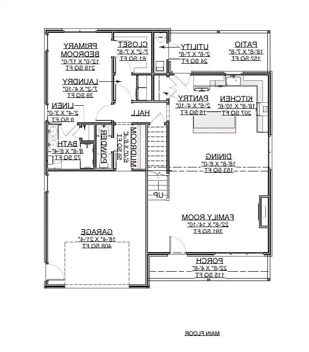
Floor Plans
Click to Zoom In on Floor Plan
 
About House Plan 11772:
Designed with openness and versatility in mind, this 2,670 square feet home provides a balanced mix of shared and private areas. The Family Room flows into the kitchen, where a walk-in pantry, island, and peninsula support both cooking and casual dining. The Primary Bedroom on the main floor offers a relaxing retreat with a spacious bath and walk-in closet. Upstairs, the loft and bonus room add extra living space that can adapt to changing needs. Three more bedrooms and additional baths provide comfort for families or frequent guests. The main-floor Laundry, Mud Room, and dedicated Home Office enhance organization and daily efficiency. A welcoming front porch and attached garage round out the layout, ensuring practicality and smooth circulation throughout the home.
House Plan Pricing
STEP 1 Select Your Package

PDF Single Build


Digital plans emailed to you in PDF format that allows for printing copies and sharing electronically with contractors, subs, decorators, and more. This package includes a license to build the home one time.

PDF Single Build $1,245
Most recommended package

PDF Unlimited Build


Digital plans with an unlimited build license emailed in PDF format, that allows for printing copies on a home printer or local print shop and sharing with contractors, subs, decorators and more 

PDF Unlimited Build $1,745
Digital plans including unlimited build license

CAD + PDF Unlimited Build


This plan package is created in AutoCAD and delivered in .DWG format. CAD files are intended for use by design professionals, structural engineers, and builders to update plans for local building codes or to make revisions based on specific needs, lot requirements, and budget considerations. A complimentary PDF copy is included with this package for reference. CAD packages are delivered within 1 to 2 business days.
 
This package also comes with a multi-use building license, granting permission to construct the home an unlimited number of times, along with a copyright release for making revisions and printing unlimited copies.
 
For details on the specific CAD program used, please refer to the PLAN DETAILS section located above the floor plan on each plan page.

CAD + PDF Unlimited Build $2,245
2D electronic editable computer files
STEP 2 Need To Reverse This Plan?
STEP 3 CHOOSE YOUR FOUNDATION
STEP 4 OPTIONAL ADD-ONS
Subtotal:
$1245
FREE SHIPPING
 
Plan Details
See All Details
Finished Square Footage
1,319 Sq. Ft.
Main Level:
1,351 Sq. Ft.
Upper Level:
2,670 Sq. Ft.
Total:
Room Details
4
Bedrooms:
3
Full Baths:
1
Half Baths:
General House Information
2
Number of Stories:
40' 0"
Width:
48' 0"
Depth:
Single
Dwelling Number:
Unfinished Square Footage
407 Sq. Ft.
Garage:
106 Sq. Ft.
Porch:
272 Sq. Ft.
Bonus Room:
GARAGE
Front
Garage Location:
2
Garage Size:
Exterior Style
Country
French Country
Traditional
Collections
Split Bedroom
Foundation
Basement
Monolithic Slab
Framing Information
Stick
Roof Framing:
2x4
Exterior Wall Framing:
Roof Pitch
10/12
Primary:
14/12
Secondary:
Insulation (R)
House And Ceiling Heights
9
First Floor Ceiling:
8
Second Floor Ceiling:
27' 4"
Maximum House Height:
Key Features
2 Story Volume
Attached
Bonus Room
Dining Room
Double Vanity Sink
Family Room
Fireplace
Front Porch
Front-entry
Home Office
Kitchen Island
Laundry 1st Fl
Loft / Balcony
L-Shaped
Primary Bdrm Main Floor
Mud Room
Peninsula / Eating Bar
Rear Porch
Split Bedrooms
Suited for corner lot
Vaulted Ceilings
Vaulted Great Room/Living
Walk-in Closet
Walk-in Pantry

Our Guarantees

  • Only the highest quality plans
  • Int’l Residential Code Compliant
  • Full structural details on all plans
  • Best plan price guarantee
  • Free modification Estimates
  • Builder-ready construction drawings
  • Expert advice from leading designers
  •  PDFs NOW!™ plans in minutes
  • 100% satisfaction guarantee
  • Free Home Building Organizer