15% off ALL House Plans Sitewide
15% off ALL House Plans Sitewide

House Plan: DFD-11787

See All 9 Photos > (photographs may reflect modified homes)
© copyright by designer
SQ FT
3,339
BEDS
3
BATHS
3
STORIES
1
CARS
3
PLANS FROM $1,245
For questions and help, live chat, email or call us at 877-895-5299
Floor Plans
Click to Zoom In on Floor Plan
 
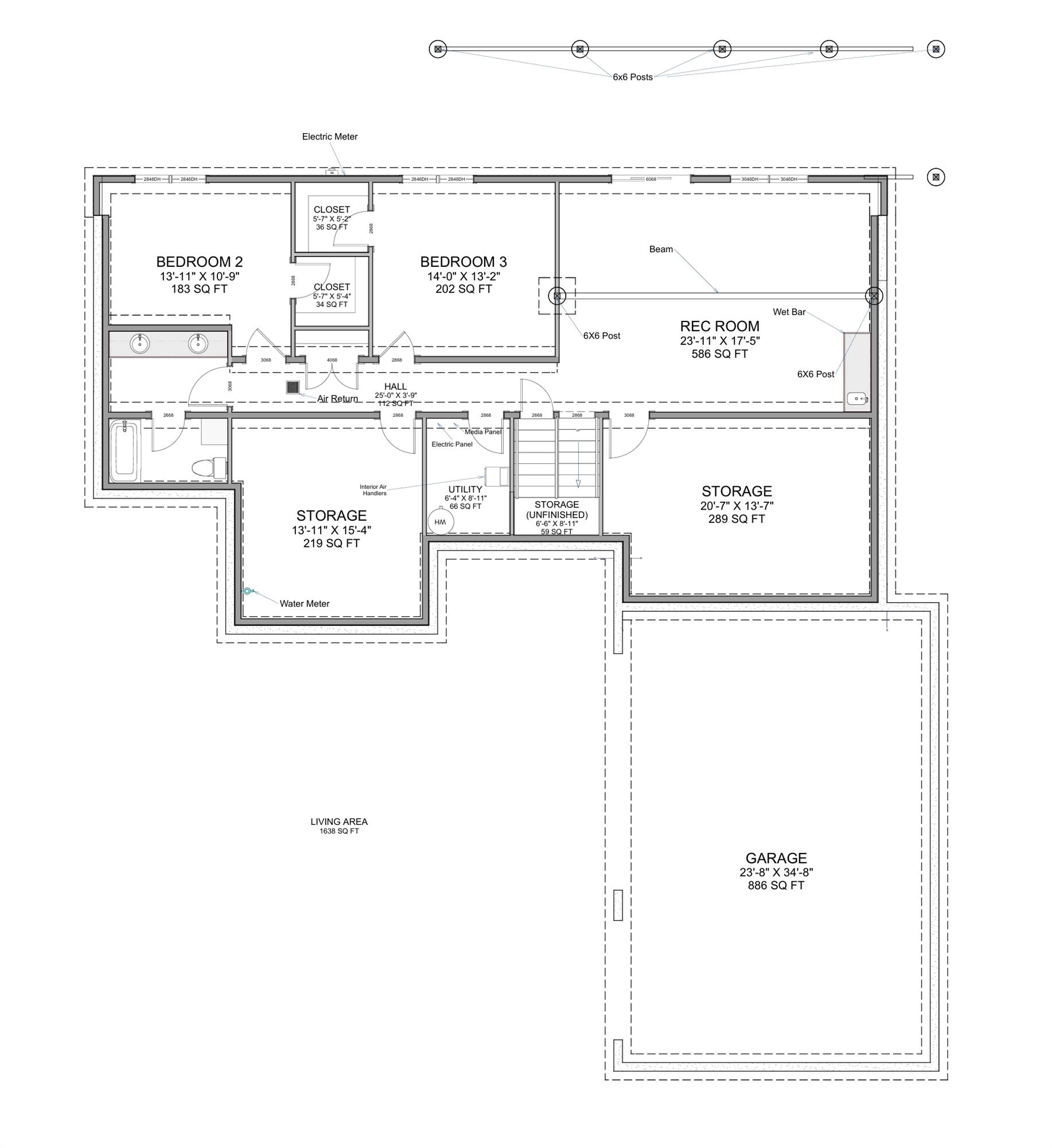
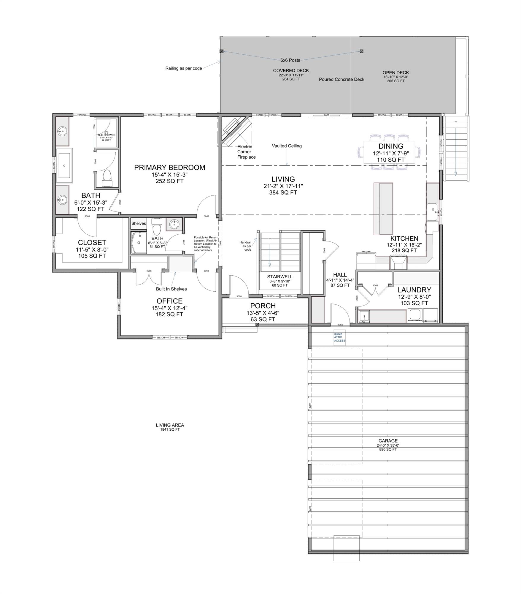
About House Plan 11787:
This layout balances convenience with a sense of retreat, making good use of its 1,775 square feet on the main floor and 1,564 square feet on the lower level. The vaulted kitchen brings visual height while offering generous workspace for cooking and gathering. The dining and living areas connect smoothly, creating an effortless flow for hosting or unwinding. The primary suite sits on the main floor with a walk-in closet and double vanities for added comfort. Two additional bedrooms are thoughtfully placed to offer privacy for family or guests. The lower-level rec room adds flexibility for play, fitness, or media setups. With abundant storage, a welcoming front porch, and a wide deck overlooking the yard, the home feels spacious, warm, and ready for everyday living.
House Plan Pricing
STEP 1 Select Your Package

PDF Single Build


Digital plans emailed to you in PDF format that allows for printing copies and sharing electronically with contractors, subs, decorators, and more. This package includes a license to build the home one time.

PDF Single Build $1,245
Most recommended package

PDF Unlimited Build


Digital plans with an unlimited build license emailed in PDF format, that allows for printing copies on a home printer or local print shop and sharing with contractors, subs, decorators and more 

PDF Unlimited Build $1,745
Digital plans including unlimited build license

CAD + PDF Unlimited Build


CAD files are a complete set of construction drawings delivered electronically. They can be used for any type of modification—including major design changes and engineering—and include a release granting permission to modify the plan. Most CAD plan orders are emailed the same or next business day.
 
This package also comes with a PDF set of plans and a multi-use building license, granting permission to construct the home an unlimited number of times, along with a copyright release for making modifications and printing unlimited copies.
 
CAD files are provided in .dwg format. For details on the specific CAD program used, please refer to the PLAN DETAILS section located above the floor plan on each plan’s page.

CAD + PDF Unlimited Build $2,245
2D electronic editable computer files
STEP 2 Need To Reverse This Plan?
STEP 3 CHOOSE YOUR FOUNDATION
STEP 4 OPTIONAL ADD-ONS
Subtotal:
$1245
FREE SHIPPING
 
Plan Details
See All Details
Finished Square Footage
1,775 Sq. Ft.
Main Level:
1,564 Sq. Ft.
Lower Level:
3,339 Sq. Ft.
Total:
Room Details
3
Bedrooms:
3
Full Baths:
General House Information
1
Number of Stories:
65' 2"
Width:
80' 9"
Depth:
Single
Dwelling Number:
Unfinished Square Footage
891 Sq. Ft.
Garage:
63 Sq. Ft.
Porch:
445 Sq. Ft.
Deck:
GARAGE
Front
Garage Location:
3
Garage Size:
Exterior Style
Country
Craftsman
Farmhouse
Modern Farmhouse
Ranch
Collections
First Home
Open Floor Plan
Outdoor Living
Split Bedroom
Foundation
Basement
Crawl Space
Daylight Basement
Monolithic Slab
Slab
Stem Wall Slab
Walkout Basement
Framing Information
Stick
Roof Framing:
2x4
Exterior Wall Framing:
Roof Pitch
6/12
Primary:
Insulation (R)
House And Ceiling Heights
9
First Floor Ceiling:
18' 2"
Maximum House Height:
Key Features
Attached
Deck
Dining Room
Double Vanity Sink
Fireplace
Front Porch
Home Office
Kitchen Island
Laundry 1st Fl
L-Shaped
Primary Bdrm Main Floor
Mud Room
Open Floor Plan
Outdoor Living Space
Peninsula / Eating Bar
Rec Room
Side-entry
Split Bedrooms
Storage Space
Suited for corner lot
Vaulted Great Room/Living
Vaulted Kitchen
Walk-in Closet
Walk-in Pantry

Our Guarantees

  • Only the highest quality plans
  • Int’l Residential Code Compliant
  • Full structural details on all plans
  • Best plan price guarantee
  • Free modification Estimates
  • Builder-ready construction drawings
  • Expert advice from leading designers
  •  PDFs NOW!™ plans in minutes
  • 100% satisfaction guarantee
  • Free Home Building Organizer