15% off ALL House Plans Sitewide
15% off ALL House Plans Sitewide

House Plan: DFD-11793

See All 14 Photos > (photographs may reflect modified homes)
© copyright by designer
SQ FT
2,526
BEDS
3
BATHS
2.5
STORIES
1
CARS
2
HOUSE PLANS SALE 
START AT  $1,058.25
For questions and help, live chat, email or call us at 877-895-5299
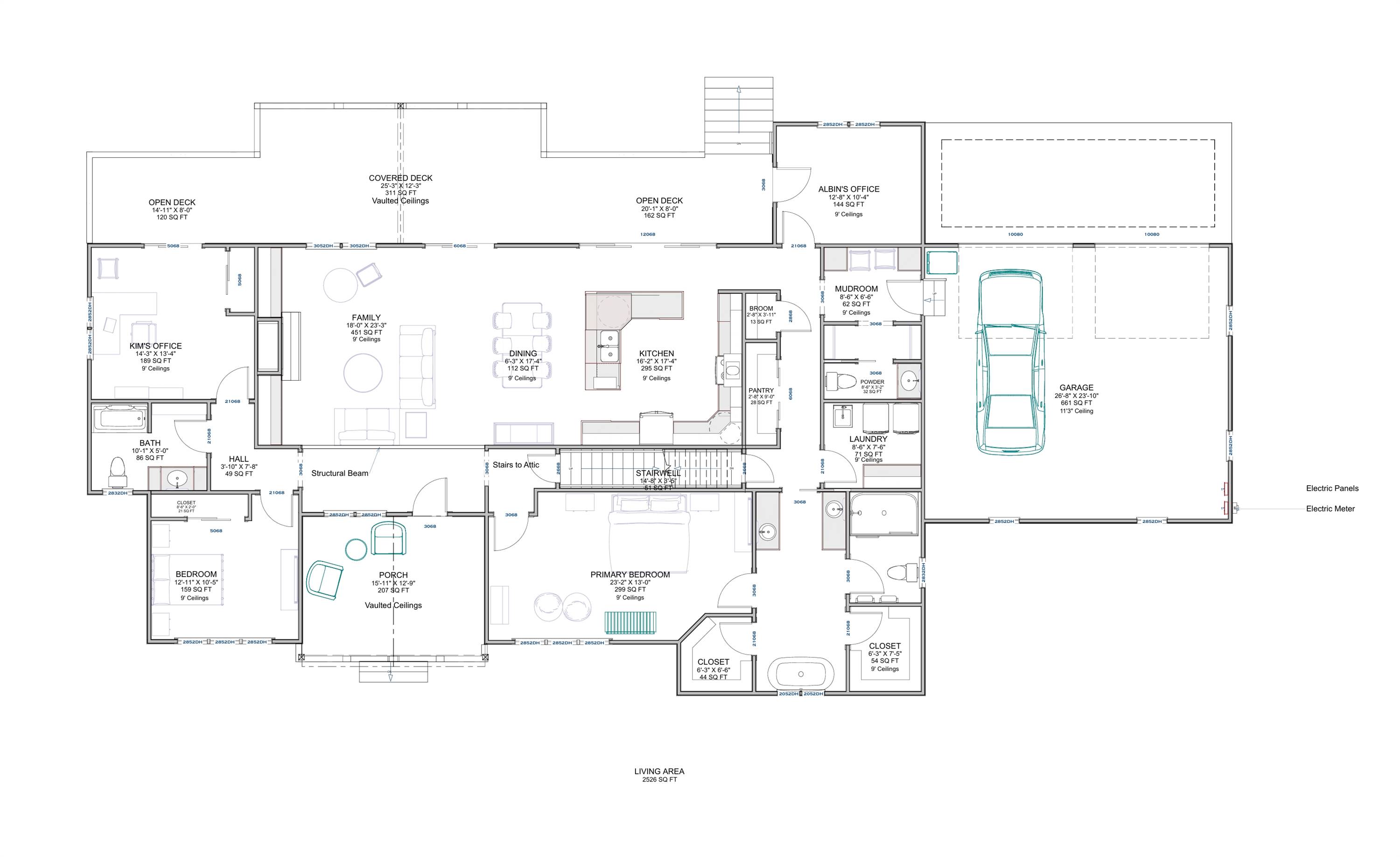
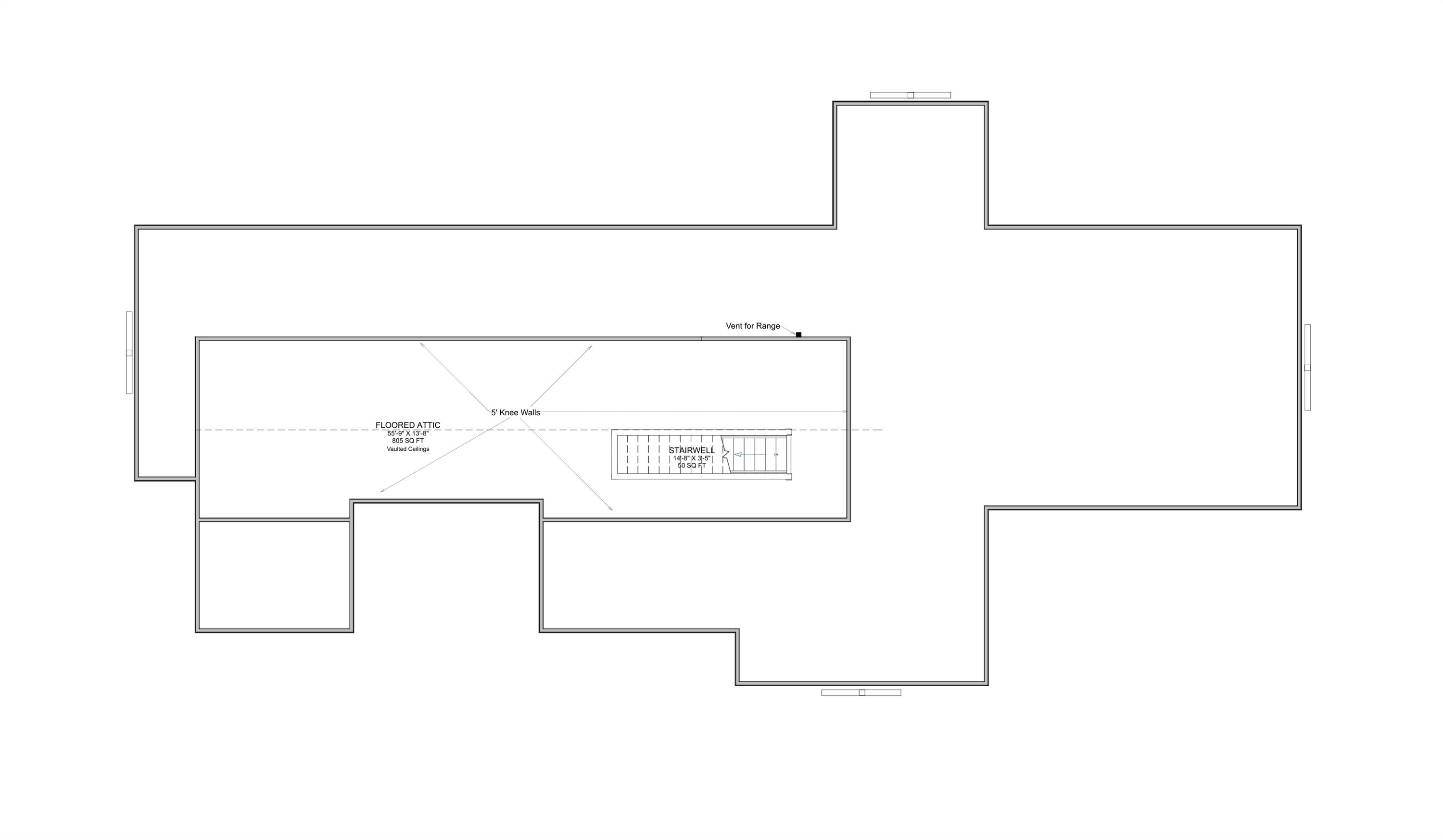
Floor Plans
Click to Zoom In on Floor Plan
 
About House Plan 11793:
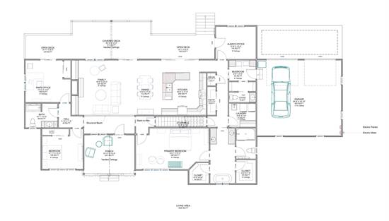
With 2,526 sq ft all on one level, this plan provides a smooth flow that suits families who value openness and simplicity. The central living areas connect seamlessly, with a bright family room leading into a kitchen equipped with a walk-in pantry and island seating. A split-bedroom layout ensures privacy for the main suite, which features two closets and a spa-style bath for added comfort. The dining room and outdoor deck expand your options for entertaining or enjoying relaxed evenings. A mud room and rear-entry garage keep the home tidy and functional, while the additional storage areas offer room to grow. Thoughtful details like the home office and open floor plan contribute to a layout that fits a wide range of lifestyles. Whether gathering together or finding quiet moments, this design makes everyday living refreshingly easy.
House Plan Pricing
STEP 1 Select Your Package

PDF Single Build


Digital plans emailed to you in PDF format that allows for printing copies and sharing electronically with contractors, subs, decorators, and more. This package includes a license to build the home one time.

PDF Single Build $1,245
Most recommended package

PDF Unlimited Build


Digital plans with an unlimited build license emailed in PDF format, that allows for printing copies on a home printer or local print shop and sharing with contractors, subs, decorators and more 

PDF Unlimited Build $1,745
Digital plans including unlimited build license

CAD + PDF Unlimited Build


This plan package is created in AutoCAD and delivered in .DWG format. CAD files are intended for use by design professionals, structural engineers, and builders to update plans for local building codes or to make revisions based on specific needs, lot requirements, and budget considerations. A complimentary PDF copy is included with this package for reference. CAD packages are delivered within 1 to 2 business days.
 
This package also comes with a multi-use building license, granting permission to construct the home an unlimited number of times, along with a copyright release for making revisions and printing unlimited copies.
 
For details on the specific CAD program used, please refer to the PLAN DETAILS section located above the floor plan on each plan page.

CAD + PDF Unlimited Build $2,245
2D electronic editable computer files
STEP 2 Need To Reverse This Plan?
STEP 3 CHOOSE YOUR FOUNDATION
STEP 4 OPTIONAL ADD-ONS
Subtotal:
$1245
FREE SHIPPING
 
Plan Details
See All Details
Finished Square Footage
2,526 Sq. Ft.
Main Level:
2,526 Sq. Ft.
Lower Level:
2,526 Sq. Ft.
Total:
Room Details
3
Bedrooms:
2
Full Baths:
1
Half Baths:
General House Information
1
Number of Stories:
100' 7"
Width:
50' 4"
Depth:
Single
Dwelling Number:
Unfinished Square Footage
661 Sq. Ft.
Garage:
207 Sq. Ft.
Porch:
597 Sq. Ft.
Deck:
GARAGE
Side
Garage Location:
2
Garage Size:
Exterior Style
Country
Farmhouse
Modern Farmhouse
Ranch
Collections
First Home
Open Floor Plan
Outdoor Living
Split Bedroom
Foundation
Basement
Crawl Space
Daylight Basement
Monolithic Slab
Slab
Stem Wall Slab
Walkout Basement
Framing Information
Stick
Roof Framing:
2x4
Exterior Wall Framing:
Roof Pitch
8/12
Primary:
10/12
Secondary:
Insulation (R)
House And Ceiling Heights
8
First Floor Ceiling:
22' 0"
Maximum House Height:
Key Features
Attached
Deck
Dining Room
Double Vanity Sink
Family Room
Fireplace
Front Porch
His and Hers Primary Closets
Home Office
Kitchen Island
Laundry 1st Fl
L-Shaped
Primary Bdrm Main Floor
Mud Room
Open Floor Plan
Outdoor Living Space
Peninsula / Eating Bar
Rear-entry
Separate Tub and Shower
Split Bedrooms
Storage Space
Suited for corner lot
Unfinished Space
Walk-in Closet
Walk-in Pantry

Our Guarantees

  • Only the highest quality plans
  • Int’l Residential Code Compliant
  • Full structural details on all plans
  • Best plan price guarantee
  • Free modification Estimates
  • Builder-ready construction drawings
  • Expert advice from leading designers
  •  PDFs NOW!™ plans in minutes
  • 100% satisfaction guarantee
  • Free Home Building Organizer