20% off ALL House Plans Sitewide

House Plan: DFD-11802

See All 13 Photos > (photographs may reflect modified homes)
© copyright by designer
SQ FT
2,366
BEDS
4
BATHS
2.5
STORIES
2
CARS
3
HOUSE PLANS SALE 
START AT  $956.00
For questions and help, live chat, email or call us at 877-895-5299
Floor Plans
Click to Zoom In on Floor Plan
 
About House Plan 11802:
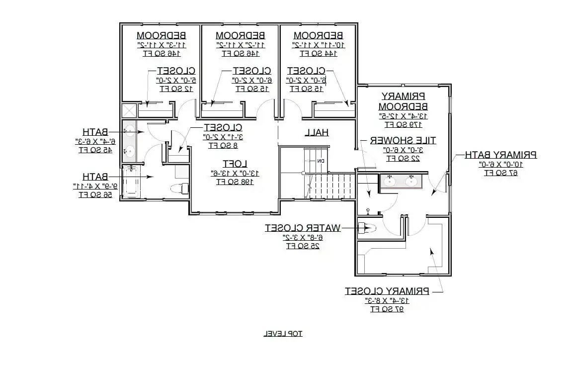
With 2,366 sq ft of heated space, this design emphasizes practical flow and inviting gathering areas. The kitchen anchors the main level with its island, peninsula, and butler’s pantry, opening directly to the family room for seamless connection during meals and celebrations. A rear porch creates an outdoor extension of the living space, offering an appealing spot for morning coffee or quiet evenings. The first-floor home office, mud room, and laundry area add highly functional touches that make day-to-day routines easier. Upstairs, the primary suite includes a double vanity and walk-in closet, joined by additional bedrooms and a flexible loft that can adapt to family needs over time. Generous storage space throughout the home keeps everything organized without cluttering the living areas. The front-entry garage provides simple access and dependable convenience. This layout has a warm, livable feel that supports both busy schedules and relaxing moments, making it a place that truly feels like home.
House Plan Pricing
STEP 1 Select Your Package

PDF Single Build


Digital plans emailed to you in PDF format that allows for printing copies and sharing electronically with contractors, subs, decorators, and more. This package includes a license to build the home one time.

PDF Single Build $1,195
Most recommended package

PDF Unlimited Build


Digital plans with an unlimited build license emailed in PDF format, that allows for printing copies on a home printer or local print shop and sharing with contractors, subs, decorators and more 

PDF Unlimited Build $1,695
Digital plans including unlimited build license

CAD + PDF Unlimited Build


This plan package is created in AutoCAD and delivered in .DWG format. CAD files are intended for use by design professionals, structural engineers, and builders to update plans for local building codes or to make revisions based on specific needs, lot requirements, and budget considerations. A complimentary PDF copy is included with this package for reference. CAD packages are delivered within 1 to 2 business days.
 
This package also comes with a multi-use building license, granting permission to construct the home an unlimited number of times, along with a copyright release for making revisions and printing unlimited copies.
 
For details on the specific CAD program used, please refer to the PLAN DETAILS section located above the floor plan on each plan page.

CAD + PDF Unlimited Build $2,195
2D electronic editable computer files
STEP 2 Need To Reverse This Plan?
STEP 3 CHOOSE YOUR FOUNDATION
STEP 4 OPTIONAL ADD-ONS
Subtotal:
$1195
FREE SHIPPING
 
Plan Details
See All Details
Finished Square Footage
1,120 Sq. Ft.
Main Level:
1,246 Sq. Ft.
Upper Level:
1,187 Sq. Ft.
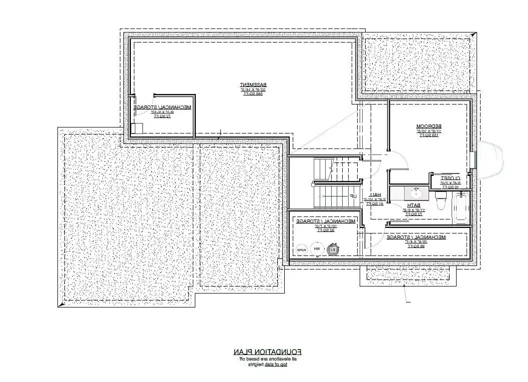
Lower Level:
2,366 Sq. Ft.
Total:
Room Details
4
Bedrooms:
2
Full Baths:
1
Half Baths:
General House Information
2
Number of Stories:
61' 0"
Width:
40' 0"
Depth:
Single
Dwelling Number:
Unfinished Square Footage
799 Sq. Ft.
Garage:
170 Sq. Ft.
Porch:
20 Sq. Ft.
Front Porch:
150 Sq. Ft.
Rear Porch:
GARAGE
Front
Garage Location:
3
Garage Size:
Exterior Style
Country
Farmhouse
Modern Farmhouse
Traditional
Transitional
Collections
Kitchens
Open Floor Plan
Foundation
Basement
Crawl Space
Monolithic Slab
Framing Information
Stick
Roof Framing:
2x4
Exterior Wall Framing:
Roof Pitch
8/12
Primary:
4/12
Secondary:
Insulation (R)
House And Ceiling Heights
9
First Floor Ceiling:
9
Second Floor Ceiling:
28' 9"
Maximum House Height:
Key Features
Attached
Butler's Pantry
Dining Room
Double Vanity Sink
Family Room
Family Style
Fireplace
Front-entry
Home Office
Kitchen Island
Laundry 1st Fl
Loft / Balcony
L-Shaped
Primary Bdrm Upstairs
Mud Room
Peninsula / Eating Bar
Rear Porch
Storage Space
Suited for corner lot
Walk-in Closet

Our Guarantees

  • Only the highest quality plans
  • Int’l Residential Code Compliant
  • Full structural details on all plans
  • Best plan price guarantee
  • Free modification Estimates
  • Builder-ready construction drawings
  • Expert advice from leading designers
  •  PDFs NOW!™ plans in minutes
  • 100% satisfaction guarantee
  • Free Home Building Organizer

See terms opt out anytime