House Plan: DFD-11813

See All 4 Photos > (photographs may reflect modified homes)
© copyright by designer
SQ FT
1,670
BEDS
1
BATHS
1
STORIES
1
CARS
0
PLANS FROM $1,680
For questions and help, live chat, email or call us at 877-895-5299
Floor Plans
Click to Zoom In on Floor Plan
 
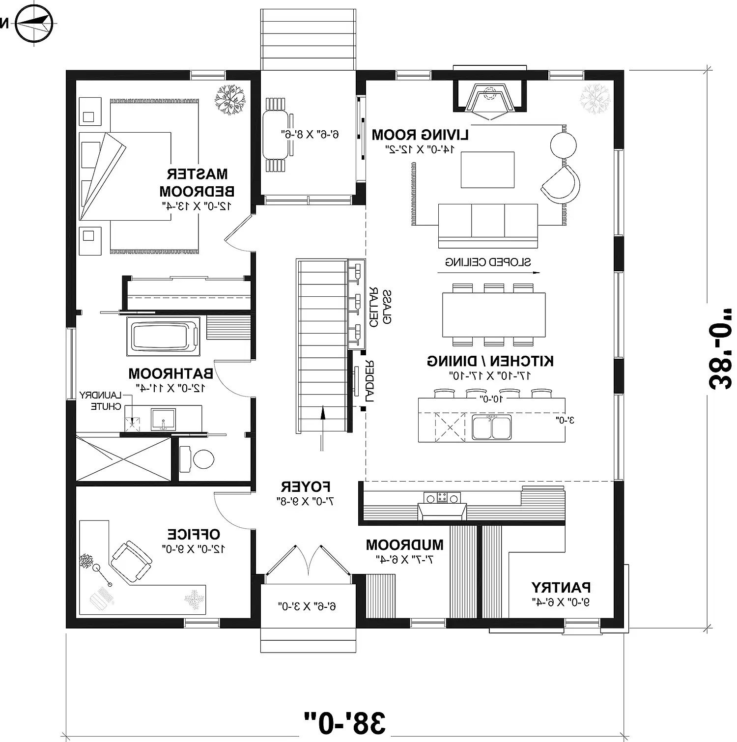
About House Plan 11813:
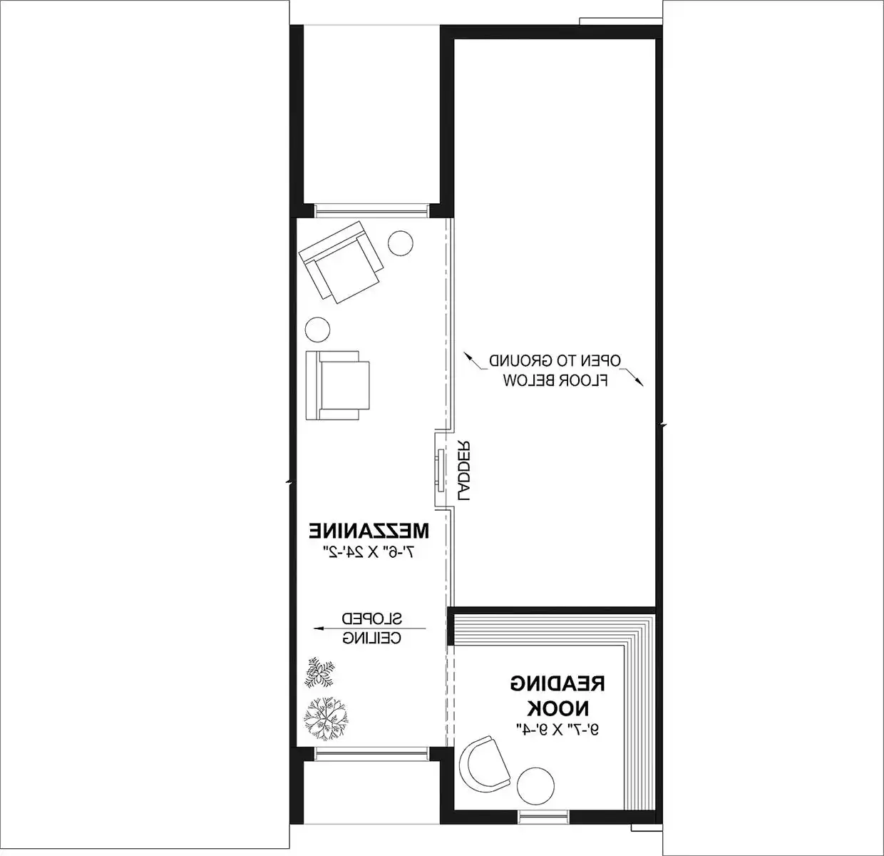
House Plan 11813 packs so much charm into a simple package that it makes an amazing vacation home or year-round residence for minimalists! The design offers 1,670 square feet with one bedroom and one bathroom on the main floor, where you'll also find an office and a vaulted great room. Highlights include the mudroom off the foyer and the wine cellar by the dining area. There's also a loft accessible by a ladder that overlooks the great room and has a secret bonus--a reading nook! 
House Plan Pricing
STEP 1 Select Your Package

PDF Single Build


Digital plans emailed to you in PDF format that allows for printing copies and sharing electronically with contractors, subs, decorators, and more. This package includes a license to build the home one time.

PDF Single Build $1,680
Most recommended package

3 Printed Sets + PDF


Includes 3 physical printed blueprint sets, shipped free via UPS within the U.S. Printed sets ship within 1 business day and are delivered within 3 – 5 business days. A complimentary PDF plan set is also emailed within 1 business day for easy sharing and local printing. These plans may be used to construct one home.

3 Printed Sets + PDF $1,820
3 Printed Sets + PDF

CAD + PDF Single Build


This plan package is created in AutoCAD and delivered in .DWG format. CAD files are intended for use by design professionals, structural engineers, and builders to update plans for local building codes or to make revisions based on specific needs, lot requirements, and budget considerations. A complimentary PDF copy is included with this package for reference. CAD packages are delivered within 1 to 2 business days.
 
This package also comes with a copyright release for making revisions and printing unlimited copies.

For details on the specific CAD program used, please refer to the PLAN DETAILS section located above the floor plan on each plan page.

CAD + PDF Single Build $2,680
2D electronic editable computer files
STEP 2 Need To Reverse This Plan?
STEP 3 CHOOSE YOUR FOUNDATION
STEP 4 OPTIONAL ADD-ONS
Subtotal:
$1680
FREE SHIPPING
Please allow 3-5 business days for delivery of this plan Please check our PDFs NOW collection for plans that can be downloaded and received immediately or live chat us to help you find a similar plan available now.
 
Plan Details
See All Details
Finished Square Footage
1,370 Sq. Ft.
Main Level:
300 Sq. Ft.
Upper Level:
1,370 Sq. Ft.
Lower Level:
1,670 Sq. Ft.
Total:
Room Details
1
Bedrooms:
1
Full Baths:
General House Information
1
Number of Stories:
38' 4"
Width:
38' 8"
Depth:
Single
Dwelling Number:
None
Bonus Access:
Unfinished Square Footage
20 Sq. Ft.
Porch:
GARAGE
0
Garage Size:
Exterior Style
Contemporary
Lake
Ranch
Scandinavian
Transitional
Collections
Affordable
Architects Choice
Cabin
Canada
Mountain
Open Floor Plan
Outdoor Living
Vacation
Foundation
Full Unfinished Basement (included)
Framing Information
Truss
Roof Framing:
2x6
Exterior Wall Framing:
Roof Pitch
6/12
Primary:
Insulation (R)
House And Ceiling Heights
8
First Floor Ceiling:
21' 0"
Maximum House Height:
Key Features
Covered Rear Porch
Fireplace
Great Room
Home Office
Kitchen Island
Loft / Balcony
Primary Bdrm Main Floor
Mud Room
None
Open Floor Plan
Separate Tub and Shower
Suited for view lot
Vaulted Ceilings
Vaulted Great Room/Living
Walk-in Pantry
Wine Cellar

Our Guarantees

  • Only the highest quality plans
  • Int’l Residential Code Compliant
  • Full structural details on all plans
  • Best plan price guarantee
  • Free modification Estimates
  • Builder-ready construction drawings
  • Expert advice from leading designers
  •  PDFs NOW!™ plans in minutes
  • 100% satisfaction guarantee
  • Free Home Building Organizer