17% off ALL House Plans Sitewide
17% off ALL House Plans Sitewide

House Plan: DFD-11820

See All 14 Photos > (photographs may reflect modified homes)
© copyright by designer
SQ FT
2,546
BEDS
4
BATHS
4
STORIES
2
CARS
0
HOUSE PLANS SALE 
START AT  $1,033.35
For questions and help, live chat, email or call us at 877-895-5299
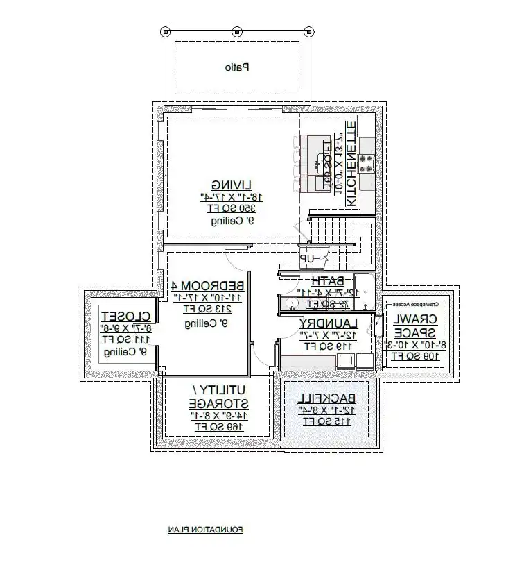
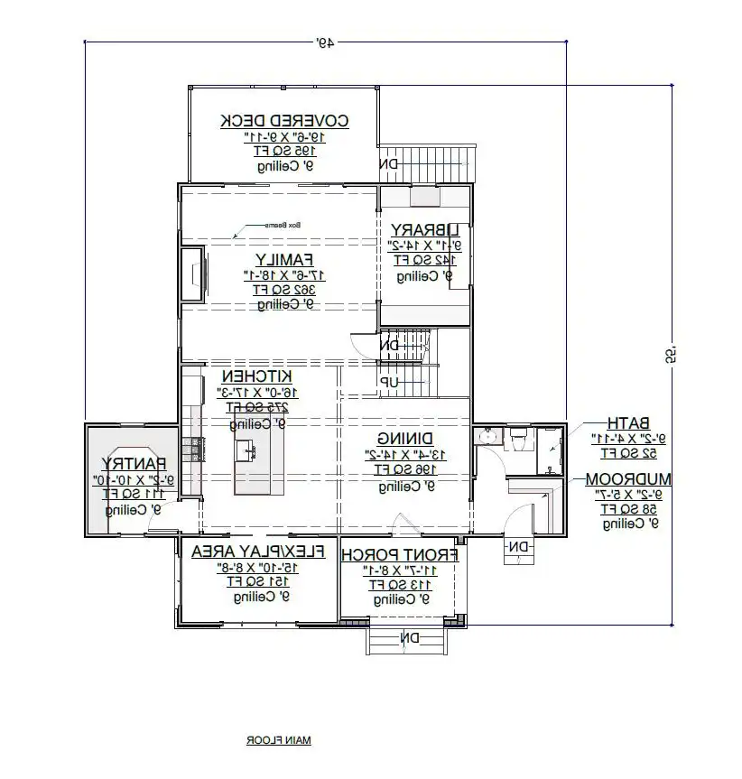
Floor Plans
Click to Zoom In on Floor Plan
 
About House Plan 11820:
Offering 2,546 square feet of thoughtfully arranged living space, this home is designed to support active family life with comfort and practicality. The kitchen’s L-shaped arrangement, large island, and butler’s pantry make meal prep smooth and enjoyable, while the connected family and dining rooms provide ideal places for gathering. A main-level library/media room, home office, and mud room help keep the household organized and adaptable. Upstairs, the vaulted primary suite creates a relaxing environment paired with a spacious bath and walk-in closet. The second-floor laundry brings added convenience, and each bedroom is designed with privacy and comfort in mind. A lower-level rec room expands the home’s flexibility, making room for hobbies, entertainment, or future customization. With its balanced layout and inviting features, this home offers a warm foundation where daily life feels both easy and enjoyable.
House Plan Pricing
STEP 1 Select Your Package

PDF Single Build


Digital plans emailed to you in PDF format that allows for printing copies and sharing electronically with contractors, subs, decorators, and more. This package includes a license to build the home one time.

PDF Single Build $1,245
Most recommended package

PDF Unlimited Build


Digital plans with an unlimited build license emailed in PDF format, that allows for printing copies on a home printer or local print shop and sharing with contractors, subs, decorators and more 

PDF Unlimited Build $1,745
Digital plans including unlimited build license

CAD + PDF Unlimited Build


CAD files are a complete set of construction drawings delivered electronically. They can be used for any type of modification—including major design changes and engineering—and include a release granting permission to modify the plan. Most CAD plan orders are emailed the same or next business day.
 
This package also comes with a PDF set of plans and a multi-use building license, granting permission to construct the home an unlimited number of times, along with a copyright release for making modifications and printing unlimited copies.
 
CAD files are provided in .dwg format. For details on the specific CAD program used, please refer to the PLAN DETAILS section located above the floor plan on each plan’s page.

CAD + PDF Unlimited Build $2,245
2D electronic editable computer files
STEP 2 Need To Reverse This Plan?
STEP 3 CHOOSE YOUR FOUNDATION
STEP 4 OPTIONAL ADD-ONS
Subtotal:
$1245
FREE SHIPPING
 
Plan Details
See All Details
Finished Square Footage
1,384 Sq. Ft.
Main Level:
1,162 Sq. Ft.
Upper Level:
1,336 Sq. Ft.
Lower Level:
2,546 Sq. Ft.
Total:
Room Details
4
Bedrooms:
4
Full Baths:
General House Information
2
Number of Stories:
49' 0"
Width:
55' 0"
Depth:
Single
Dwelling Number:
Unfinished Square Footage
113 Sq. Ft.
Porch:
195 Sq. Ft.
Deck:
GARAGE
0
Garage Size:
Exterior Style
Country
European
Farmhouse
French Country
Modern
Modern Farmhouse
Collections
Affordable
First Home
Outdoor Living
Foundation
Basement
Crawl Space
Daylight Basement
Monolithic Slab
Slab
Stem Wall Slab
Walkout Basement
Framing Information
Stick
Roof Framing:
2x4
Exterior Wall Framing:
Roof Pitch
8/12
Primary:
14/12
Secondary:
Insulation (R)
House And Ceiling Heights
9
First Floor Ceiling:
8
Second Floor Ceiling:
31' 9"
Maximum House Height:
Key Features
Butler's Pantry
Covered Front Porch
Deck
Dining Room
Double Vanity Sink
Family Room
Family Style
Fireplace
Home Office
Kitchen Island
Laundry 2nd Fl
Library/Media Rm
L-Shaped
Primary Bdrm Upstairs
Mud Room
None
Outdoor Living Space
Peninsula / Eating Bar
Rec Room
Separate Tub and Shower
Storage Space
Suited for corner lot
Vaulted Primary
Walk-in Closet

Our Guarantees

  • Only the highest quality plans
  • Int’l Residential Code Compliant
  • Full structural details on all plans
  • Best plan price guarantee
  • Free modification Estimates
  • Builder-ready construction drawings
  • Expert advice from leading designers
  •  PDFs NOW!™ plans in minutes
  • 100% satisfaction guarantee
  • Free Home Building Organizer