20% off ALL House Plans Sitewide
20% off ALL House Plans Sitewide

House Plan: DFD-11831

See All 7 Photos > (photographs may reflect modified homes)
© copyright by designer
SQ FT
3,778
BEDS
4
BATHS
4.5
STORIES
2
CARS
2
HOUSE PLANS SALE 
START AT  $1,036.00
For questions and help, live chat, email or call us at 877-895-5299
Floor Plans
Click to Zoom In on Floor Plan
 
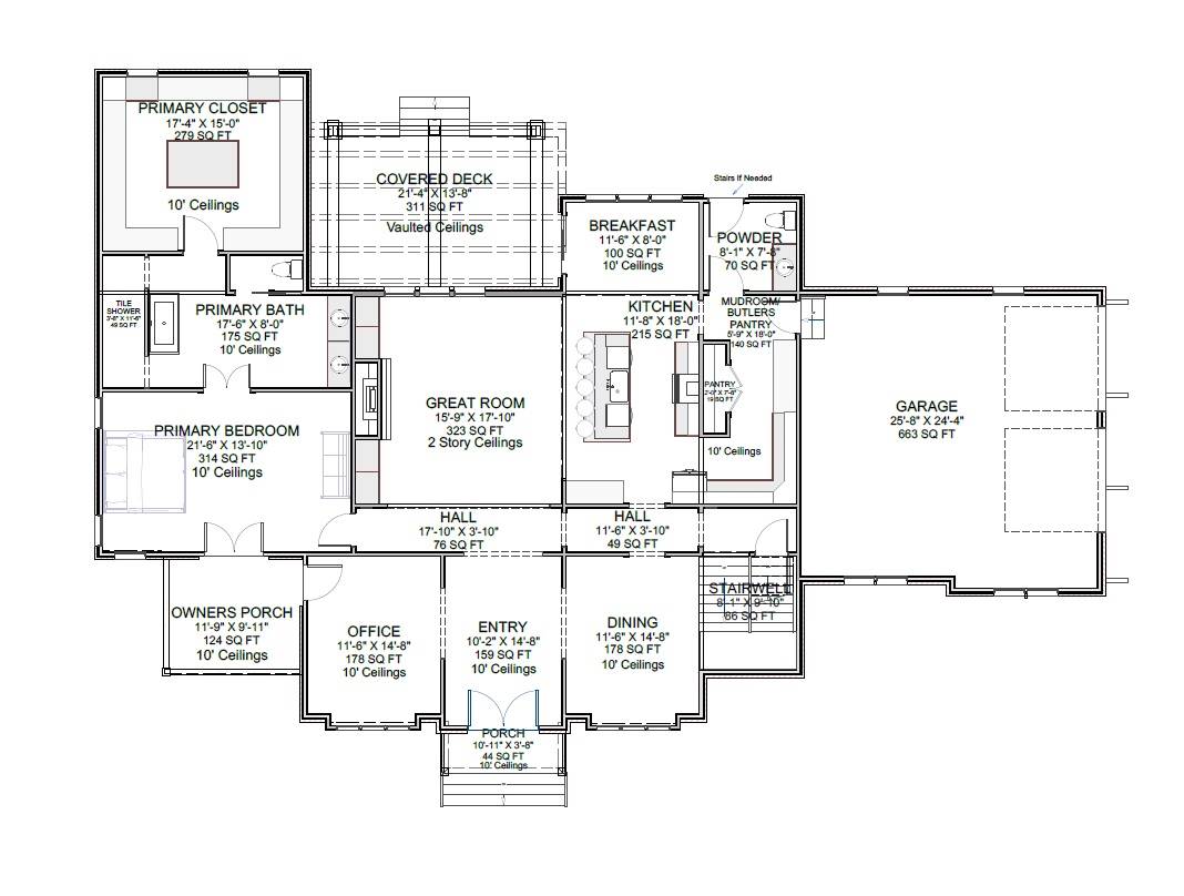
About House Plan 11831:
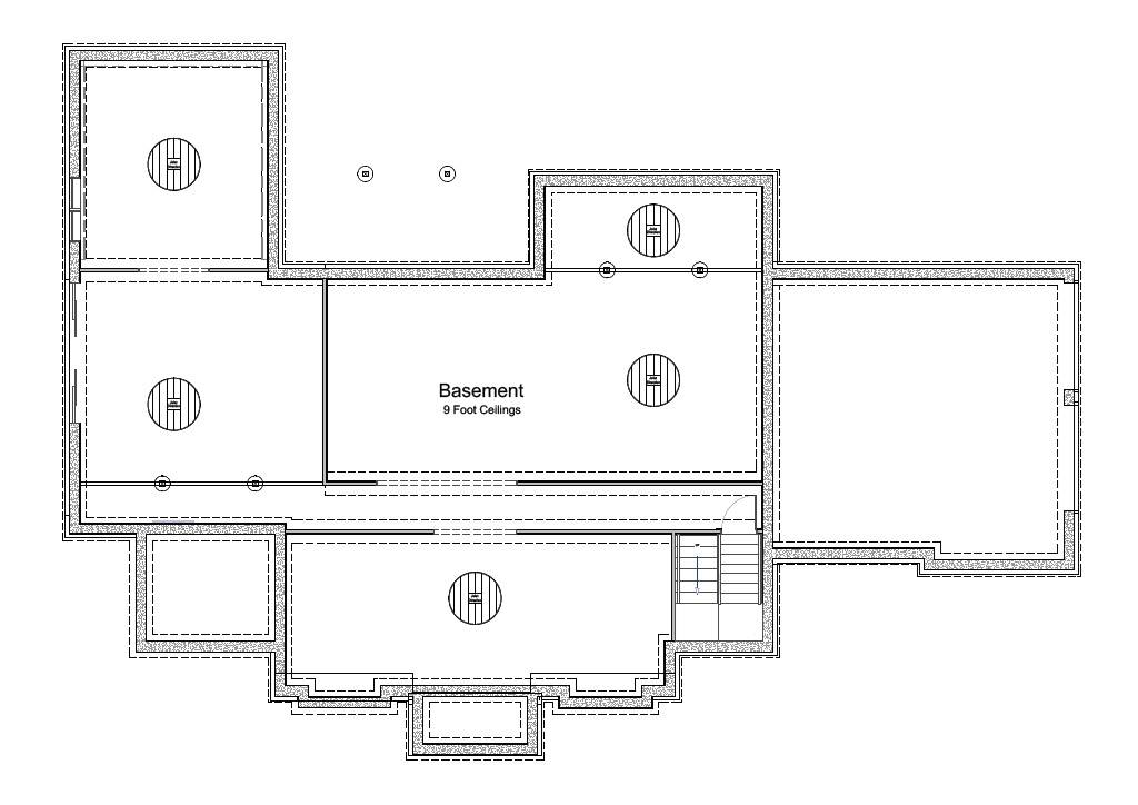
Offering 3,778 square feet of heated living space, this home balances open gathering areas with restful private rooms to support a variety of lifestyles. The kitchen is thoughtfully designed with a large island, peninsula seating, butler’s pantry, and a breakfast nook that makes mealtimes feel inviting. The great room opens gracefully to the dining area and porches, allowing seamless transitions between indoor comfort and outdoor relaxation. The main-floor primary suite brings convenience and retreat together with its spacious layout and well-appointed bath. Upstairs, secondary bedrooms are arranged with comfort in mind, and the rec room provides a bonus area ideal for entertainment or quiet downtime. The expansive lower level adds valuable room for future projects, storage, or additional living space. With its warm flow and flexible design, this home offers a comfortable foundation for memorable living every day.
House Plan Pricing
STEP 1 Select Your Package

PDF Single Build


Digital plans emailed to you in PDF format that allows for printing copies and sharing electronically with contractors, subs, decorators, and more. This package includes a license to build the home one time.

PDF Single Build $1,295
Most recommended package

PDF Unlimited Build


Digital plans with an unlimited build license emailed in PDF format, that allows for printing copies on a home printer or local print shop and sharing with contractors, subs, decorators and more 

PDF Unlimited Build $1,795
Digital plans including unlimited build license

CAD + PDF Unlimited Build


CAD files are a complete set of construction drawings delivered electronically. They can be used for any type of modification—including major design changes and engineering—and include a release granting permission to modify the plan. Most CAD plan orders are emailed the same or next business day.
 
This package also comes with a PDF set of plans and a multi-use building license, granting permission to construct the home an unlimited number of times, along with a copyright release for making modifications and printing unlimited copies.
 
CAD files are provided in .dwg format. For details on the specific CAD program used, please refer to the PLAN DETAILS section located above the floor plan on each plan’s page.

CAD + PDF Unlimited Build $2,295
2D electronic editable computer files
STEP 2 Need To Reverse This Plan?
STEP 3 CHOOSE YOUR FOUNDATION
STEP 4 OPTIONAL ADD-ONS
Subtotal:
$1295
FREE SHIPPING
 
Plan Details
See All Details
Finished Square Footage
2,398 Sq. Ft.
Main Level:
1,380 Sq. Ft.
Upper Level:
3,778 Sq. Ft.
Total:
Room Details
4
Bedrooms:
4
Full Baths:
1
Half Baths:
General House Information
2
Number of Stories:
86' 8"
Width:
60' 8"
Depth:
Single
Dwelling Number:
Unfinished Square Footage
663 Sq. Ft.
Garage:
168 Sq. Ft.
Porch:
331 Sq. Ft.
Deck:
GARAGE
Side
Garage Location:
2
Garage Size:
Exterior Style
Farmhouse
Modern Farmhouse
Transitional
Collections
Kitchens
Luxury
Split Bedroom
Foundation
Basement
Crawl Space
Daylight Basement
Monolithic Slab
Slab
Stem Wall Slab
Walkout Basement
Framing Information
Stick
Roof Framing:
2x4
Exterior Wall Framing:
Roof Pitch
10/12
Primary:
6/12
Secondary:
Insulation (R)
House And Ceiling Heights
10
First Floor Ceiling:
9
Second Floor Ceiling:
36' 1"
Maximum House Height:
Key Features
Attached
Butler's Pantry
Covered Rear Porch
Deck
Dining Room
Double Vanity Sink
Fireplace
Front Porch
Great Room
Home Office
Kitchen Island
Laundry 1st Fl
L-Shaped
Primary Bdrm Main Floor
Mud Room
Nook / Breakfast Area
Peninsula / Eating Bar
Rec Room
Separate Tub and Shower
Side-entry
Split Bedrooms
Suited for corner lot
Walk-in Closet

Our Guarantees

  • Only the highest quality plans
  • Int’l Residential Code Compliant
  • Full structural details on all plans
  • Best plan price guarantee
  • Free modification Estimates
  • Builder-ready construction drawings
  • Expert advice from leading designers
  •  PDFs NOW!™ plans in minutes
  • 100% satisfaction guarantee
  • Free Home Building Organizer