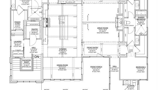
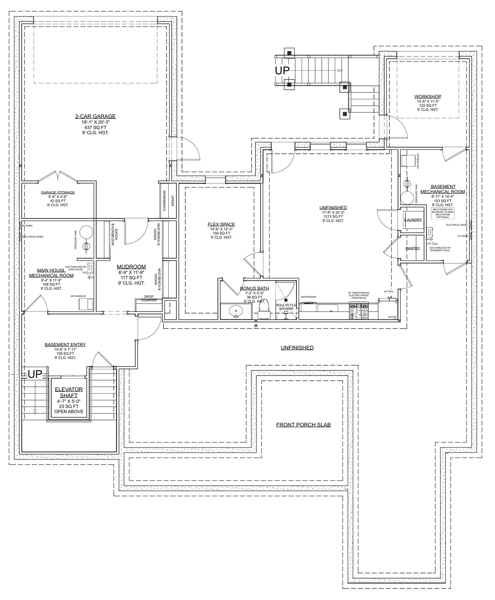
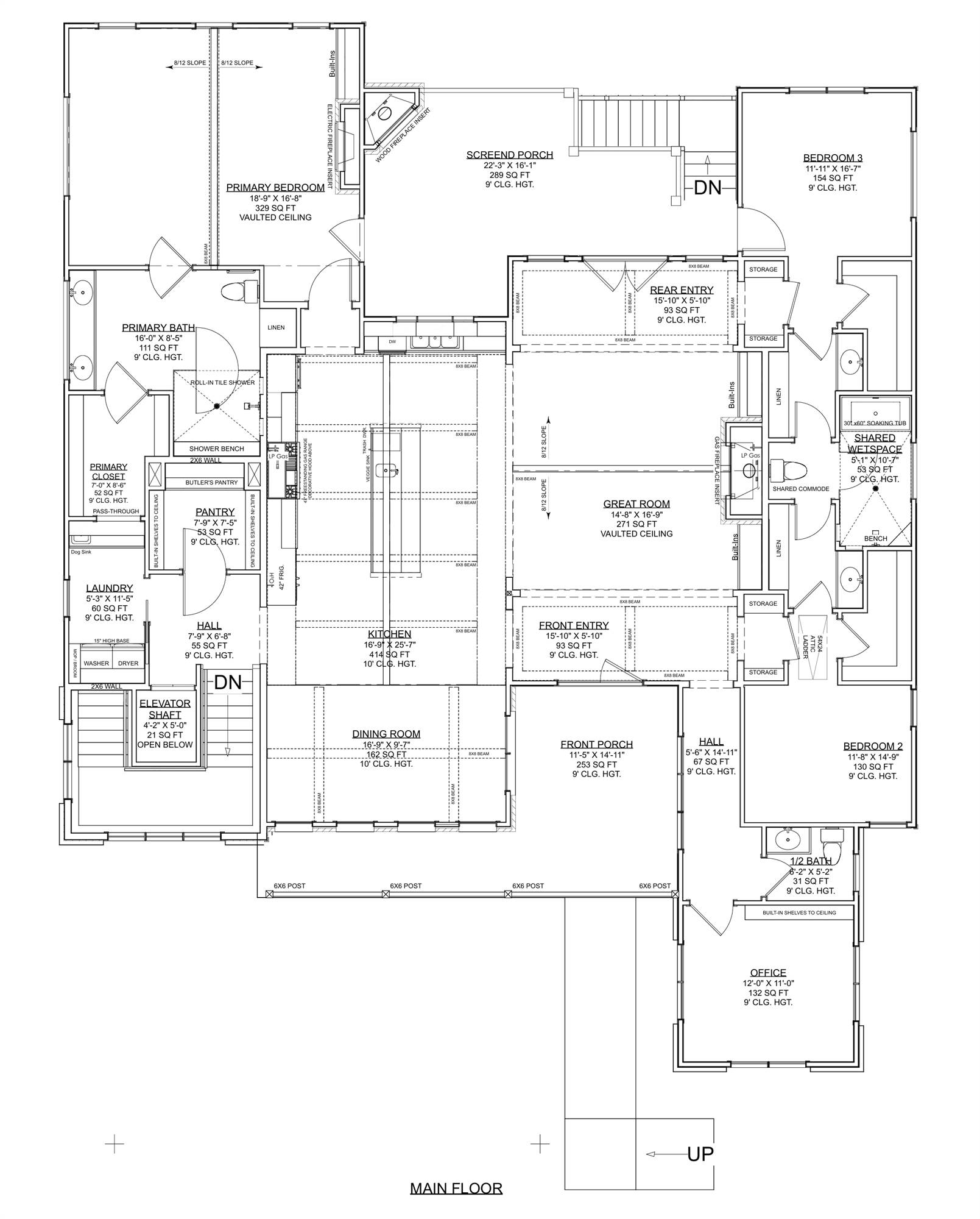
This charming 4,009 square foot design offers a balanced mix of open living areas and restful private rooms, making it well suited for modern family needs. The kitchen’s island, peninsula seating, and butler’s pantry create a functional and welcoming hub that naturally connects to the dining room and great room. Outdoor living is encouraged with a covered front porch and a spacious rear porch that expands gathering options. The main-floor primary bedroom provides comfort with its double vanity bath and walk-in closet, while the split-bedroom layout keeps secondary rooms quiet and separate. Practical spaces such as the home office, mud room, and first-floor laundry enhance everyday efficiency. The lower level adds opportunities for customization with a rec room, unfinished areas, and a workshop designed for creative projects. With its inviting layout and flexible spaces, this home provides a warm foundation for enjoyable daily living.