15% off ALL House Plans Sitewide
15% off ALL House Plans Sitewide

House Plan: DFD-11835

See All 11 Photos > (photographs may reflect modified homes)
© copyright by designer
SQ FT
1,788
BEDS
4
BATHS
2.5
STORIES
2
CARS
1
HOUSE PLANS SALE 
START AT  $973.25
For questions and help, live chat, email or call us at 877-895-5299
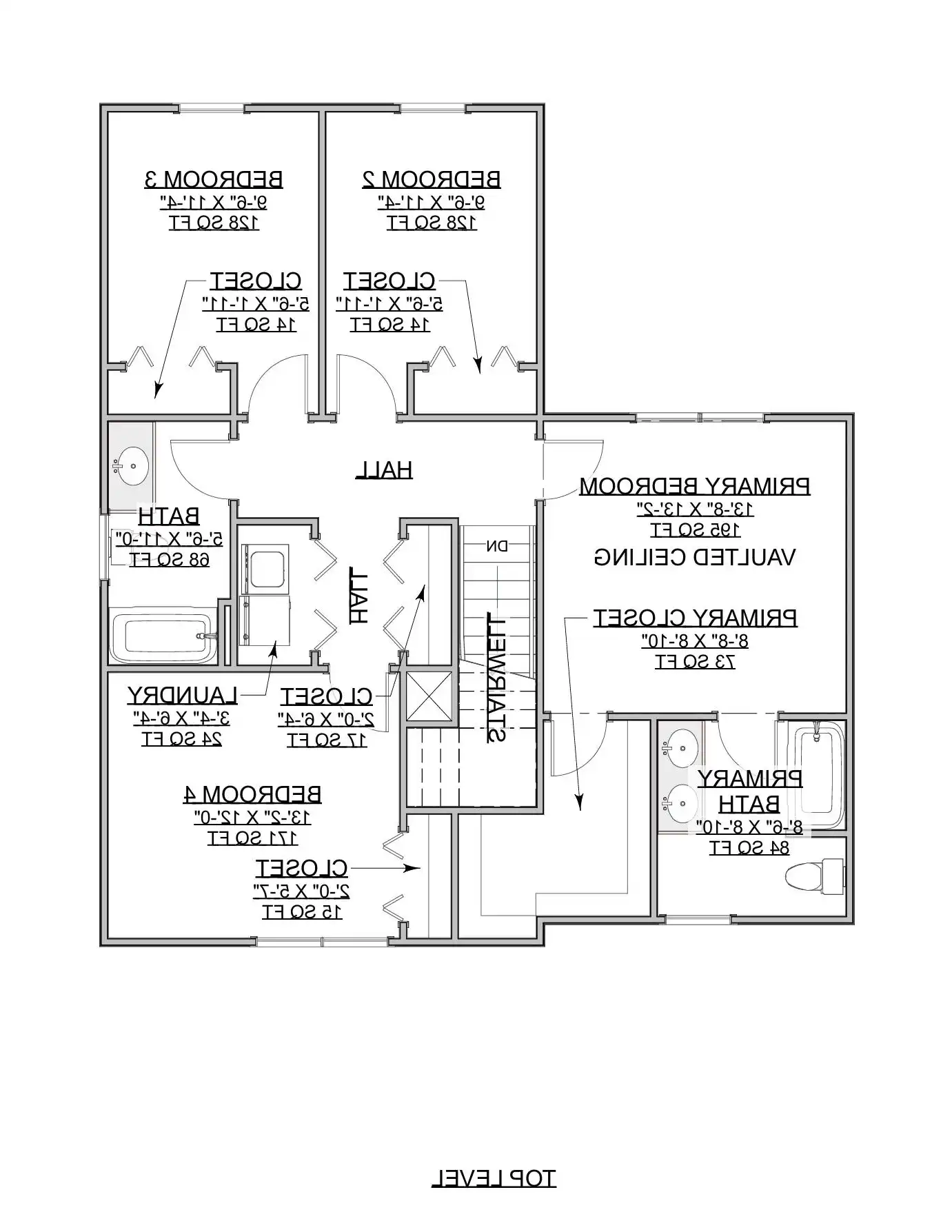
Floor Plans
Click to Zoom In on Floor Plan
 
About House Plan 11835:
This charming 1,788 square foot plan combines efficient use of space with inviting areas designed for comfortable family routines. The kitchen features an island, peninsula seating, and a butler’s pantry, giving you a versatile workspace that connects seamlessly to the dining and family rooms. A front porch welcomes guests, while the rear porch provides an easy outdoor extension of the main living areas. The upstairs primary suite offers a vaulted ceiling, double vanity bath, and generous walk-in closet, creating a restful and private escape. Three additional bedrooms share the upper floor with a conveniently located laundry room that simplifies daily chores. A main-floor home office adds practicality for work, study, or planning. Blending warmth, function, and an easy flow between spaces, this home creates an atmosphere that feels comfortable and lived-in from the moment you step inside.
House Plan Pricing
STEP 1 Select Your Package

PDF Single Build


Digital plans emailed to you in PDF format that allows for printing copies and sharing electronically with contractors, subs, decorators, and more. This package includes a license to build the home one time.

PDF Single Build $1,145
Most recommended package

PDF Unlimited Build


Digital plans with an unlimited build license emailed in PDF format, that allows for printing copies on a home printer or local print shop and sharing with contractors, subs, decorators and more 

PDF Unlimited Build $1,645
Digital plans including unlimited build license

CAD + PDF Unlimited Build


This plan package is created in AutoCAD and delivered in .DWG format. CAD files are intended for use by design professionals, structural engineers, and builders to update plans for local building codes or to make revisions based on specific needs, lot requirements, and budget considerations. A complimentary PDF copy is included with this package for reference. CAD packages are delivered within 1 to 2 business days.
 
This package also comes with a multi-use building license, granting permission to construct the home an unlimited number of times, along with a copyright release for making revisions and printing unlimited copies.
 
For details on the specific CAD program used, please refer to the PLAN DETAILS section located above the floor plan on each plan page.

CAD + PDF Unlimited Build $2,145
2D electronic editable computer files
STEP 2 Need To Reverse This Plan?
STEP 3 CHOOSE YOUR FOUNDATION
STEP 4 OPTIONAL ADD-ONS
Subtotal:
$1145
FREE SHIPPING
 
Plan Details
See All Details
Finished Square Footage
760 Sq. Ft.
Main Level:
1,028 Sq. Ft.
Upper Level:
1,788 Sq. Ft.
Total:
Room Details
4
Bedrooms:
2
Full Baths:
1
Half Baths:
General House Information
2
Number of Stories:
34' 0"
Width:
54' 0"
Depth:
Single
Dwelling Number:
Unfinished Square Footage
322 Sq. Ft.
Garage:
GARAGE
Front
Garage Location:
1
Garage Size:
Exterior Style
Country
Farmhouse
Modern Farmhouse
Traditional
Collections
Affordable
First Home
Open Floor Plan
Foundation
Basement
Crawl Space
Daylight Basement
Monolithic Slab
Slab
Stem Wall Slab
Walkout Basement
Framing Information
Slab
Roof Framing:
2x4
Exterior Wall Framing:
Roof Pitch
10/12
Primary:
8/12
Secondary:
Insulation (R)
House And Ceiling Heights
9
First Floor Ceiling:
9
Second Floor Ceiling:
28' 6"
Maximum House Height:
Key Features
Attached
Butler's Pantry
Dining Room
Double Vanity Sink
Family Room
Family Style
Front Porch
Front-entry
Home Office
Kitchen Island
Laundry 2nd Fl
L-Shaped
Primary Bdrm Upstairs
Open Floor Plan
Peninsula / Eating Bar
Rear Porch
Suited for corner lot
Vaulted Primary
Walk-in Closet

Our Guarantees

  • Only the highest quality plans
  • Int’l Residential Code Compliant
  • Full structural details on all plans
  • Best plan price guarantee
  • Free modification Estimates
  • Builder-ready construction drawings
  • Expert advice from leading designers
  •  PDFs NOW!™ plans in minutes
  • 100% satisfaction guarantee
  • Free Home Building Organizer