House Plan: DFD-11836

See All 17 Photos > (photographs may reflect modified homes)
© copyright by designer
SQ FT
3,786
BEDS
4
BATHS
4.5
STORIES
1.5
CARS
3
PLANS FROM $1,295
For questions and help, live chat, email or call us at 877-895-5299
Floor Plans
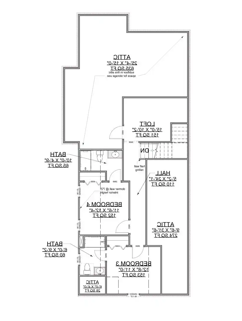
Click to Zoom In on Floor Plan
 
About House Plan 11836:
This charming 3,786 square foot plan blends comfort, storage, and open design into a layout that supports relaxed family living. The kitchen’s island, peninsula, and butler’s pantry provide functional cooking and prep space while connecting smoothly to the great room, where a vaulted ceiling adds a sense of volume and warmth. The main-floor primary suite features a spacious bath with double vanities and a walk-in closet, while the split-bedroom layout enhances privacy for both family and guests. A welcoming foyer leads into the heart of the home, and nearby spaces such as the exercise room, home office, and rec room offer versatility for work, play, and wellness. The covered front and rear porches, along with the back patio, give you multiple ways to enjoy the outdoors. With its comfortable flow and inviting spaces, this home offers a warm and easygoing setting that suits everyday life beautifully.
House Plan Pricing
STEP 1 Select Your Package

PDF Single Build


Digital plans emailed to you in PDF format that allows for printing copies and sharing electronically with contractors, subs, decorators, and more. This package includes a license to build the home one time.

PDF Single Build $1,295
Most recommended package

PDF Unlimited Build


Digital plans with an unlimited build license emailed in PDF format, that allows for printing copies on a home printer or local print shop and sharing with contractors, subs, decorators and more 

PDF Unlimited Build $1,795
Digital plans including unlimited build license

CAD + PDF Unlimited Build


This plan package is created in AutoCAD and delivered in .DWG format. CAD files are intended for use by design professionals, structural engineers, and builders to update plans for local building codes or to make revisions based on specific needs, lot requirements, and budget considerations. A complimentary PDF copy is included with this package for reference. CAD packages are delivered within 1 to 2 business days.
 
This package also comes with a multi-use building license, granting permission to construct the home an unlimited number of times, along with a copyright release for making revisions and printing unlimited copies.
 
For details on the specific CAD program used, please refer to the PLAN DETAILS section located above the floor plan on each plan page.

CAD + PDF Unlimited Build $2,295
2D electronic editable computer files
STEP 2 Need To Reverse This Plan?
STEP 3 CHOOSE YOUR FOUNDATION
STEP 4 OPTIONAL ADD-ONS
Subtotal:
$1295
FREE SHIPPING
 
Plan Details
See All Details
Finished Square Footage
3,066 Sq. Ft.
Main Level:
720 Sq. Ft.
Upper Level:
3,786 Sq. Ft.
Total:
Room Details
4
Bedrooms:
4
Full Baths:
1
Half Baths:
General House Information
1.5
Number of Stories:
91' 6"
Width:
68' 0"
Depth:
Single
Dwelling Number:
Unfinished Square Footage
909 Sq. Ft.
Garage:
575 Sq. Ft.
Porch:
178 Sq. Ft.
Front Porch:
397 Sq. Ft.
Rear Porch:
GARAGE
Front
Garage Location:
3
Garage Size:
Exterior Style
Country
Modern
Southern
Transitional
Collections
Kitchens
Luxury
Primary Suites
Split Bedroom
Foundation
Basement
Crawl Space
Daylight Basement
Monolithic Slab
Slab
Stem Wall Slab
Walkout Basement
Framing Information
Stick
Roof Framing:
2x4
Exterior Wall Framing:
Roof Pitch
8/12
Primary:
12/12
Secondary:
Insulation (R)
House And Ceiling Heights
9
First Floor Ceiling:
8
Second Floor Ceiling:
22' 0"
Maximum House Height:
Key Features
Attached
Butler's Pantry
Covered Front Porch
Covered Rear Porch
Dining Room
Double Vanity Sink
Exercise Room
Foyer
Great Room
Home Office
Kitchen Island
Laundry 1st Fl
L-Shaped
Primary Bdrm Main Floor
Mud Room
Peninsula / Eating Bar
Rec Room
Separate Tub and Shower
Side-entry
Split Bedrooms
Storage Space
Suited for corner lot
Vaulted Great Room/Living
Walk-in Closet

Our Guarantees

  • Only the highest quality plans
  • Int’l Residential Code Compliant
  • Full structural details on all plans
  • Best plan price guarantee
  • Free modification Estimates
  • Builder-ready construction drawings
  • Expert advice from leading designers
  •  PDFs NOW!™ plans in minutes
  • 100% satisfaction guarantee
  • Free Home Building Organizer