20% off ALL House Plans Sitewide
20% off ALL House Plans Sitewide

House Plan: DFD-11856

See All 36 Photos > (photographs may reflect modified homes)
© copyright by designer
SQ FT
3,753
BEDS
5
BATHS
3.5
STORIES
2
CARS
2
HOUSE PLANS SALE 
START AT  $1,036.00
For questions and help, live chat, email or call us at 877-895-5299
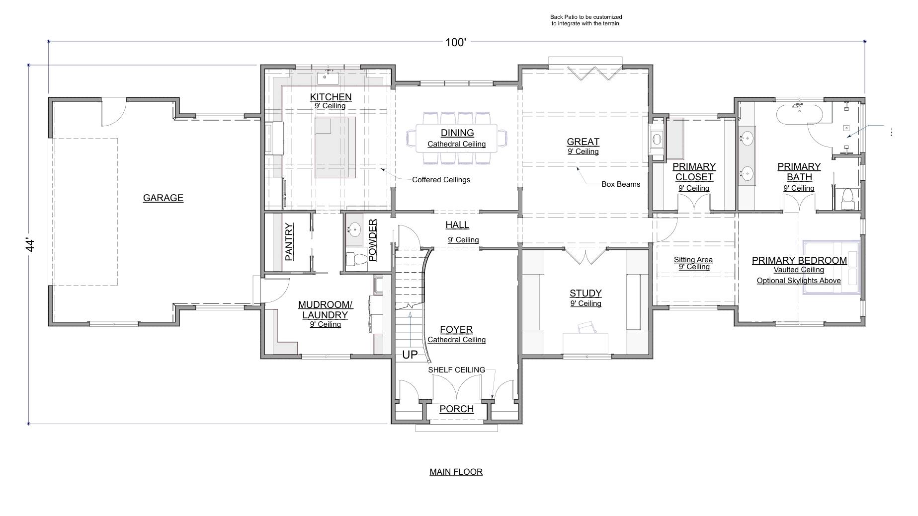
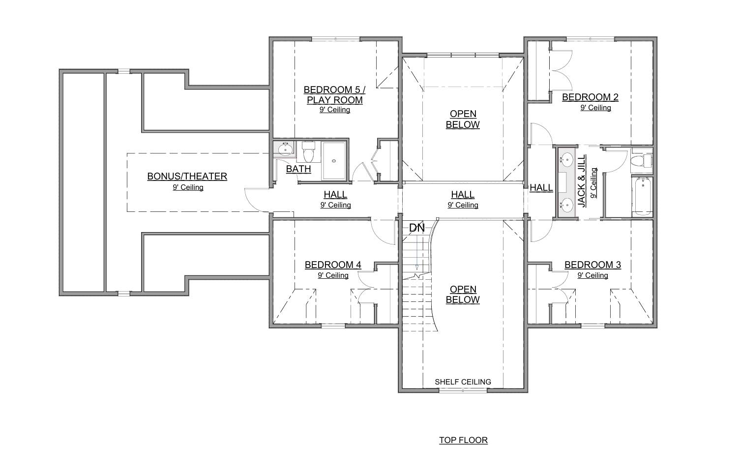
Floor Plans
Click to Zoom In on Floor Plan
 
About House Plan 11856:
This charming 3,753 square feet design creates a warm family atmosphere with a spacious great room at its heart and a kitchen arranged for easy movement and conversation. The main-floor primary suite brings comfort with its sitting area, two walk-in closets, and a relaxing bath that invites quiet, end-of-day unwinding. The dining room and foyer add a sense of openness, while the mud room and walk-in pantry make everyday routines smoother. Upstairs, a collection of bedrooms and bonus spaces offers a flexible layout for guests, hobbies, or growing families. A dedicated library/media room and large recreation room give even more room to personalize the home. Front and rear porches provide cozy outdoor settings for morning coffee or evening gatherings. Altogether, the layout blends spaciousness and warmth, offering a home that feels inviting the moment you step inside.
House Plan Pricing
STEP 1 Select Your Package

PDF Single Build


Digital plans emailed to you in PDF format that allows for printing copies and sharing electronically with contractors, subs, decorators, and more. This package includes a license to build the home one time.

PDF Single Build $1,295
Most recommended package

PDF Unlimited Build


Digital plans with an unlimited build license emailed in PDF format, that allows for printing copies on a home printer or local print shop and sharing with contractors, subs, decorators and more 

PDF Unlimited Build $1,795
Digital plans including unlimited build license

CAD + PDF Unlimited Build


CAD files are a complete set of construction drawings delivered electronically. They can be used for any type of modification—including major design changes and engineering—and include a release granting permission to modify the plan. Most CAD plan orders are emailed the same or next business day.
 
This package also comes with a PDF set of plans and a multi-use building license, granting permission to construct the home an unlimited number of times, along with a copyright release for making modifications and printing unlimited copies.
 
CAD files are provided in .dwg format. For details on the specific CAD program used, please refer to the PLAN DETAILS section located above the floor plan on each plan’s page.

CAD + PDF Unlimited Build $2,295
2D electronic editable computer files
STEP 2 Need To Reverse This Plan?
STEP 3 CHOOSE YOUR FOUNDATION
STEP 4 OPTIONAL ADD-ONS
Subtotal:
$1295
FREE SHIPPING
 
Plan Details
See All Details
Finished Square Footage
2,495 Sq. Ft.
Main Level:
1,258 Sq. Ft.
Upper Level:
3,753 Sq. Ft.
Total:
Room Details
5
Bedrooms:
3
Full Baths:
1
Half Baths:
General House Information
2
Number of Stories:
100' 0"
Width:
44' 0"
Depth:
Single
Dwelling Number:
2nd Floor
Bonus Access:
Unfinished Square Footage
688 Sq. Ft.
Garage:
19 Sq. Ft.
Porch:
343 Sq. Ft.
Bonus Room:
GARAGE
Side
Garage Location:
2
Garage Size:
Exterior Style
European
Traditional
Collections
Kitchens
Luxury
Primary Suites
Open Floor Plan
Split Bedroom
Foundation
Basement
Crawl Space
Daylight Basement
Monolithic Slab
Slab
Stem Wall Slab
Walkout Basement
Framing Information
Truss
Roof Framing:
2x6
Exterior Wall Framing:
Roof Pitch
10/12
Primary:
16/12
Secondary:
Insulation (R)
House And Ceiling Heights
9
First Floor Ceiling:
9
Second Floor Ceiling:
32' 1"
Maximum House Height:
Key Features
Attached
Bonus Room
Dining Room
Double Vanity Sink
Fireplace
Foyer
Front Porch
Great Room
Kitchen Island
Laundry 1st Fl
Library/Media Rm
L-Shaped
Primary Bdrm Main Floor
Mud Room
Peninsula / Eating Bar
Rear Porch
Rec Room
Separate Tub and Shower
Side-entry
Sitting Area
Split Bedrooms
Suited for corner lot
Vaulted Primary
Walk-in Closet
Walk-in Pantry

Our Guarantees

  • Only the highest quality plans
  • Int’l Residential Code Compliant
  • Full structural details on all plans
  • Best plan price guarantee
  • Free modification Estimates
  • Builder-ready construction drawings
  • Expert advice from leading designers
  •  PDFs NOW!™ plans in minutes
  • 100% satisfaction guarantee
  • Free Home Building Organizer