20% off ALL House Plans Sitewide
20% off ALL House Plans Sitewide

House Plan: DFD-11859

See All 17 Photos > (photographs may reflect modified homes)
© copyright by designer
SQ FT
1,779
BEDS
3
BATHS
2.5
STORIES
2
CARS
0
HOUSE PLANS SALE 
START AT  $916.00
For questions and help, live chat, email or call us at 877-895-5299
Floor Plans
Click to Zoom In on Floor Plan
 
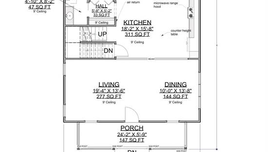
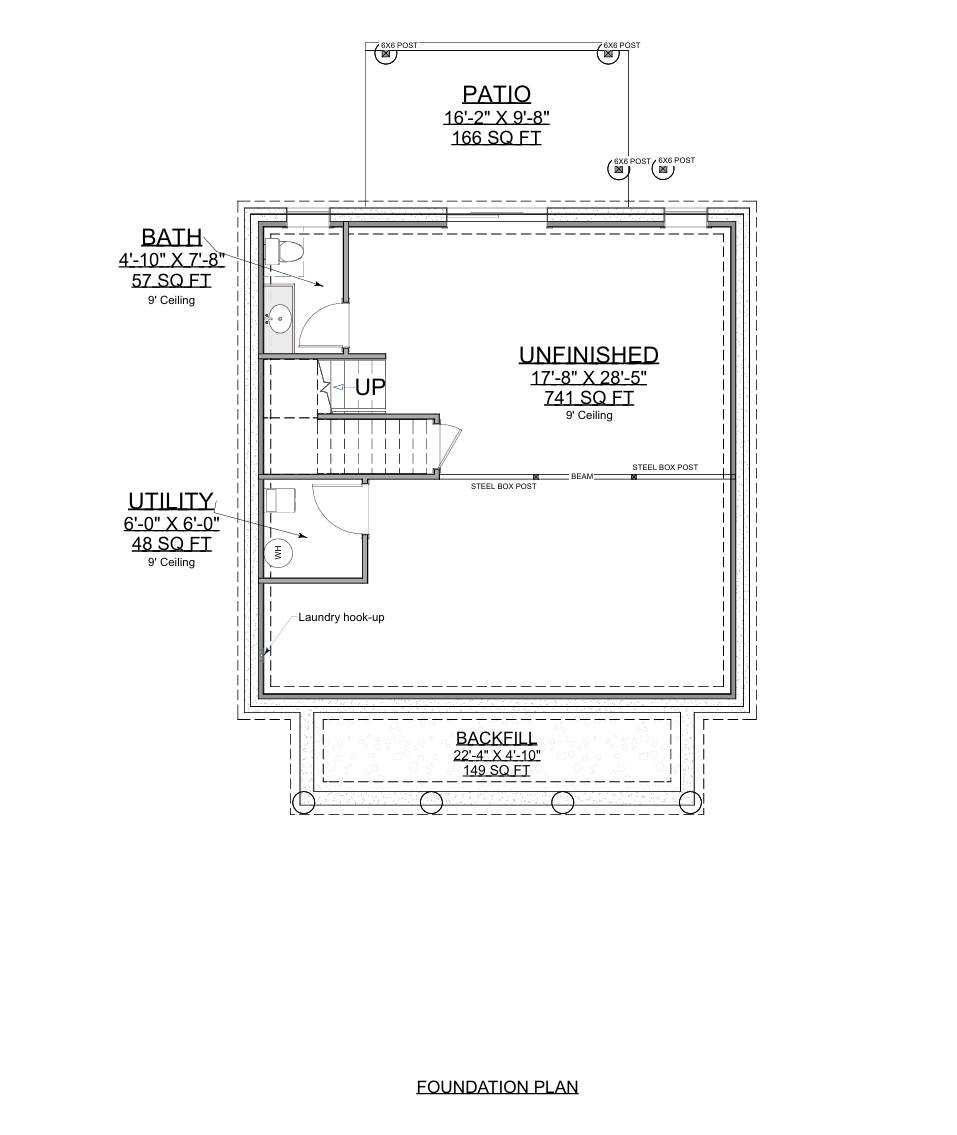
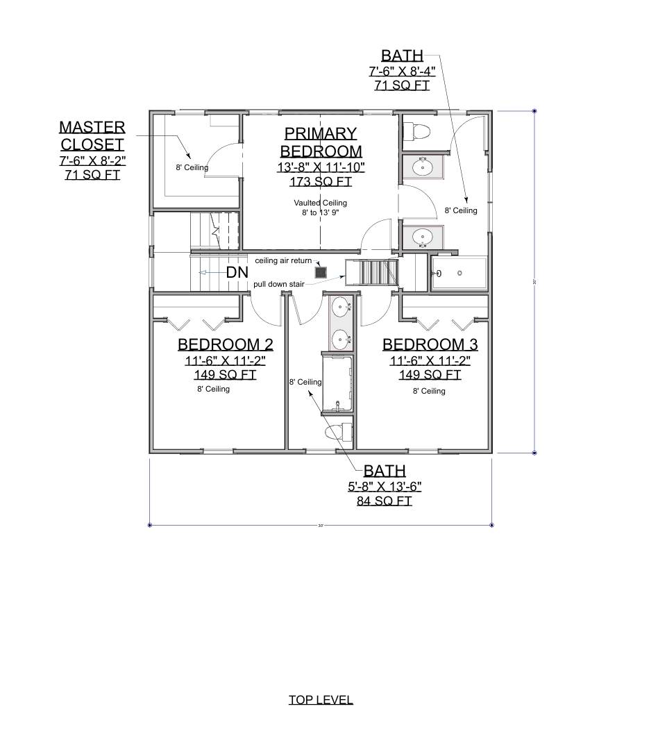
About House Plan 11859:
This charming 1,779 square feet plan blends simplicity and warmth in a design that feels both inviting and efficient. The main floor features an open dining space that flows naturally toward the kitchen, arranged in a classic L-shape to make cooking and entertaining easy. The upstairs primary suite is a comfortable haven, complete with a walk-in closet, double sinks, and a private bath with a separate tub and shower. Two additional bedrooms offer flexibility for family or guests, while the first-floor laundry adds a touch of convenience to daily routines. A basement level provides unfinished space for storage or future projects, allowing the home to grow with your needs. With its covered front porch and spacious rear deck, this home encourages outdoor enjoyment throughout the seasons. Altogether, it delivers a cozy and functional layout that feels just right for comfortable family living.
House Plan Pricing
STEP 1 Select Your Package

PDF Single Build


Digital plans emailed to you in PDF format that allows for printing copies and sharing electronically with contractors, subs, decorators, and more. This package includes a license to build the home one time.

PDF Single Build $1,145
Most recommended package

PDF Unlimited Build


Digital plans with an unlimited build license emailed in PDF format, that allows for printing copies on a home printer or local print shop and sharing with contractors, subs, decorators and more 

PDF Unlimited Build $1,645
Digital plans including unlimited build license

CAD + PDF Unlimited Build


CAD files are a complete set of construction drawings delivered electronically. They can be used for any type of modification—including major design changes and engineering—and include a release granting permission to modify the plan. Most CAD plan orders are emailed the same or next business day.
 
This package also comes with a PDF set of plans and a multi-use building license, granting permission to construct the home an unlimited number of times, along with a copyright release for making modifications and printing unlimited copies.
 
CAD files are provided in .dwg format. For details on the specific CAD program used, please refer to the PLAN DETAILS section located above the floor plan on each plan’s page.

CAD + PDF Unlimited Build $2,145
2D electronic editable computer files
STEP 2 Need To Reverse This Plan?
STEP 3 CHOOSE YOUR FOUNDATION
STEP 4 OPTIONAL ADD-ONS
Subtotal:
$1145
FREE SHIPPING
 
Plan Details
See All Details
Finished Square Footage
832 Sq. Ft.
Main Level:
842 Sq. Ft.
Upper Level:
105 Sq. Ft.
Lower Level:
1,779 Sq. Ft.
Total:
Room Details
3
Bedrooms:
2
Full Baths:
1
Half Baths:
General House Information
2
Number of Stories:
30' 0"
Width:
46' 0"
Depth:
Single
Dwelling Number:
Unfinished Square Footage
147 Sq. Ft.
Porch:
153 Sq. Ft.
Deck:
GARAGE
0
Garage Size:
Exterior Style
Cottage
Country
Traditional
Collections
Cabin
First Home
Open Floor Plan
Outdoor Living
Foundation
Basement
Crawl Space
Daylight Basement
Monolithic Slab
Slab
Stem Wall Slab
Walkout Basement
Framing Information
Stick
Roof Framing:
2x4
Exterior Wall Framing:
Roof Pitch
12/12
Primary:
4/12
Secondary:
Insulation (R)
House And Ceiling Heights
9
First Floor Ceiling:
8
Second Floor Ceiling:
34' 2"
Maximum House Height:
Key Features
Covered Front Porch
Covered Rear Porch
Deck
Dining Room
Double Vanity Sink
Family Style
Laundry 1st Fl
L-Shaped
Primary Bdrm Upstairs
None
Open Floor Plan
Suited for corner lot
Unfinished Space
Vaulted Primary
Walk-in Closet

Our Guarantees

  • Only the highest quality plans
  • Int’l Residential Code Compliant
  • Full structural details on all plans
  • Best plan price guarantee
  • Free modification Estimates
  • Builder-ready construction drawings
  • Expert advice from leading designers
  •  PDFs NOW!™ plans in minutes
  • 100% satisfaction guarantee
  • Free Home Building Organizer