15% off ALL House Plans Sitewide
15% off ALL House Plans Sitewide

House Plan: DFD-11866

See All 13 Photos > (photographs may reflect modified homes)
© copyright by designer
SQ FT
1,984
BEDS
3
BATHS
2
STORIES
1
CARS
2
HOUSE PLANS SALE 
START AT  $1,062.50
For questions and help, live chat, email or call us at 877-895-5299
Floor Plans
Click to Zoom In on Floor Plan
 
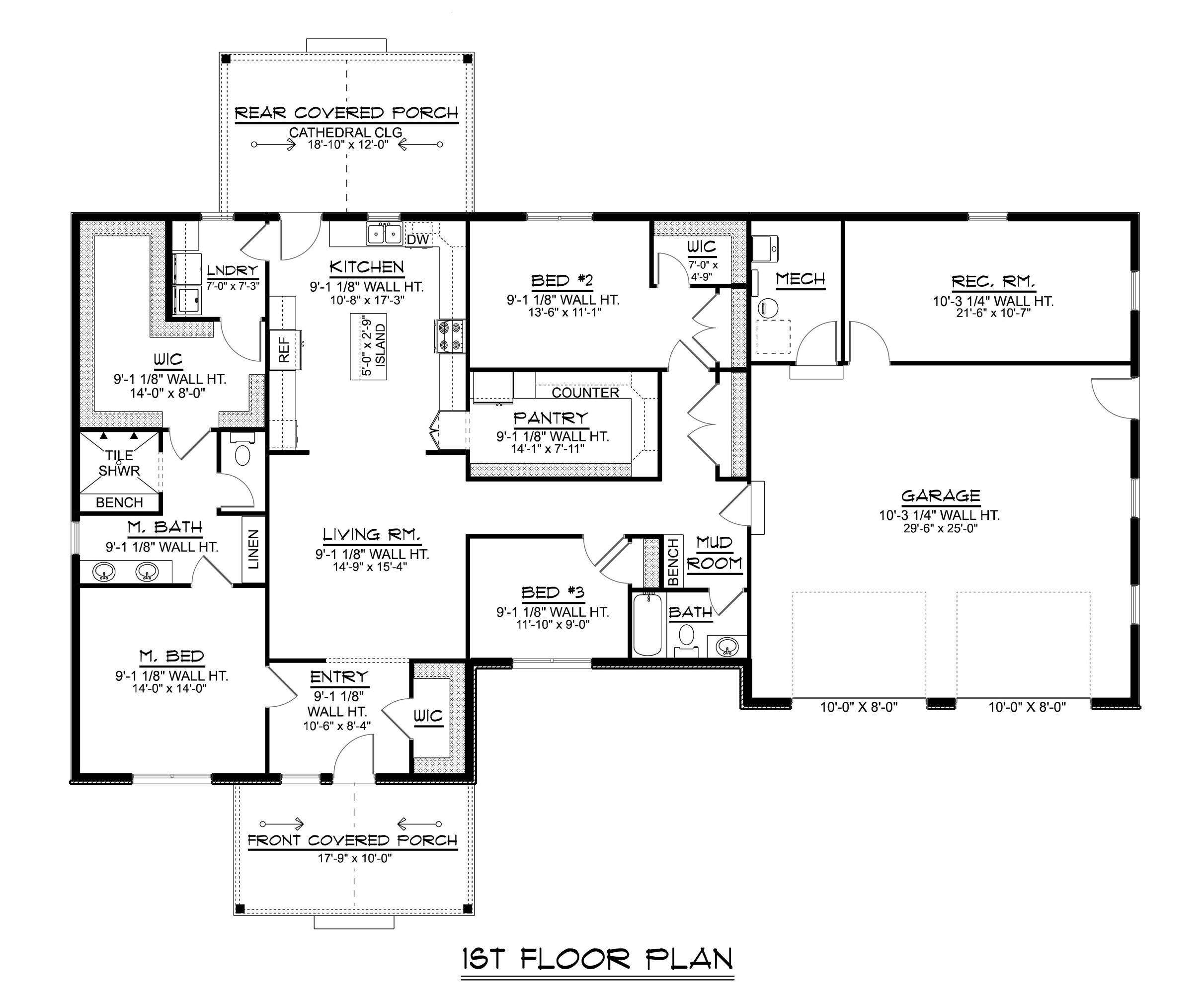
About House Plan 11866:
House Plan 11866 showcases a modern barndominium design that balances bold curb appeal with a highly functional interior layout. With 1,984 square feet of living space, this home includes three bedrooms, two full bathrooms, and a spacious 1,071 square foot two car garage. The covered front porch welcomes you into an open foyer that leads directly into the main living area, where the living room and kitchen flow together seamlessly for everyday living and entertaining. A large kitchen island anchors the space, while a walk-in butler’s pantry provides generous storage and keeps the kitchen organized and efficient. The primary suite is privately located and features a relaxing ensuite with a tile shower, a walk-in closet, and convenient access to the laundry room. Two secondary bedrooms and a full bathroom are situated on the opposite side of the home, offering a practical split-bedroom layout. A flexible recreation room located beyond the garage adds valuable bonus space, ideal for fitness, hobbies, or entertainment, while covered front and rear porches create inviting outdoor living areas for year-round enjoyment.
House Plan Pricing
STEP 1 Select Your Package

PDF Single Build


Digital plans emailed to you in PDF format that allows for printing copies and sharing electronically with contractors, subs, decorators, and more. This package includes a license to build the home one time.

PDF Single Build $1,250
Most recommended package

5 Printed Sets + PDF


Includes 5 physical printed blueprints shipped and delivered within 3-5 business days and a copyright release license to construct one home and to make copies. A complimentary PDF plan set is also emailed within 1 business day for easy sharing and local printing. 

5 Printed Sets + PDF $1,600
5 Printed Sets + PDF

PDF Unlimited Build


Digital plans with an unlimited build license emailed in PDF format, that allows for printing copies on a home printer or local print shop and sharing with contractors, subs, decorators and more 

PDF Unlimited Build $1,850
Digital plans including unlimited build license

CAD + PDF Single Build


This plan package is created in AutoCAD and delivered in .DWG format. CAD files are intended for use by design professionals, structural engineers, and builders to update plans for local building codes or to make revisions based on specific needs, lot requirements, and budget considerations. A complimentary PDF copy is included with this package for reference. CAD packages are delivered within 1 to 2 business days.
 
This package also comes with a copyright release for making revisions and printing unlimited copies.

For details on the specific CAD program used, please refer to the PLAN DETAILS section located above the floor plan on each plan page.

CAD + PDF Single Build $2,300
2D electronic editable computer files

CAD + PDF Unlimited Build


This plan package is created in AutoCAD and delivered in .DWG format. CAD files are intended for use by design professionals, structural engineers, and builders to update plans for local building codes or to make revisions based on specific needs, lot requirements, and budget considerations. A complimentary PDF copy is included with this package for reference. CAD packages are delivered within 1 to 2 business days.
 
This package also comes with a multi-use building license, granting permission to construct the home an unlimited number of times, along with a copyright release for making revisions and printing unlimited copies.
 
For details on the specific CAD program used, please refer to the PLAN DETAILS section located above the floor plan on each plan page.

CAD + PDF Unlimited Build $2,850
2D electronic editable computer files
STEP 2 Need To Reverse This Plan?
STEP 3 CHOOSE YOUR FOUNDATION
STEP 4 OPTIONAL ADD-ONS
Subtotal:
$1250
FREE SHIPPING
 
Plan Details
See All Details
Finished Square Footage
1,984 Sq. Ft.
Main Level:
1,984 Sq. Ft.
Total:
Room Details
3
Bedrooms:
2
Full Baths:
General House Information
1
Number of Stories:
80' 0"
Width:
64' 6"
Depth:
Single
Dwelling Number:
None
Bonus Access:
Unfinished Square Footage
1071 Sq. Ft.
Garage:
404 Sq. Ft.
Porch:
179 Sq. Ft.
Front Porch:
225 Sq. Ft.
Rear Porch:
GARAGE
Side
Garage Location:
2
Garage Size:
Exterior Style
Barndominium
Country
Farmhouse
Modern Farmhouse
Ranch
Collections
Affordable
Budget
First Home
Open Floor Plan
Split Bedroom
Foundation
Basement
Crawlspace
Slab
Walkout
Framing Information
Truss
Roof Framing:
2x6
Exterior Wall Framing:
Roof Pitch
6/12
Primary:
5/12
Secondary:
Insulation (R)
19
Exterior Wall:
36
Ceiling:
House And Ceiling Heights
9
First Floor Ceiling:
17' 2"
Maximum House Height:
Key Features
Attached
Butler's Pantry
Covered Front Porch
Covered Rear Porch
Double Vanity Sink
Foyer
Front-entry
Great Room
Kitchen Island
Laundry 1st Fl
Primary Bdrm Main Floor
Mud Room
Open Floor Plan
Rec Room
Split Bedrooms
Suited for corner lot
U-Shaped
Walk-in Closet
Walk-in Pantry

Our Guarantees

  • Only the highest quality plans
  • Int’l Residential Code Compliant
  • Full structural details on all plans
  • Best plan price guarantee
  • Free modification Estimates
  • Builder-ready construction drawings
  • Expert advice from leading designers
  •  PDFs NOW!™ plans in minutes
  • 100% satisfaction guarantee
  • Free Home Building Organizer