20% off ALL House Plans Sitewide
20% off ALL House Plans Sitewide

House Plan: DFD-11867

See All 4 Photos > (photographs may reflect modified homes)
© copyright by designer
SQ FT
3,687
BEDS
3
BATHS
3
STORIES
2
CARS
2
HOUSE PLANS SALE 
START AT  $1,160.00
For questions and help, live chat, email or call us at 877-895-5299
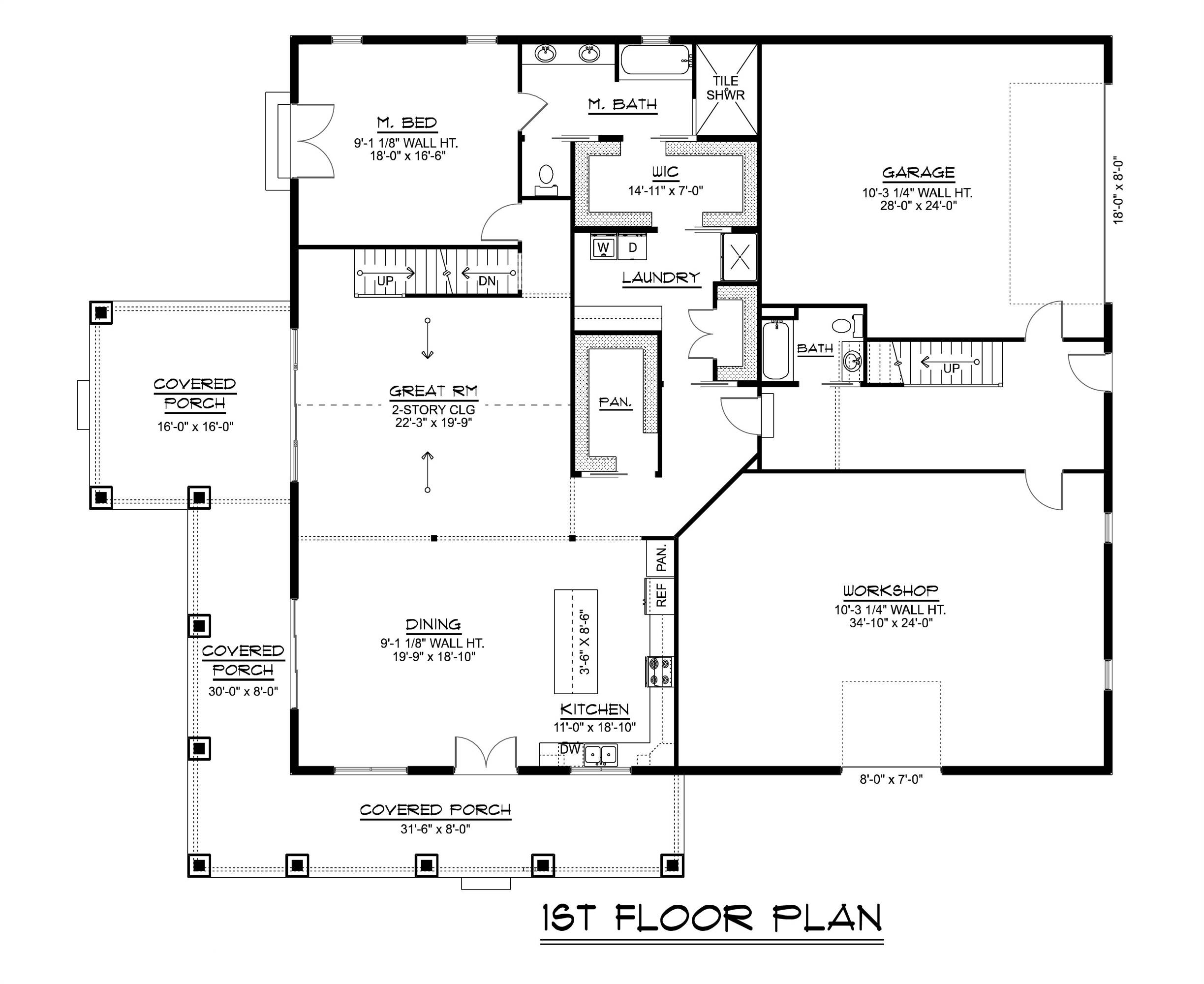
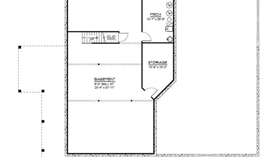
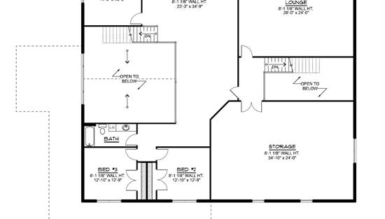
Floor Plans
Click to Zoom In on Floor Plan
 
About House Plan 11867:
With 3,687 square feet of heated living space, this thoughtfully designed home blends open living with flexible spaces across multiple levels. The great room features vaulted ceilings and flows seamlessly into the kitchen and dining areas for easy family connection. The kitchen is designed for both function and style, offering a central island, L-shaped counters, a pantry, and a walk-in pantry. A main-level home office and first-floor laundry add everyday convenience. The primary bedroom on the main floor serves as a private retreat with a walk-in closet and a well-appointed bath featuring a separate tub and shower. Secondary bedrooms are arranged to provide comfort and privacy, while loft and bonus spaces expand the home’s versatility. Outdoor living areas and a wraparound porch finish the design with warm, inviting spaces ideal for relaxing and gathering.
House Plan Pricing
STEP 1 Select Your Package

PDF Single Build


Digital plans emailed to you in PDF format that allows for printing copies and sharing electronically with contractors, subs, decorators, and more. This package includes a license to build the home one time.

PDF Single Build $1,450
Most recommended package

5 Printed Sets + PDF


Includes 5 physical printed blueprint sets, shipped free via UPS within the U.S. Printed sets ship within 1 business day and are delivered within 3 – 5 business days. A complimentary PDF plan set is also emailed within 1 business day for easy sharing and local printing. These plans may be used to construct one home.

5 Printed Sets + PDF $1,800
5 Printed Sets + PDF

PDF Unlimited Build


Digital plans with an unlimited build license emailed in PDF format, that allows for printing copies on a home printer or local print shop and sharing with contractors, subs, decorators and more 

PDF Unlimited Build $2,050
Digital plans including unlimited build license

CAD + PDF Single Build


This plan package is created in AutoCAD and delivered in .DWG format. CAD files are intended for use by design professionals, structural engineers, and builders to update plans for local building codes or to make revisions based on specific needs, lot requirements, and budget considerations. A complimentary PDF copy is included with this package for reference. CAD packages are delivered within 1 to 2 business days.
 
This package also comes with a copyright release for making revisions and printing unlimited copies.

For details on the specific CAD program used, please refer to the PLAN DETAILS section located above the floor plan on each plan page.

CAD + PDF Single Build $2,700
2D electronic editable computer files

CAD + PDF Unlimited Build


This plan package is created in AutoCAD and delivered in .DWG format. CAD files are intended for use by design professionals, structural engineers, and builders to update plans for local building codes or to make revisions based on specific needs, lot requirements, and budget considerations. A complimentary PDF copy is included with this package for reference. CAD packages are delivered within 1 to 2 business days.
 
This package also comes with a multi-use building license, granting permission to construct the home an unlimited number of times, along with a copyright release for making revisions and printing unlimited copies.
 
For details on the specific CAD program used, please refer to the PLAN DETAILS section located above the floor plan on each plan page.

CAD + PDF Unlimited Build $3,250
2D electronic editable computer files
STEP 2 Need To Reverse This Plan?
STEP 3 CHOOSE YOUR FOUNDATION
STEP 4 OPTIONAL ADD-ONS
Subtotal:
$1450
FREE SHIPPING
 
Plan Details
See All Details
Finished Square Footage
2,144 Sq. Ft.
Main Level:
1,543 Sq. Ft.
Upper Level:
2,150 Sq. Ft.
Lower Level:
3,687 Sq. Ft.
Total:
Room Details
3
Bedrooms:
3
Full Baths:
General House Information
2
Number of Stories:
82' 10"
Width:
68' 0"
Depth:
Single
Dwelling Number:
Unfinished Square Footage
1911 Sq. Ft.
Garage:
851 Sq. Ft.
Storage:
821 Sq. Ft.
Porch:
761 Sq. Ft.
Bonus Room:
GARAGE
Side
Garage Location:
2
Garage Size:
Exterior Style
Barndominium
Country
Craftsman
Farmhouse
Modern Farmhouse
Traditional
Collections
Primary Suites
Open Floor Plan
Outdoor Living
Split Bedroom
Foundation
Basement
Crawl Space
Slab
Walkout
Framing Information
2x6
Exterior Wall Framing:
Roof Pitch
4/12
Primary:
8/12
Secondary:
Insulation (R)
19
Exterior Wall:
40
Ceiling:
House And Ceiling Heights
9
First Floor Ceiling:
8
Second Floor Ceiling:
30' 3"
Maximum House Height:
Key Features
Attached
Bonus Room
Covered Front Porch
Dining Room
Double Vanity Sink
Great Room
Home Office
Kitchen Island
Laundry 1st Fl
Loft / Balcony
L-Shaped
Primary Bdrm Main Floor
Nook / Breakfast Area
Open Floor Plan
Outdoor Living Space
Pantry
Separate Tub and Shower
Side-entry
Split Bedrooms
Storage Space
Suited for corner lot
Vaulted Ceilings
Vaulted Great Room/Living
Walk-in Closet
Walk-in Pantry
Workshop
Wraparound Porch

Our Guarantees

  • Only the highest quality plans
  • Int’l Residential Code Compliant
  • Full structural details on all plans
  • Best plan price guarantee
  • Free modification Estimates
  • Builder-ready construction drawings
  • Expert advice from leading designers
  •  PDFs NOW!™ plans in minutes
  • 100% satisfaction guarantee
  • Free Home Building Organizer