House Plan: DFD-11870

See All 12 Photos > (photographs may reflect modified homes)
© copyright by designer
SQ FT
2,108
BEDS
3
BATHS
2.5
STORIES
2
CARS
3
PLANS FROM $1,195
For questions and help, live chat, email or call us at 877-895-5299
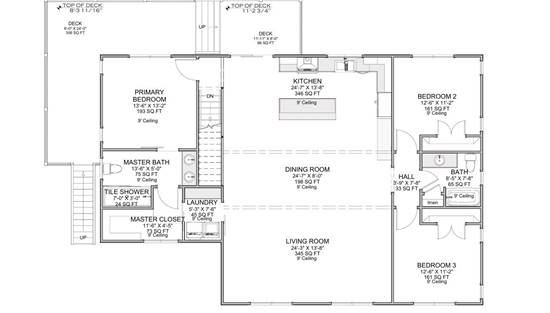
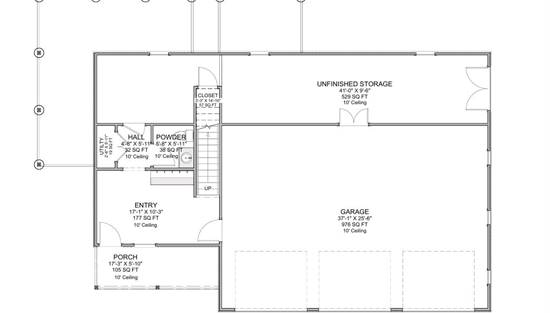
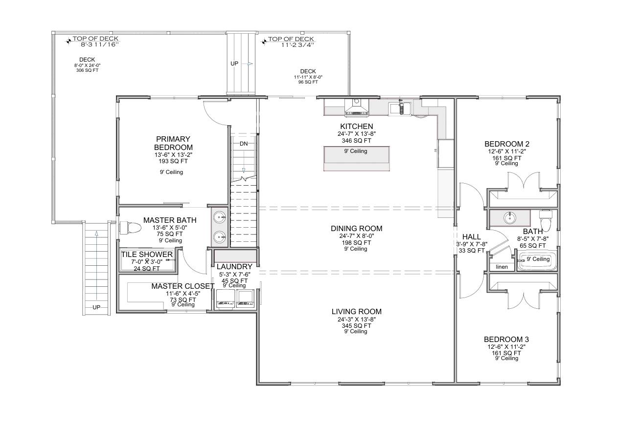
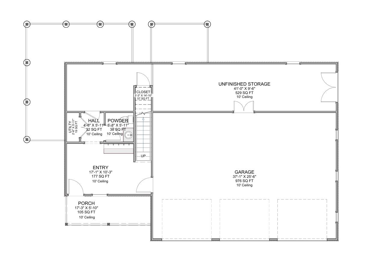
Floor Plans
Click to Zoom In on Floor Plan
 
About House Plan 11870:
This charming 2,108 square feet plan offers modern family living with open spaces, flexible design, and a bright, airy feel. The L-shaped kitchen stands at the center with a spacious island and a peninsula bar ideal for casual dining or entertaining. Upstairs, the primary bedroom includes a large walk-in closet and a stylish bath with a double vanity, creating a peaceful escape from the day. Two additional bedrooms share the upper level, alongside a conveniently located laundry room. The home’s open dining and living areas extend to a front porch and rear deck, inviting connection with the outdoors. With a front-entry, attached garage and unfinished space for future customization, this design delivers a perfect blend of charm, efficiency, and everyday livability.
House Plan Pricing
STEP 1 Select Your Package

PDF Single Build


Digital plans emailed to you in PDF format that allows for printing copies and sharing electronically with contractors, subs, decorators, and more. This package includes a license to build the home one time.

PDF Single Build $1,195
Most recommended package

PDF Unlimited Build


Digital plans with an unlimited build license emailed in PDF format, that allows for printing copies on a home printer or local print shop and sharing with contractors, subs, decorators and more 

PDF Unlimited Build $1,695
Digital plans including unlimited build license

CAD + PDF Unlimited Build


This plan package is created in AutoCAD and delivered in .DWG format. CAD files are intended for use by design professionals, structural engineers, and builders to update plans for local building codes or to make revisions based on specific needs, lot requirements, and budget considerations. A complimentary PDF copy is included with this package for reference. CAD packages are delivered within 1 to 2 business days.
 
This package also comes with a multi-use building license, granting permission to construct the home an unlimited number of times, along with a copyright release for making revisions and printing unlimited copies.
 
For details on the specific CAD program used, please refer to the PLAN DETAILS section located above the floor plan on each plan page.

CAD + PDF Unlimited Build $2,195
2D electronic editable computer files
STEP 2 Need To Reverse This Plan?
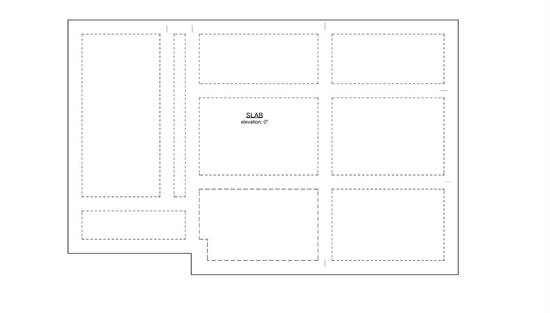
STEP 3 CHOOSE YOUR FOUNDATION
STEP 4 OPTIONAL ADD-ONS
Subtotal:
$1195
FREE SHIPPING
 
Plan Details
See All Details
Finished Square Footage
324 Sq. Ft.
Main Level:
1,784 Sq. Ft.
Upper Level:
2,108 Sq. Ft.
Total:
Room Details
3
Bedrooms:
2
Full Baths:
1
Half Baths:
General House Information
2
Number of Stories:
63' 2"
Width:
44' 0"
Depth:
Single
Dwelling Number:
Unfinished Square Footage
976 Sq. Ft.
Garage:
105 Sq. Ft.
Porch:
402 Sq. Ft.
Deck:
GARAGE
Front
Garage Location:
3
Garage Size:
Exterior Style
Country
Farmhouse
Modern Farmhouse
Traditional
Collections
First Home
Open Floor Plan
Split Bedroom
Foundation
Basement
Crawl Space
Daylight Basement
Monolithic Slab
Slab
Stem Wall Slab
Walkout Basement
Framing Information
Stick
Roof Framing:
2x4
Exterior Wall Framing:
Roof Pitch
8/12
Primary:
4/12
Secondary:
Insulation (R)
House And Ceiling Heights
10
First Floor Ceiling:
9
Second Floor Ceiling:
33' 6"
Maximum House Height:
Key Features
Attached
Deck
Dining Room
Double Vanity Sink
Front Porch
Front-entry
Kitchen Island
Laundry 2nd Fl
L-Shaped
Primary Bdrm Upstairs
Open Floor Plan
Peninsula / Eating Bar
Split Bedrooms
Storage Space
Suited for corner lot
Unfinished Space
Walk-in Closet

Our Guarantees

  • Only the highest quality plans
  • Int’l Residential Code Compliant
  • Full structural details on all plans
  • Best plan price guarantee
  • Free modification Estimates
  • Builder-ready construction drawings
  • Expert advice from leading designers
  •  PDFs NOW!™ plans in minutes
  • 100% satisfaction guarantee
  • Free Home Building Organizer