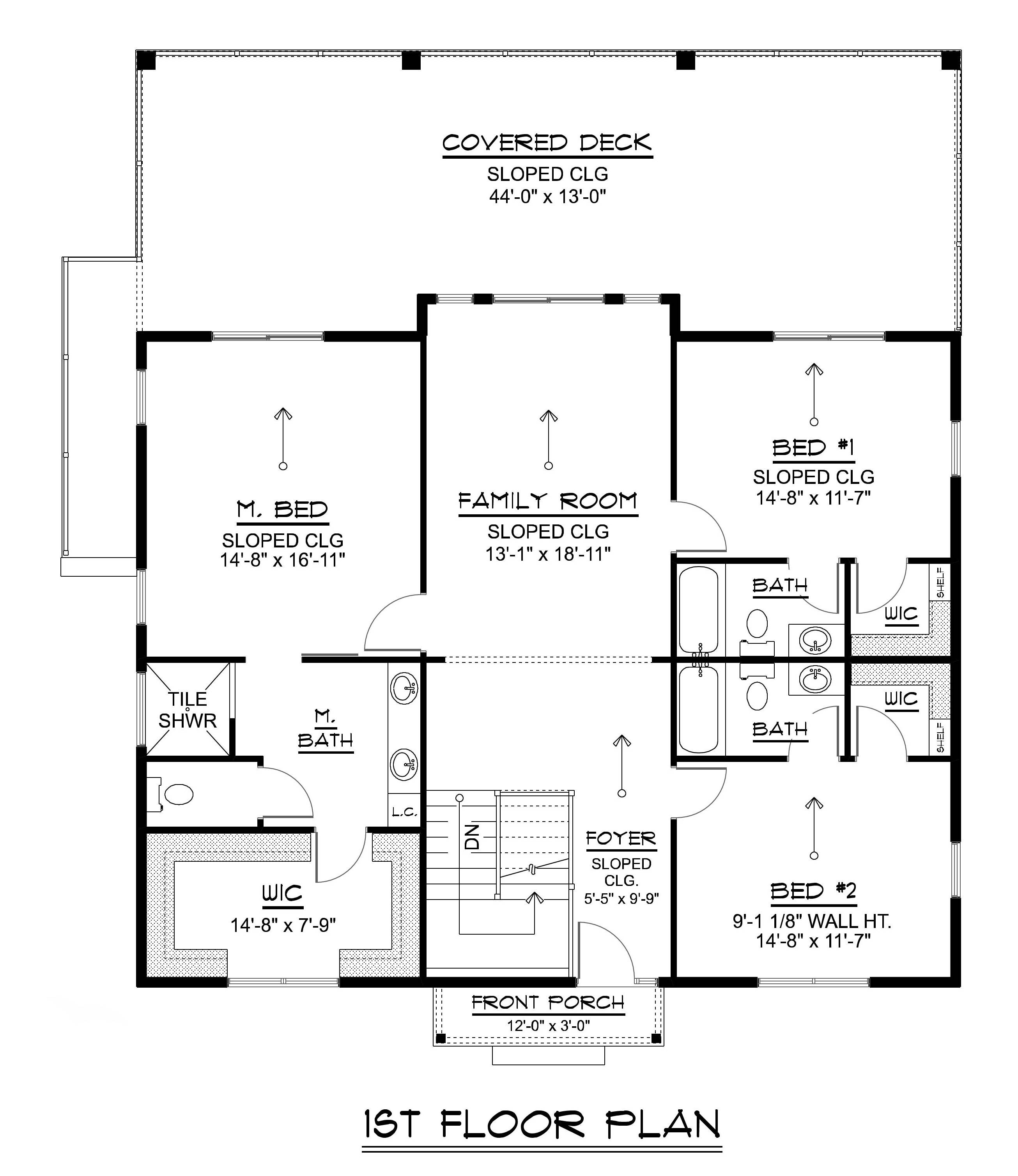
With 3,136 square feet of heated living space, this home delivers a unique inverted living design that maximizes comfort and functionality across its levels. The great room anchors the open floor plan and flows naturally into the kitchen and dining areas. The kitchen is designed with an island, L-shaped counters, and a breakfast nook that make everyday meals and gatherings easy. The primary bedroom on the main floor offers a peaceful retreat with a sitting area, walk-in closet, and private bath. Additional living space includes a family room and private guest and in-law suites that enhance flexibility throughout the home. Ample storage supports day-to-day organization without sacrificing living space. Outdoor living is highlighted by covered porches and an expansive deck, creating inviting areas to enjoy time outside.
With 3,136 square feet of heated living space, this home delivers a unique inverted living design that maximizes comfort and functionality across its levels. The great room anchors the open floor plan and flows naturally into the kitchen and dining areas. The kitchen is designed with an island, L-shaped counters, and a breakfast nook that make everyday meals and gatherings easy. The primary bedroom on the main floor offers a peaceful retreat with a sitting area, walk-in closet, and private bath. Additional living space includes a family room and private guest and in-law suites that enhance flexibility throughout the home. Ample storage supports day-to-day organization without sacrificing living space. Outdoor living is highlighted by covered porches and an expansive deck, creating inviting areas to enjoy time outside.