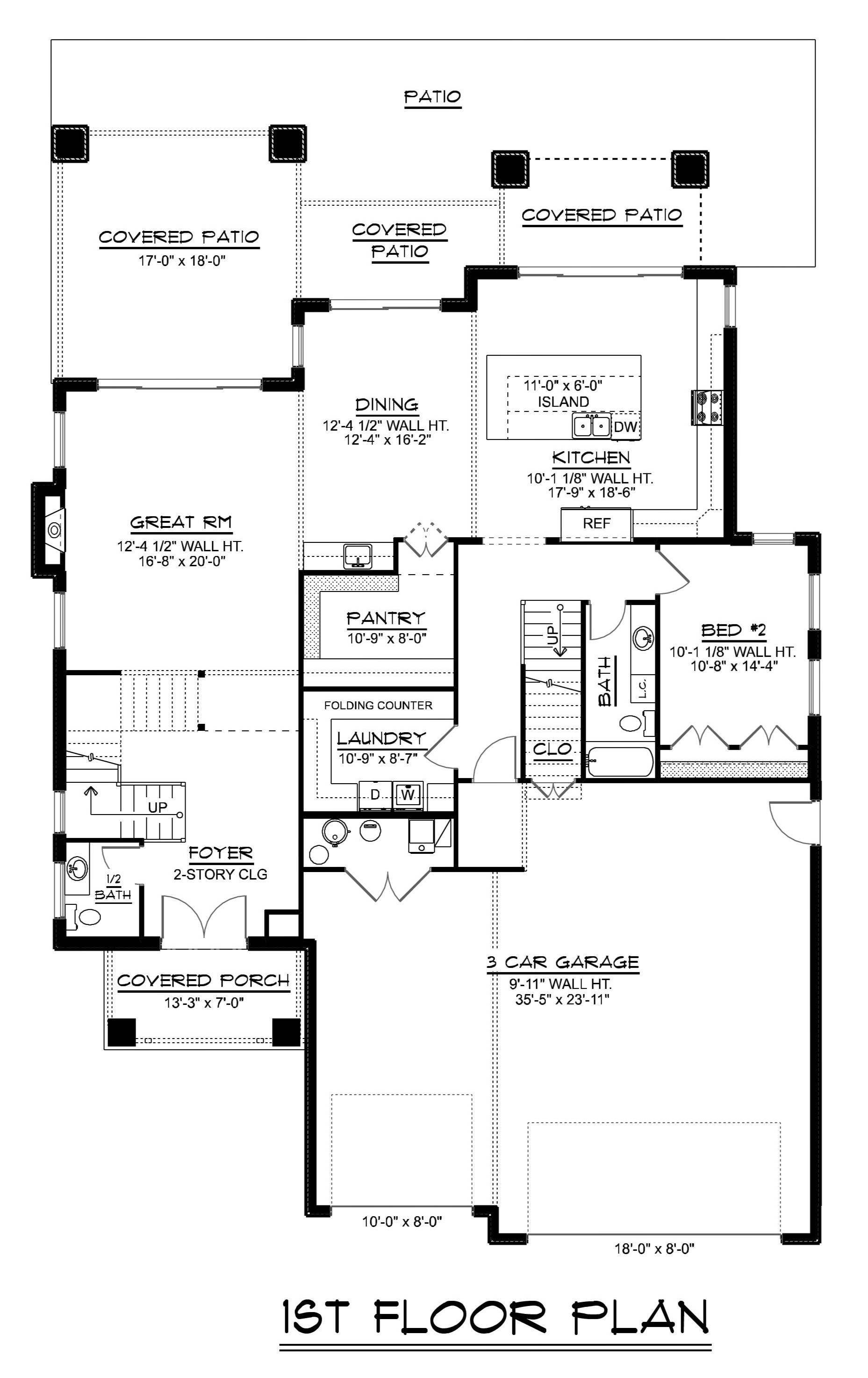
With 4,370 square feet of heated living space, this two-story home delivers generous room sizes and a layout built for both daily life and hosting. The great room rises to a two-story volume with vaulted ceilings and a fireplace that creates a striking centerpiece. The kitchen is designed for efficiency and connection, offering a large island, L-shaped counters, walk-in pantry, and a casual breakfast area. The main level includes a dining room, media or library space, and first-floor laundry that support organized living. The primary bedroom is located upstairs and features a sitting area, walk-in closet, and a well-appointed bath with a separate tub and shower. Additional bedrooms are arranged to provide comfort and privacy throughout the upper level. Outdoor living is enhanced with covered porches and a deck that invite time spent relaxing or gathering outdoors.