20% off ALL House Plans Sitewide
20% off ALL House Plans Sitewide

House Plan: DFD-11881

See All 15 Photos > (photographs may reflect modified homes)
© copyright by designer
SQ FT
1,655
BEDS
3
BATHS
2
STORIES
1
CARS
3
HOUSE PLANS SALE 
START AT  $916.00
For questions and help, live chat, email or call us at 877-895-5299
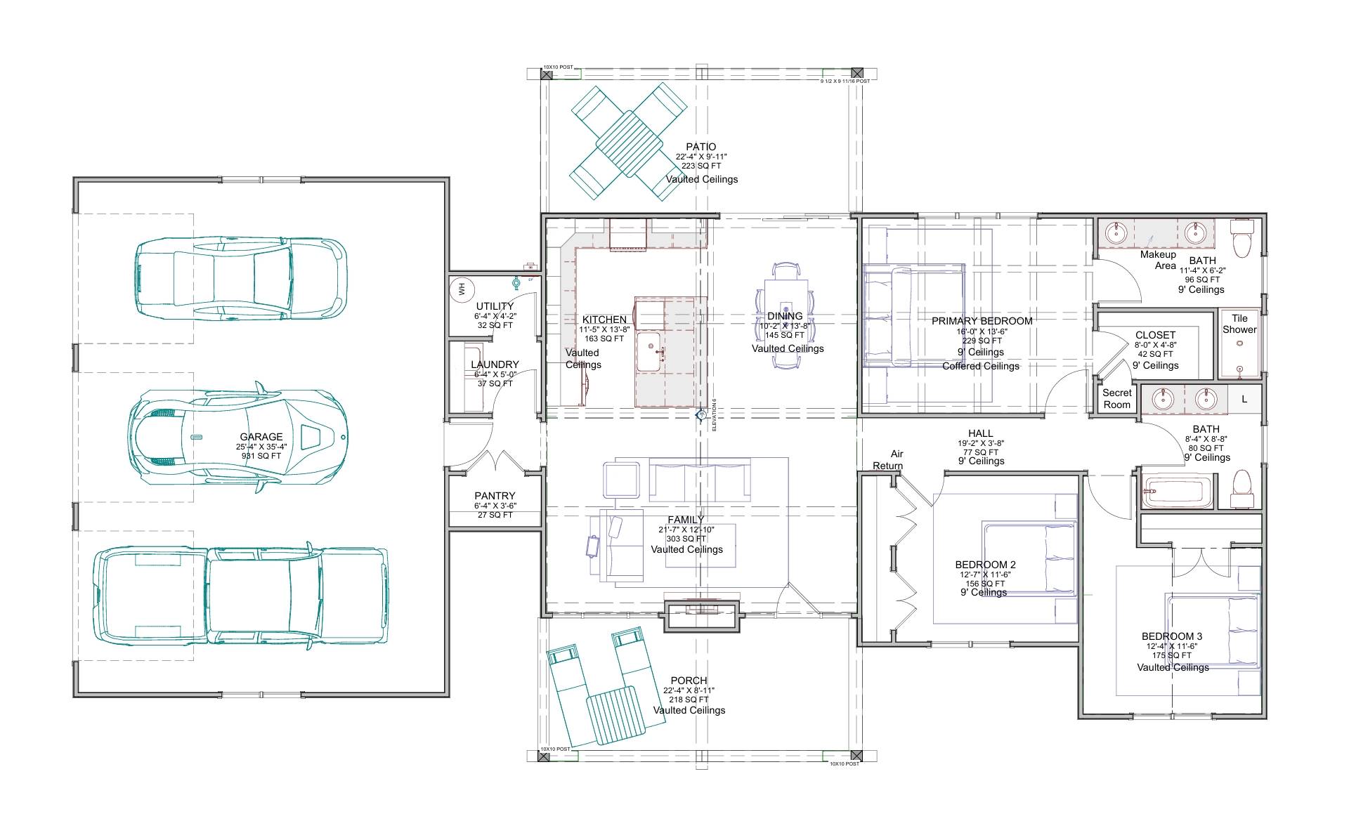
Floor Plans
Click to Zoom In on Floor Plan
 
About House Plan 11881:
This charming 1,655 square feet plan blends relaxed living with elegant architectural touches. The vaulted great room and kitchen form the heart of the home, featuring an island, eating bar, and butler’s pantry that make meal prep and entertaining effortless. The open floor plan flows naturally to the dining area and covered rear porch, ideal for hosting family dinners or enjoying peaceful mornings. The main-floor primary suite offers privacy and comfort, complete with a walk-in closet and double vanity bath. Two additional bedrooms share a convenient full bath, making this design as functional as it is beautiful. A mud room and first-floor laundry add thoughtful convenience, while the side-entry garage enhances the home’s graceful curb presence. With its bright, open spaces and timeless design, this home provides everything needed for easy, comfortable living with a touch of sophistication.
House Plan Pricing
STEP 1 Select Your Package

PDF Single Build


Digital plans emailed to you in PDF format that allows for printing copies and sharing electronically with contractors, subs, decorators, and more. This package includes a license to build the home one time.

PDF Single Build $1,145
Most recommended package

PDF Unlimited Build


Digital plans with an unlimited build license emailed in PDF format, that allows for printing copies on a home printer or local print shop and sharing with contractors, subs, decorators and more 

PDF Unlimited Build $1,645
Digital plans including unlimited build license

CAD + PDF Unlimited Build


CAD files are a complete set of construction drawings delivered electronically. They can be used for any type of modification—including major design changes and engineering—and include a release granting permission to modify the plan. Most CAD plan orders are emailed the same or next business day.
 
This package also comes with a PDF set of plans and a multi-use building license, granting permission to construct the home an unlimited number of times, along with a copyright release for making modifications and printing unlimited copies.
 
CAD files are provided in .dwg format. For details on the specific CAD program used, please refer to the PLAN DETAILS section located above the floor plan on each plan’s page.

CAD + PDF Unlimited Build $2,145
2D electronic editable computer files
STEP 2 Need To Reverse This Plan?
STEP 3 CHOOSE YOUR FOUNDATION
STEP 4 OPTIONAL ADD-ONS
Subtotal:
$1145
FREE SHIPPING
 
Plan Details
See All Details
Finished Square Footage
1,655 Sq. Ft.
Main Level:
1,655 Sq. Ft.
Total:
Room Details
3
Bedrooms:
2
Full Baths:
General House Information
1
Number of Stories:
82' 8"
Width:
47' 10"
Depth:
Single
Dwelling Number:
Unfinished Square Footage
931 Sq. Ft.
Garage:
218 Sq. Ft.
Porch:
223 Sq. Ft.
Deck:
GARAGE
Side
Garage Location:
3
Garage Size:
Exterior Style
Contemporary
Country
Craftsman
Ranch
Collections
Mountain
Open Floor Plan
Outdoor Living
Foundation
Basement
Crawl Space
Daylight Basement
Monolithic Slab
Slab
Stem Wall Slab
Walkout Basement
Framing Information
Stick
Roof Framing:
2x4
Exterior Wall Framing:
Roof Pitch
8/12
Primary:
12/12
Secondary:
Insulation (R)
House And Ceiling Heights
9
First Floor Ceiling:
21' 6"
Maximum House Height:
Key Features
Attached
Covered Front Porch
Covered Rear Porch
Dining Room
Double Vanity Sink
Family Room
Family Style
Fireplace
Kitchen Island
Laundry 1st Fl
L-Shaped
Primary Bdrm Main Floor
Mud Room
Open Floor Plan
Outdoor Living Space
Peninsula / Eating Bar
Side-entry
Suited for corner lot
Vaulted Great Room/Living
Vaulted Kitchen
Walk-in Closet
Walk-in Pantry

Our Guarantees

  • Only the highest quality plans
  • Int’l Residential Code Compliant
  • Full structural details on all plans
  • Best plan price guarantee
  • Free modification Estimates
  • Builder-ready construction drawings
  • Expert advice from leading designers
  •  PDFs NOW!™ plans in minutes
  • 100% satisfaction guarantee
  • Free Home Building Organizer