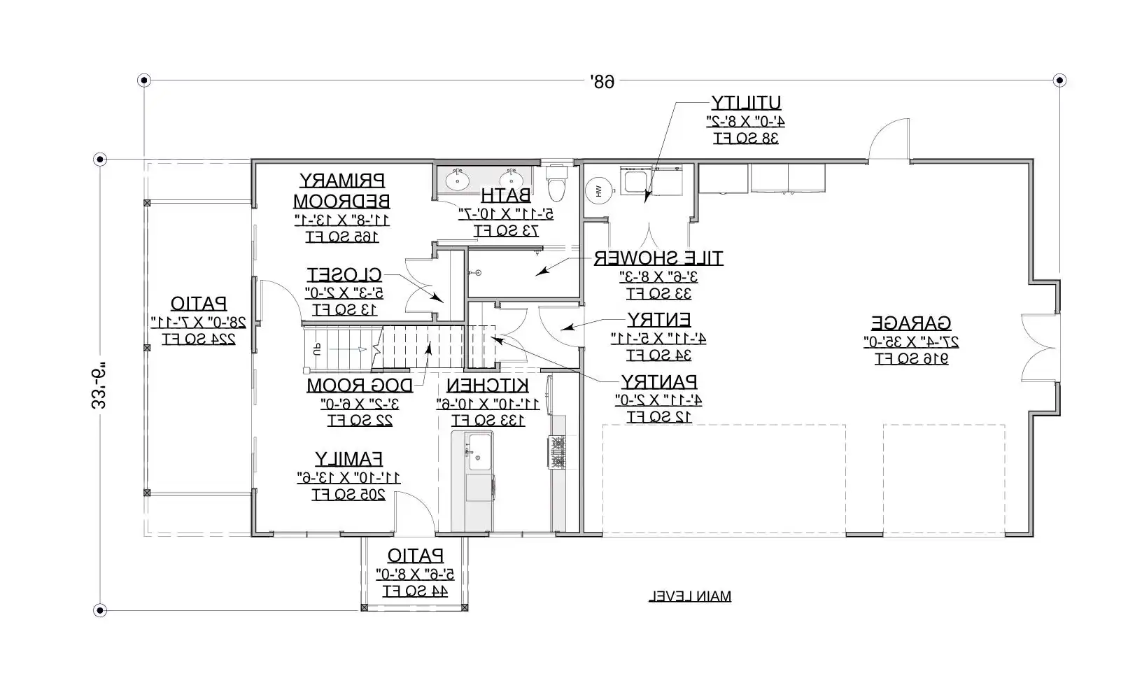
This charming 1,499 square feet plan is thoughtfully designed for family living and modern convenience. The open kitchen includes a spacious peninsula for casual dining, a walk-in pantry, and seamless flow to the adjoining family room. The primary suite on the main floor provides privacy and comfort with a large walk-in closet and double vanity bath. Upstairs, two additional bedrooms and a full bath offer flexible space for guests or kids. Everyday functionality shines with a first-floor laundry and mud room to help keep things tidy. Blending warmth, efficiency, and livability, this inviting home is perfect for families looking to enjoy open, connected spaces and lasting comfort.
This charming 1,499 square feet plan is thoughtfully designed for family living and modern convenience. The open kitchen includes a spacious peninsula for casual dining, a walk-in pantry, and seamless flow to the adjoining family room. The primary suite on the main floor provides privacy and comfort with a large walk-in closet and double vanity bath. Upstairs, two additional bedrooms and a full bath offer flexible space for guests or kids. Everyday functionality shines with a first-floor laundry and mud room to help keep things tidy. Blending warmth, efficiency, and livability, this inviting home is perfect for families looking to enjoy open, connected spaces and lasting comfort.