15% off ALL House Plans Sitewide
15% off ALL House Plans Sitewide

House Plan: DFD-11905

See All 11 Photos > (photographs may reflect modified homes)
© copyright by designer
SQ FT
3,054
BEDS
3
BATHS
3.5
STORIES
2
CARS
2
HOUSE PLANS SALE 
START AT  $1,058.25
For questions and help, live chat, email or call us at 877-895-5299
Floor Plans
Click to Zoom In on Floor Plan
 
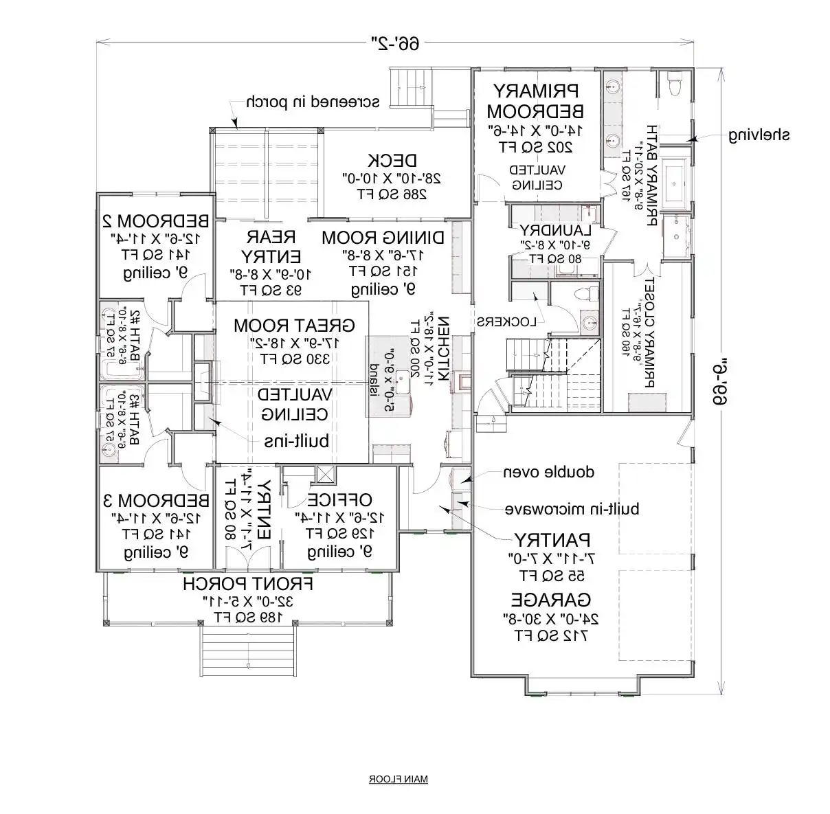
About House Plan 11905:
This charming 2,502 square feet plan is perfect for families seeking open, flexible spaces and vaulted ceilings. The kitchen features a large island, peninsula, and butler’s pantry, making meal prep and entertaining effortless. The vaulted great room and open layout allow natural light to fill the main living areas, while the dining room and bonus spaces add versatility. The main floor primary suite includes a walk-in closet, double vanity, and separate tub and shower for a luxurious daily experience. Additional bedrooms and a home office provide room for everyone’s needs. Outdoor spaces include a covered front porch, rear deck, and a screened porch/sunroom, extending living areas outdoors. With its functional design and thoughtful details, this home offers comfort, style, and convenience for modern living.
House Plan Pricing
STEP 1 Select Your Package

PDF Single Build


Digital plans emailed to you in PDF format that allows for printing copies and sharing electronically with contractors, subs, decorators, and more. This package includes a license to build the home one time.

PDF Single Build $1,245
Most recommended package

PDF Unlimited Build


Digital plans with an unlimited build license emailed in PDF format, that allows for printing copies on a home printer or local print shop and sharing with contractors, subs, decorators and more 

PDF Unlimited Build $1,745
Digital plans including unlimited build license

CAD + PDF Unlimited Build


This plan package is created in AutoCAD and delivered in .DWG format. CAD files are intended for use by design professionals, structural engineers, and builders to update plans for local building codes or to make revisions based on specific needs, lot requirements, and budget considerations. A complimentary PDF copy is included with this package for reference. CAD packages are delivered within 1 to 2 business days.
 
This package also comes with a multi-use building license, granting permission to construct the home an unlimited number of times, along with a copyright release for making revisions and printing unlimited copies.
 
For details on the specific CAD program used, please refer to the PLAN DETAILS section located above the floor plan on each plan page.

CAD + PDF Unlimited Build $2,245
2D electronic editable computer files
STEP 2 Need To Reverse This Plan?
STEP 3 CHOOSE YOUR FOUNDATION
STEP 4 OPTIONAL ADD-ONS
Subtotal:
$1245
FREE SHIPPING
 
Plan Details
See All Details
Finished Square Footage
2,502 Sq. Ft.
Main Level:
543 Sq. Ft.
Upper Level:
2,581 Sq. Ft.
Lower Level:
3,054 Sq. Ft.
Total:
Room Details
3
Bedrooms:
3
Full Baths:
1
Half Baths:
General House Information
2
Number of Stories:
66' 2"
Width:
69' 6"
Depth:
Single
Dwelling Number:
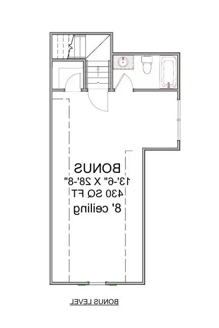
2nd Floor
Bonus Access:
Unfinished Square Footage
737 Sq. Ft.
Garage:
192 Sq. Ft.
Porch:
290 Sq. Ft.
Deck:
GARAGE
Front
Garage Location:
2
Garage Size:
Exterior Style
Country
Craftsman
Farmhouse
Modern Farmhouse
Collections
Open Floor Plan
Split Bedroom
Foundation
Basement
Crawl Space
Daylight Basement
Monolithic Slab
Slab
Stem Wall Slab
Walkout Basement
Framing Information
Stick
Roof Framing:
2x4
Exterior Wall Framing:
Roof Pitch
9/12
Primary:
14/12
Secondary:
Insulation (R)
House And Ceiling Heights
9
First Floor Ceiling:
8
Second Floor Ceiling:
26' 8"
Maximum House Height:
Key Features
Attached
Bonus Room
Butler's Pantry
Covered Front Porch
Deck
Dining Room
Double Vanity Sink
Fireplace
Great Room
Home Office
Kitchen Island
Laundry 1st Fl
L-Shaped
Primary Bdrm Main Floor
Mud Room
Open Floor Plan
Peninsula / Eating Bar
Screened Porch/Sunroom
Separate Tub and Shower
Side-entry
Split Bedrooms
Suited for corner lot
Vaulted Great Room/Living
Walk-in Closet

Our Guarantees

  • Only the highest quality plans
  • Int’l Residential Code Compliant
  • Full structural details on all plans
  • Best plan price guarantee
  • Free modification Estimates
  • Builder-ready construction drawings
  • Expert advice from leading designers
  •  PDFs NOW!™ plans in minutes
  • 100% satisfaction guarantee
  • Free Home Building Organizer