15% off ALL House Plans Sitewide
15% off ALL House Plans Sitewide

House Plan: DFD-11906

See All 12 Photos > (photographs may reflect modified homes)
© copyright by designer
SQ FT
3,076
BEDS
4
BATHS
3.5
STORIES
2
CARS
0
HOUSE PLANS SALE 
START AT  $1,058.25
For questions and help, live chat, email or call us at 877-895-5299
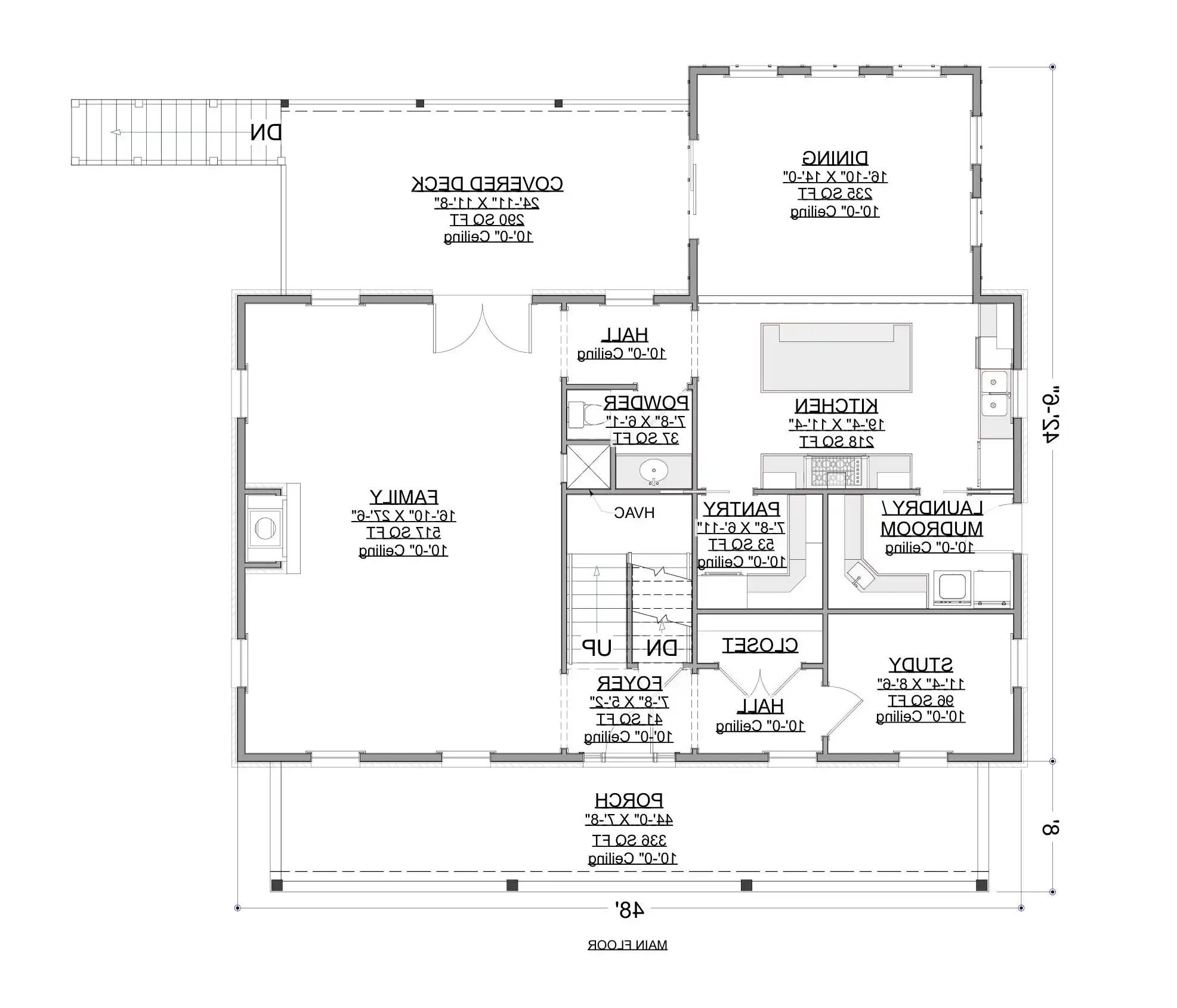
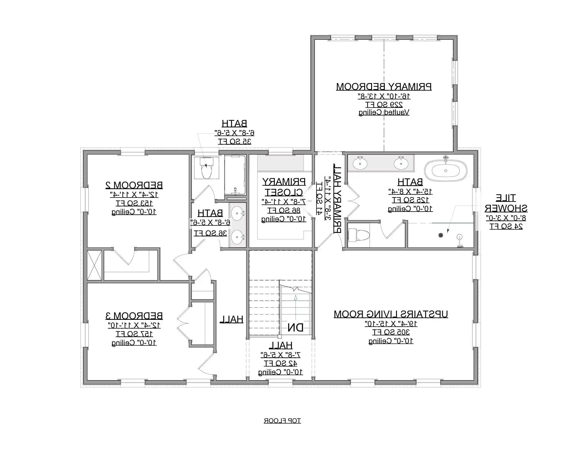
Floor Plans
Click to Zoom In on Floor Plan
 
About House Plan 11906:
This charming 3,076 square feet plan is designed for families who enjoy comfort, flexibility, and thoughtfully arranged spaces. The kitchen includes a butler’s pantry, island, and peninsula eating bar, making it perfect for meal prep and casual gatherings. A comfortable family room with a fireplace anchors the main level, with a dining room and foyer adding a sense of openness and flow. Upstairs, the vaulted primary suite offers a serene retreat with its walk-in closet and separate tub and shower. The additional bedrooms, library/media room, and lower-level rec room give everyone space to spread out. Covered porches and a generous deck extend the living area outdoors for year-round enjoyment. This plan brings together everyday convenience and warm livability in a way that feels naturally welcoming.
House Plan Pricing
STEP 1 Select Your Package

PDF Single Build


Digital plans emailed to you in PDF format that allows for printing copies and sharing electronically with contractors, subs, decorators, and more. This package includes a license to build the home one time.

PDF Single Build $1,245
Most recommended package

PDF Unlimited Build


Digital plans with an unlimited build license emailed in PDF format, that allows for printing copies on a home printer or local print shop and sharing with contractors, subs, decorators and more 

PDF Unlimited Build $1,745
Digital plans including unlimited build license

CAD + PDF Unlimited Build


This plan package is created in AutoCAD and delivered in .DWG format. CAD files are intended for use by design professionals, structural engineers, and builders to update plans for local building codes or to make revisions based on specific needs, lot requirements, and budget considerations. A complimentary PDF copy is included with this package for reference. CAD packages are delivered within 1 to 2 business days.
 
This package also comes with a multi-use building license, granting permission to construct the home an unlimited number of times, along with a copyright release for making revisions and printing unlimited copies.
 
For details on the specific CAD program used, please refer to the PLAN DETAILS section located above the floor plan on each plan page.

CAD + PDF Unlimited Build $2,245
2D electronic editable computer files
STEP 2 Need To Reverse This Plan?
STEP 3 CHOOSE YOUR FOUNDATION
STEP 4 OPTIONAL ADD-ONS
Subtotal:
$1245
FREE SHIPPING
 
Plan Details
See All Details
Finished Square Footage
1,538 Sq. Ft.
Main Level:
1,538 Sq. Ft.
Upper Level:
1,613 Sq. Ft.
Lower Level:
3,076 Sq. Ft.
Total:
Room Details
4
Bedrooms:
3
Full Baths:
1
Half Baths:
General House Information
2
Number of Stories:
48' 0"
Width:
42' 6"
Depth:
Single
Dwelling Number:
Unfinished Square Footage
336 Sq. Ft.
Porch:
290 Sq. Ft.
Deck:
GARAGE
0
Garage Size:
Exterior Style
Colonial
Country
Traditional
Collections
Kitchens
Outdoor Living
Foundation
Basement
Crawl Space
Daylight Basement
Monolithic Slab
Slab
Stem Wall Slab
Walkout Basement
Framing Information
Stick
Roof Framing:
2x4
Exterior Wall Framing:
Roof Pitch
10/12
Primary:
2/12
Secondary:
Insulation (R)
House And Ceiling Heights
10
First Floor Ceiling:
10
Second Floor Ceiling:
32' 5"
Maximum House Height:
Key Features
Butler's Pantry
Covered Front Porch
Covered Rear Porch
Deck
Dining Room
Double Vanity Sink
Family Room
Family Style
Fireplace
Foyer
Kitchen Island
Laundry 1st Fl
Library/Media Rm
L-Shaped
Primary Bdrm Upstairs
Mud Room
Peninsula / Eating Bar
Rec Room
Separate Tub and Shower
Suited for corner lot
Vaulted Primary
Walk-in Closet

Our Guarantees

  • Only the highest quality plans
  • Int’l Residential Code Compliant
  • Full structural details on all plans
  • Best plan price guarantee
  • Free modification Estimates
  • Builder-ready construction drawings
  • Expert advice from leading designers
  •  PDFs NOW!™ plans in minutes
  • 100% satisfaction guarantee
  • Free Home Building Organizer