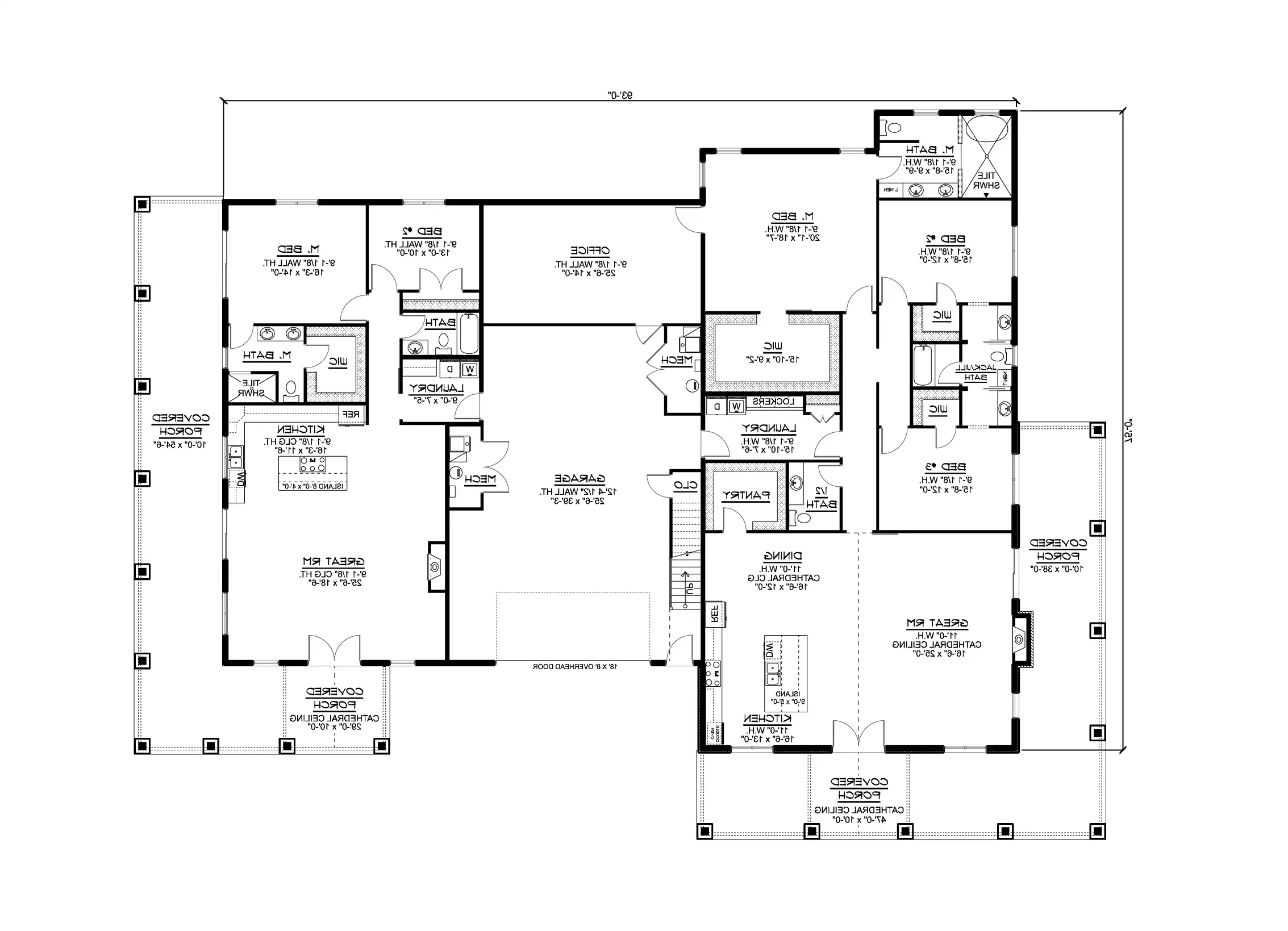
House Plan 11914 delivers a bold barndominium layout designed for flexibility, privacy, and real-world functionality. At the heart of the plan sits a large central garage, acting as a connector between two distinct living zones rather than a shared living room. One side of the home features a spacious open-concept great room with cathedral ceilings, a large kitchen with island and pantry, and nearby dining space—perfect for gatherings and everyday living. The opposite wing functions as a self-contained living area with its own kitchen, great room, bedroom, and bathroom, making it ideal for extended family, guests, or rental potential. Multiple primary suites, a dedicated home office, mudroom, and ample storage add to the home’s versatility. With generous covered porches and outdoor living areas, this design offers a modern, flexible solution for multi-family or multi-generational households.