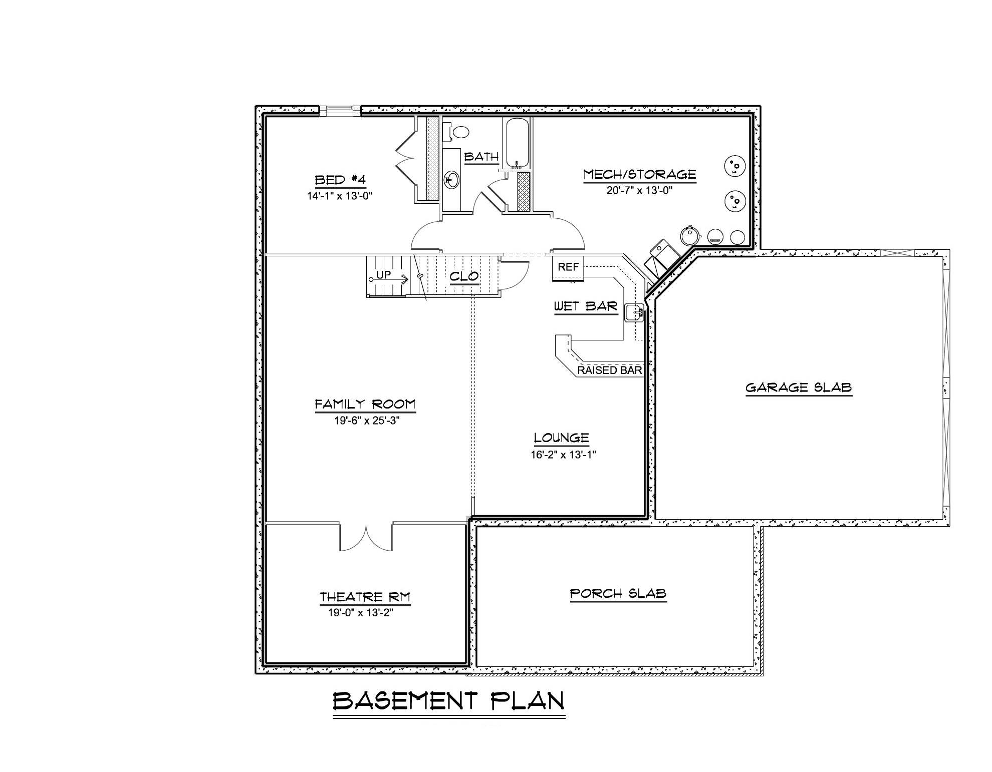
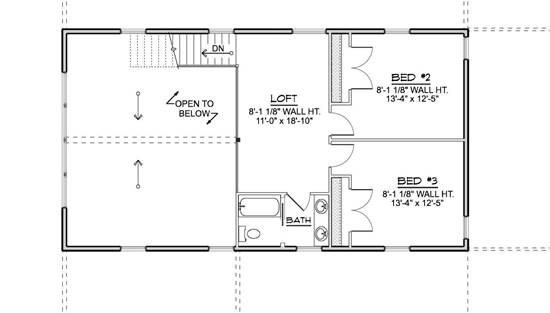
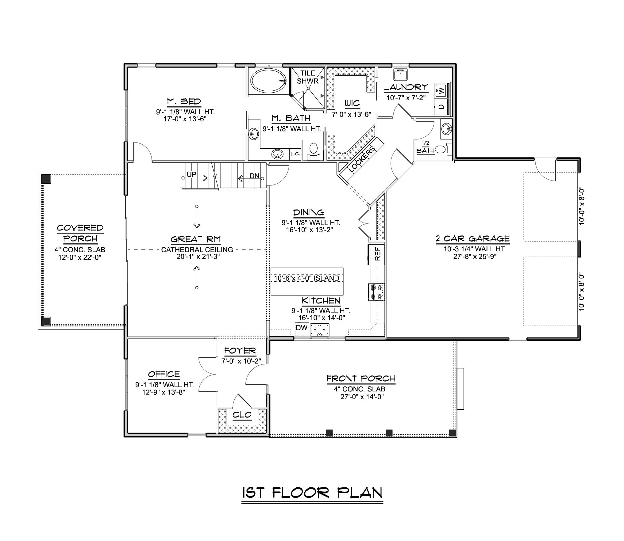
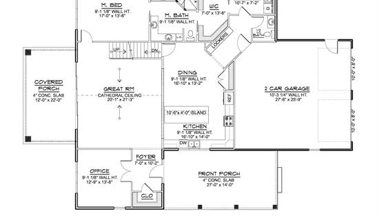
With 2,684 square feet of heated space, this inviting home balances open living with private retreats across 3 bedrooms and 2.5 baths. The kitchen anchors the main level with an island, pantry, and breakfast nook that opens naturally to the great room, creating an ideal space for gathering and entertaining. The primary bedroom is conveniently located on the main floor and features a walk-in closet and a spacious bath with a separate tub and shower. Multiple living areas, including a family room, loft or balcony, and a dedicated media or library room, provide room for both work and relaxation. Everyday functionality is enhanced by a mud room, first-floor laundry, and ample storage throughout the home. A side-entry attached garage complements the overall layout while preserving the home’s welcoming presence. Thoughtfully planned and full of flexible spaces, this design is well suited for modern living with room to grow and adapt.