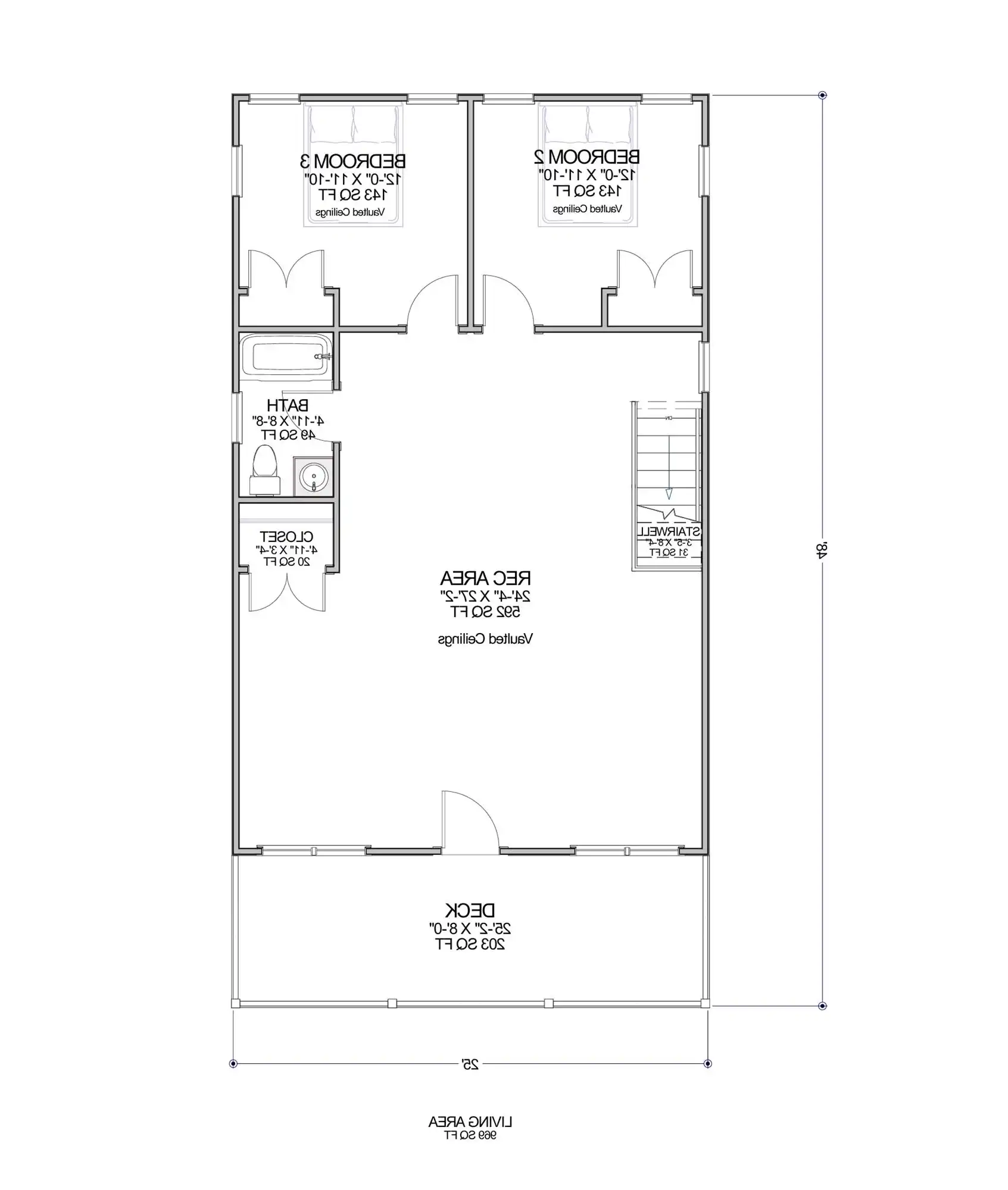
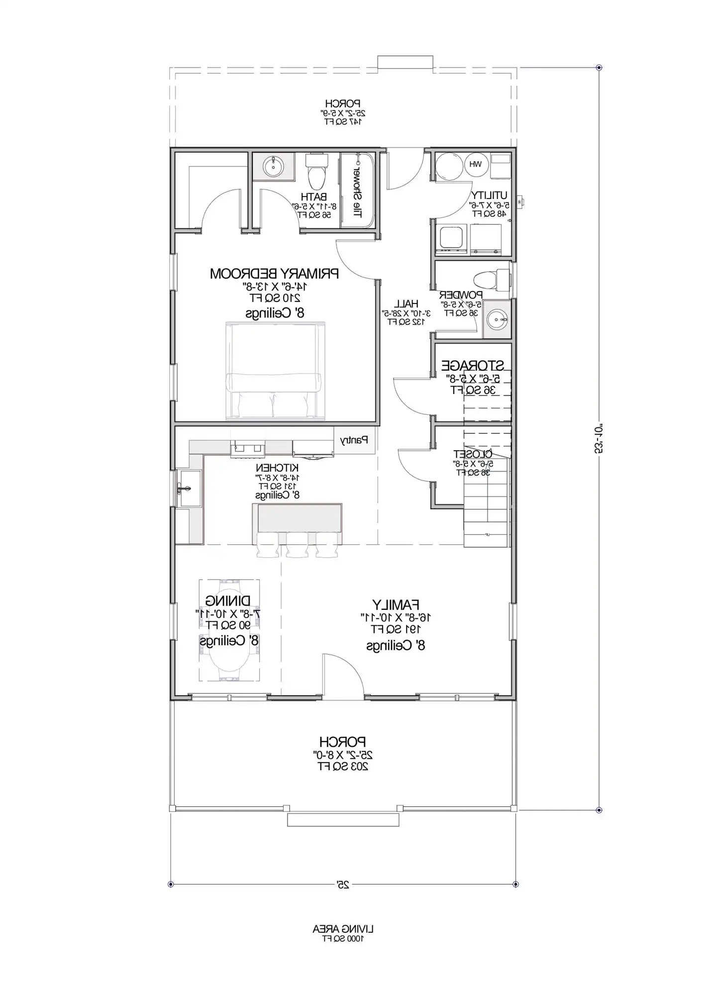
This charming 1,969 square feet plan blends open family living with a practical arrangement ideal for everyday comfort. The L-shaped kitchen offers an island and peninsula with an eating bar, making it easy to prepare meals while staying connected to the dining and family rooms. The main-floor primary bedroom features a generous walk-in closet and a convenient layout that supports privacy. Two upstairs bedrooms enhance the home’s flexibility, while the rec room and multiple storage spaces add even more functionality. A first-floor laundry room keeps routines simple and efficient. With a welcoming covered front porch and a relaxing rear porch, this home offers warm, inviting spaces both inside and out, creating a place where comfortable living comes naturally.
This charming 1,969 square feet plan blends open family living with a practical arrangement ideal for everyday comfort. The L-shaped kitchen offers an island and peninsula with an eating bar, making it easy to prepare meals while staying connected to the dining and family rooms. The main-floor primary bedroom features a generous walk-in closet and a convenient layout that supports privacy. Two upstairs bedrooms enhance the home’s flexibility, while the rec room and multiple storage spaces add even more functionality. A first-floor laundry room keeps routines simple and efficient. With a welcoming covered front porch and a relaxing rear porch, this home offers warm, inviting spaces both inside and out, creating a place where comfortable living comes naturally.