15% off ALL House Plans Sitewide
15% off ALL House Plans Sitewide

House Plan: DFD-11924

See All 14 Photos > (photographs may reflect modified homes)
© copyright by designer
SQ FT
2,245
BEDS
3
BATHS
2.5
STORIES
3
CARS
0
HOUSE PLANS SALE 
START AT  $1,015.75
For questions and help, live chat, email or call us at 877-895-5299
Floor Plans
Click to Zoom In on Floor Plan
 
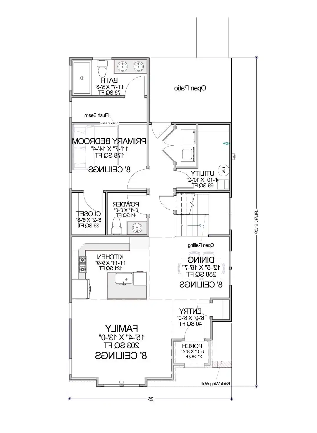
About House Plan 11924:
With 2,245 square feet of heated living space, this home is designed for families who value comfort and functionality. Its open layout begins with a kitchen that features an island, walk-in pantry, and eating bar, creating a natural hub for daily routines. The main-floor primary suite offers ease and privacy with a spacious walk-in closet and double-vanity bathroom. A generous family room and dining area make entertaining effortless, while the covered porch adds inviting outdoor living. Upstairs, two well-placed bedrooms share access to a loft and rec room, ideal for work, play, or guest flexibility. Vaulted ceilings and carefully planned storage contribute to a spacious and efficient feel throughout. This thoughtfully designed home provides a warm, welcoming atmosphere perfect for comfortable family living.
House Plan Pricing
STEP 1 Select Your Package

PDF Single Build


Digital plans emailed to you in PDF format that allows for printing copies and sharing electronically with contractors, subs, decorators, and more. This package includes a license to build the home one time.

PDF Single Build $1,195
Most recommended package

PDF Unlimited Build


Digital plans with an unlimited build license emailed in PDF format, that allows for printing copies on a home printer or local print shop and sharing with contractors, subs, decorators and more 

PDF Unlimited Build $1,695
Digital plans including unlimited build license

CAD + PDF Unlimited Build


This plan package is created in AutoCAD and delivered in .DWG format. CAD files are intended for use by design professionals, structural engineers, and builders to update plans for local building codes or to make revisions based on specific needs, lot requirements, and budget considerations. A complimentary PDF copy is included with this package for reference. CAD packages are delivered within 1 to 2 business days.
 
This package also comes with a multi-use building license, granting permission to construct the home an unlimited number of times, along with a copyright release for making revisions and printing unlimited copies.
 
For details on the specific CAD program used, please refer to the PLAN DETAILS section located above the floor plan on each plan page.

CAD + PDF Unlimited Build $2,195
2D electronic editable computer files
STEP 2 Need To Reverse This Plan?
STEP 3 CHOOSE YOUR FOUNDATION
STEP 4 OPTIONAL ADD-ONS
Subtotal:
$1195
FREE SHIPPING
 
Plan Details
See All Details
Finished Square Footage
1,061 Sq. Ft.
Main Level:
883 Sq. Ft.
Upper Level:
2,245 Sq. Ft.
Total:
Room Details
3
Bedrooms:
2
Full Baths:
1
Half Baths:
General House Information
3
Number of Stories:
25' 0"
Width:
50' 10"
Depth:
Single
Dwelling Number:
Unfinished Square Footage
21 Sq. Ft.
Porch:
GARAGE
0
Garage Size:
Exterior Style
Modern Farmhouse
Transitional
Collections
Split Bedroom
Foundation
Basement
Crawl Space
Daylight Basement
Monolithic Slab
Slab
Stem Wall Slab
Walkout Basement
Framing Information
Stick
Roof Framing:
2x4
Exterior Wall Framing:
Roof Pitch
12/12
Primary:
4/12
Secondary:
Insulation (R)
House And Ceiling Heights
8
First Floor Ceiling:
8
Second Floor Ceiling:
31' 0"
Maximum House Height:
Key Features
Dining Room
Double Vanity Sink
Family Room
Front Porch
Kitchen Island
Laundry 1st Fl
Loft / Balcony
L-Shaped
Primary Bdrm Main Floor
Peninsula / Eating Bar
Rec Room
Split Bedrooms
Suited for corner lot
Vaulted Ceilings
Walk-in Closet
Walk-in Pantry

Our Guarantees

  • Only the highest quality plans
  • Int’l Residential Code Compliant
  • Full structural details on all plans
  • Best plan price guarantee
  • Free modification Estimates
  • Builder-ready construction drawings
  • Expert advice from leading designers
  •  PDFs NOW!™ plans in minutes
  • 100% satisfaction guarantee
  • Free Home Building Organizer

See terms opt out anytime