15% off ALL House Plans Sitewide
15% off ALL House Plans Sitewide

House Plan: DFD-11929

See All 12 Photos > (photographs may reflect modified homes)
© copyright by designer
SQ FT
1,620
BEDS
3
BATHS
2
STORIES
2
CARS
1
HOUSE PLANS SALE 
START AT  $973.25
For questions and help, live chat, email or call us at 877-895-5299
Floor Plans
Click to Zoom In on Floor Plan
 
About House Plan 11929:
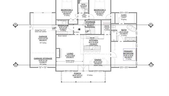
Offering 1,620 square feet of heated living space, this thoughtful plan delivers comfort, warmth, and practical day-to-day living. The kitchen features a spacious island, eating bar, and butler’s pantry, making it a natural gathering point for cooking and conversation. A vaulted great room enhances the open floor plan, filling the shared living spaces with light and an uplifting sense of space. The main-floor primary suite provides a relaxing retreat with a walk-in closet, double-vanity bath, and separate tub and shower. Two additional bedrooms sit nearby, creating a family-friendly layout with privacy where it matters. A mud room and first-floor laundry add convenience, while the upstairs bonus access offers room for expansion or hobbies. With its side-entry garage and covered front porch, this home welcomes you with charm and everyday livability.
House Plan Pricing
STEP 1 Select Your Package

PDF Single Build


Digital plans emailed to you in PDF format that allows for printing copies and sharing electronically with contractors, subs, decorators, and more. This package includes a license to build the home one time.

PDF Single Build $1,145
Most recommended package

PDF Unlimited Build


Digital plans with an unlimited build license emailed in PDF format, that allows for printing copies on a home printer or local print shop and sharing with contractors, subs, decorators and more 

PDF Unlimited Build $1,645
Digital plans including unlimited build license

CAD + PDF Unlimited Build


This plan package is created in AutoCAD and delivered in .DWG format. CAD files are intended for use by design professionals, structural engineers, and builders to update plans for local building codes or to make revisions based on specific needs, lot requirements, and budget considerations. A complimentary PDF copy is included with this package for reference. CAD packages are delivered within 1 to 2 business days.
 
This package also comes with a multi-use building license, granting permission to construct the home an unlimited number of times, along with a copyright release for making revisions and printing unlimited copies.
 
For details on the specific CAD program used, please refer to the PLAN DETAILS section located above the floor plan on each plan page.

CAD + PDF Unlimited Build $2,145
2D electronic editable computer files
STEP 2 Need To Reverse This Plan?
STEP 3 CHOOSE YOUR FOUNDATION
STEP 4 OPTIONAL ADD-ONS
Subtotal:
$1145
FREE SHIPPING
 
Plan Details
See All Details
Finished Square Footage
1,620 Sq. Ft.
Main Level:
1,620 Sq. Ft.
Total:
Room Details
3
Bedrooms:
2
Full Baths:
General House Information
2
Number of Stories:
58' 0"
Width:
40' 0"
Depth:
Single
Dwelling Number:
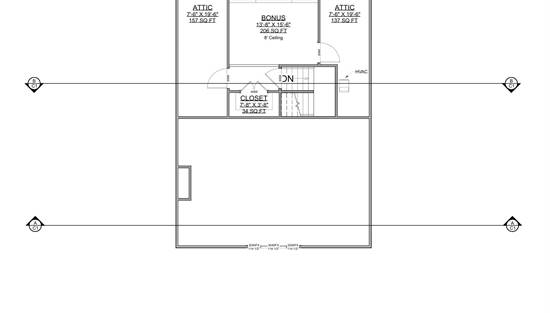
2nd Floor
Bonus Access:
Unfinished Square Footage
420 Sq. Ft.
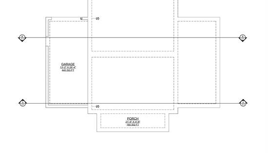
Garage:
144 Sq. Ft.
Porch:
240 Sq. Ft.
Bonus Room:
GARAGE
Side
Garage Location:
1
Garage Size:
Exterior Style
Barndominium
Farmhouse
Modern Farmhouse
Collections
Open Floor Plan
Foundation
Basement
Crawl Space
Daylight Basement
Monolithic Slab
Slab
Stem Wall Slab
Walkout Basement
Framing Information
Stick
Roof Framing:
2x4
Exterior Wall Framing:
Roof Pitch
8/12
Primary:
4/12
Secondary:
Insulation (R)
House And Ceiling Heights
8
First Floor Ceiling:
8
Second Floor Ceiling:
26' 7"
Maximum House Height:
Key Features
Attached
Bonus Room
Butler's Pantry
Covered Front Porch
Dining Room
Double Vanity Sink
Family Style
Fireplace
Kitchen Island
Laundry 1st Fl
L-Shaped
Primary Bdrm Main Floor
Mud Room
Open Floor Plan
Peninsula / Eating Bar
Rear-entry
Separate Tub and Shower
Storage Space
Suited for corner lot
Vaulted Great Room/Living
Vaulted Kitchen
Walk-in Closet

Our Guarantees

  • Only the highest quality plans
  • Int’l Residential Code Compliant
  • Full structural details on all plans
  • Best plan price guarantee
  • Free modification Estimates
  • Builder-ready construction drawings
  • Expert advice from leading designers
  •  PDFs NOW!™ plans in minutes
  • 100% satisfaction guarantee
  • Free Home Building Organizer