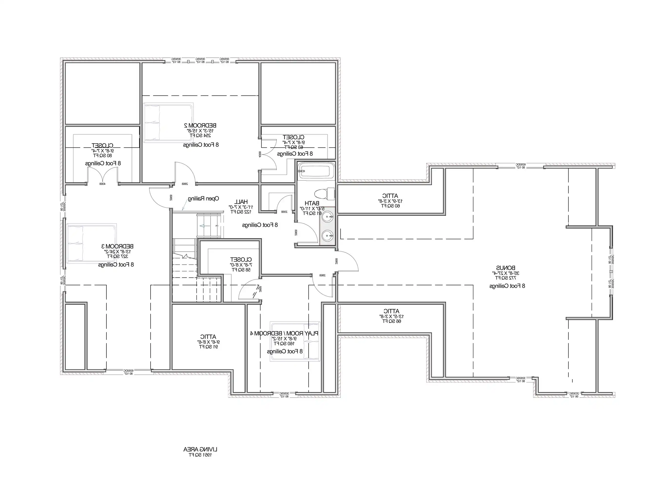
With 3,640 square feet of heated living space, this home offers a thoughtful layout designed for connection, comfort, and convenience. The kitchen serves as the heart of the home with its island, eating bar, and walk-in pantry, making everyday meals and entertaining effortless. A spacious great room with a fireplace creates a warm gathering space that flows naturally into the dining area. The main-floor primary suite provides a peaceful retreat with a double vanity, walk-in closet, and a separate tub and shower. Multiple additional rooms—including a library/media room, bonus room, mud room, and rec room—allow the home to adapt to changing needs. Split bedrooms offer privacy for family members or guests. With its covered front porch, airy deck, and side-entry garage, this plan blends comfort and function in a welcoming and family-friendly way.