15% off ALL House Plans Sitewide
15% off ALL House Plans Sitewide

House Plan: DFD-11931

See All 9 Photos > (photographs may reflect modified homes)
© copyright by designer
SQ FT
2,874
BEDS
4
BATHS
3.5
STORIES
2
CARS
1
HOUSE PLANS SALE 
START AT  $1,058.25
For questions and help, live chat, email or call us at 877-895-5299
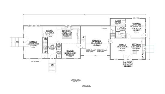
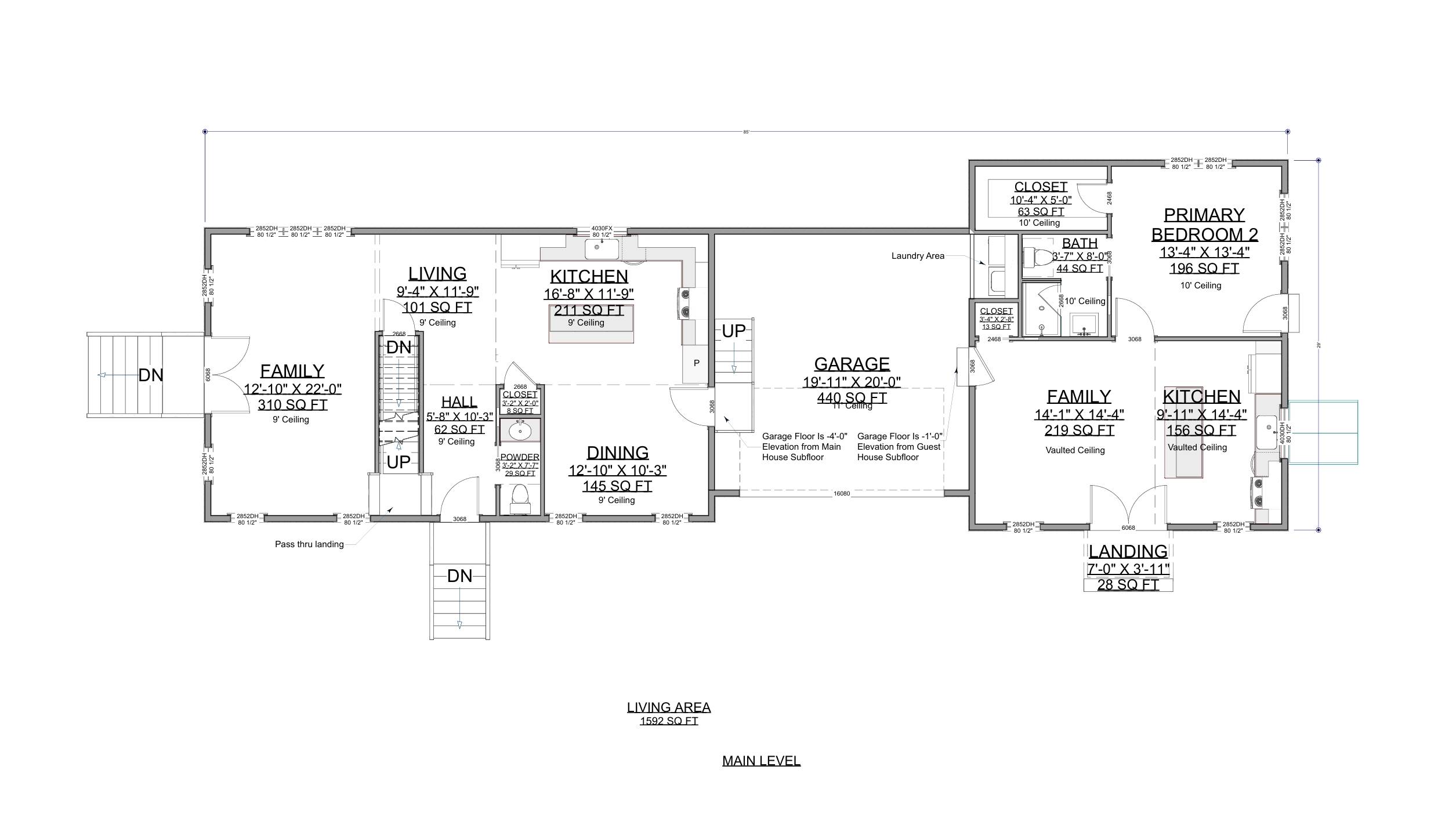
Floor Plans
Click to Zoom In on Floor Plan
 
About House Plan 11931:
Offering 2,874 square feet of heated living space, this thoughtful plan is ideal for families who want comfort paired with adaptable living arrangements. The highlight of the layout is its two primary suites—one on the main floor and one upstairs—each with generous closets, double vanities, and plenty of privacy. The kitchen includes a large island, peninsula, and pantry, shaping a warm and efficient workspace for everyday cooking. A comfortable family room sits at the center of the home, supported by a nearby dining area perfect for both casual meals and gatherings. A main-floor home office provides a quiet corner for productivity. The upper floor adds two additional bedrooms and flexible spaces that suit a variety of family needs. With its drive-under garage and welcoming layout, this home brings together comfort and functionality in a truly inviting way.
House Plan Pricing
STEP 1 Select Your Package

PDF Single Build


Digital plans emailed to you in PDF format that allows for printing copies and sharing electronically with contractors, subs, decorators, and more. This package includes a license to build the home one time.

PDF Single Build $1,245
Most recommended package

PDF Unlimited Build


Digital plans with an unlimited build license emailed in PDF format, that allows for printing copies on a home printer or local print shop and sharing with contractors, subs, decorators and more 

PDF Unlimited Build $1,745
Digital plans including unlimited build license

CAD + PDF Unlimited Build


This plan package is created in AutoCAD and delivered in .DWG format. CAD files are intended for use by design professionals, structural engineers, and builders to update plans for local building codes or to make revisions based on specific needs, lot requirements, and budget considerations. A complimentary PDF copy is included with this package for reference. CAD packages are delivered within 1 to 2 business days.
 
This package also comes with a multi-use building license, granting permission to construct the home an unlimited number of times, along with a copyright release for making revisions and printing unlimited copies.
 
For details on the specific CAD program used, please refer to the PLAN DETAILS section located above the floor plan on each plan page.

CAD + PDF Unlimited Build $2,245
2D electronic editable computer files
STEP 2 Need To Reverse This Plan?
STEP 3 CHOOSE YOUR FOUNDATION
STEP 4 OPTIONAL ADD-ONS
Subtotal:
$1245
FREE SHIPPING
 
Plan Details
See All Details
Finished Square Footage
1,592 Sq. Ft.
Main Level:
1,282 Sq. Ft.
Upper Level:
2,874 Sq. Ft.
Total:
Room Details
4
Bedrooms:
3
Full Baths:
1
Half Baths:
General House Information
2
Number of Stories:
85' 0"
Width:
29' 0"
Depth:
Single
Dwelling Number:
Unfinished Square Footage
440 Sq. Ft.
Garage:
15 Sq. Ft.
Porch:
GARAGE
Front
Garage Location:
1
Garage Size:
Exterior Style
Colonial
Traditional
Collections
In-Law Suite
Foundation
Basement
Crawl Space
Daylight Basement
Monolithic Slab
Slab
Stem Wall Slab
Walkout Basement
Framing Information
Stick
Roof Framing:
2x4
Exterior Wall Framing:
Roof Pitch
12/12
Primary:
14/12
Secondary:
Insulation (R)
House And Ceiling Heights
9
First Floor Ceiling:
8
Second Floor Ceiling:
30' 9"
Maximum House Height:
Key Features
2 Primary Suites
Attached
Dining Room
Double Vanity Sink
Drive-under
Family Room
Family Style
His and Hers Primary Closets
Home Office
Kitchen Island
Laundry 1st Fl
L-Shaped
Primary Bdrm Main Floor
Primary Bdrm Upstairs
Pantry
Peninsula / Eating Bar
Suited for corner lot
Walk-in Closet

Our Guarantees

  • Only the highest quality plans
  • Int’l Residential Code Compliant
  • Full structural details on all plans
  • Best plan price guarantee
  • Free modification Estimates
  • Builder-ready construction drawings
  • Expert advice from leading designers
  •  PDFs NOW!™ plans in minutes
  • 100% satisfaction guarantee
  • Free Home Building Organizer