15% off ALL House Plans Sitewide
15% off ALL House Plans Sitewide

House Plan: DFD-11936

See All 5 Photos > (photographs may reflect modified homes)
© copyright by designer
SQ FT
1,716
BEDS
3
BATHS
2
STORIES
2
CARS
2
HOUSE PLANS SALE 
START AT  $1,316.65
For questions and help, live chat, email or call us at 877-895-5299
Floor Plans
Click to Zoom In on Floor Plan
 
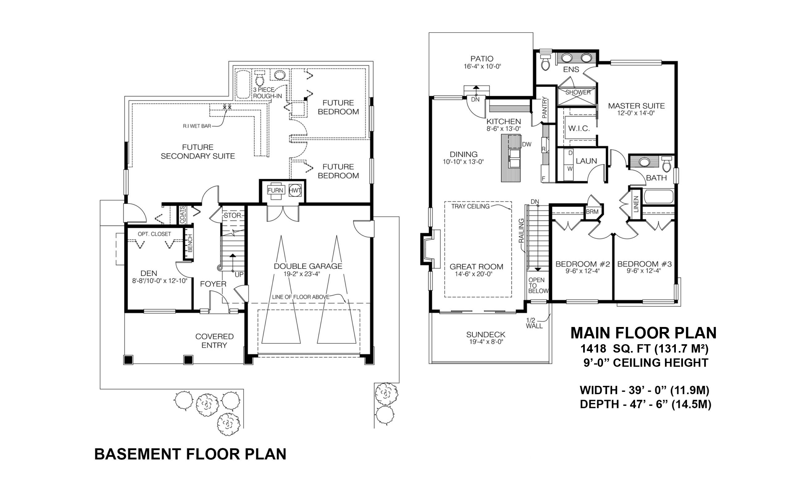
About House Plan 11936:

House Plan 11936 delivers a versatile two level layout designed to adapt to changing household needs. The main living spaces are located on the upper floor, creating bright, elevated views and seamless indoor outdoor flow, while the ground level offers a den and the option for a future two bedroom secondary suite. A covered front entry leads into a practical foyer with built in seating and storage, with the den positioned nearby and outfitted with a closet for added flexibility. Upstairs, the great room features a refined tray ceiling and a gas fireplace, anchoring the open living, dining, and kitchen areas. Sliding doors open to a front balcony with glass railing, while the dining area connects to a rear patio overlooking the backyard. The kitchen includes ample counter space, a corner pantry, and a central island with double sink that encourages easy conversation and everyday functionality. The primary suite is tucked away at the back of the home for privacy and includes a spacious ensuite with dual sinks, a shower stall, and a walk in closet with private access. Two front facing bedrooms share a three piece bathroom, with laundry and storage thoughtfully placed close by. A double garage connects directly to the foyer and provides additional access to the side yard and mechanical room. Finished with stucco, stone, and wood accents, along with mixed rooflines and decorative pilasters, this home offers 1,423 square feet of upper level living space with nine foot ceilings throughout.

 

House Plan Pricing
STEP 1 Select Your Package

PDF Single Build


Digital plans emailed to you in PDF format that allows for printing copies and sharing electronically with contractors, subs, decorators, and more. This package includes a license to build the home one time.

PDF Single Build $1,549
Most recommended package

5 Printed Sets + PDF


Includes 5 physical printed blueprint sets, shipped free via UPS within the U.S. Printed sets ship within 1 business day and are delivered within 3 – 5 business days. A complimentary PDF plan set is also emailed within 1 business day for easy sharing and local printing. These plans may be used to construct one home.

5 Printed Sets + PDF $1,712
5 Printed Sets + PDF

CAD + PDF Single Build


This plan package is created in AutoCAD and delivered in .DWG format. CAD files are intended for use by design professionals, structural engineers, and builders to update plans for local building codes or to make revisions based on specific needs, lot requirements, and budget considerations. A complimentary PDF copy is included with this package for reference. CAD packages are delivered within 1 to 2 business days.
 
This package also comes with a copyright release for making revisions and printing unlimited copies.

For details on the specific CAD program used, please refer to the PLAN DETAILS section located above the floor plan on each plan page.

CAD + PDF Single Build $2,876
2D electronic editable computer files

CAD + PDF Unlimited Build


This plan package is created in AutoCAD and delivered in .DWG format. CAD files are intended for use by design professionals, structural engineers, and builders to update plans for local building codes or to make revisions based on specific needs, lot requirements, and budget considerations. A complimentary PDF copy is included with this package for reference. CAD packages are delivered within 1 to 2 business days.
 
This package also comes with a multi-use building license, granting permission to construct the home an unlimited number of times, along with a copyright release for making revisions and printing unlimited copies.
 
For details on the specific CAD program used, please refer to the PLAN DETAILS section located above the floor plan on each plan page.

CAD + PDF Unlimited Build $5,658
2D electronic editable computer files
STEP 2 Need To Reverse This Plan?
STEP 3 CHOOSE YOUR FOUNDATION
STEP 4 OPTIONAL ADD-ONS
Subtotal:
$1549
FREE SHIPPING
 
Plan Details
See All Details
Finished Square Footage
1,091 Sq. Ft.
Main Level:
1,418 Sq. Ft.
Upper Level:
1,716 Sq. Ft.
Total:
Room Details
3
Bedrooms:
2
Full Baths:
General House Information
2
Number of Stories:
39' 0"
Width:
47' 6"
Depth:
Single
Dwelling Number:
Unfinished Square Footage
501 Sq. Ft.
Garage:
160 Sq. Ft.
Front Porch:
160 Sq. Ft.
Deck:
GARAGE
Front
Garage Location:
2
Garage Size:
Exterior Style
Contemporary
Modern
Collections
Canada
First Home
In-Law Suite
Open Floor Plan
PDFs Fast!
Foundation
Basement
Crawl Space
Walkout Basement
Framing Information
Truss
Roof Framing:
2x6
Exterior Wall Framing:
Roof Pitch
4/12
Primary:
Insulation (R)
Per IRC Climate Zones
House And Ceiling Heights
8
First Floor Ceiling:
9
Second Floor Ceiling:
25' 0"
Maximum House Height:
Key Features
Attached
Country Kitchen
Covered Front Porch
Deck
Double Vanity Sink
Drive-under
Family Style
Fireplace
Foyer
Front Porch
Front-entry
Great Room
Home Office
In-law Suite
Kitchen Island
Laundry 2nd Fl
Library/Media Rm
L-Shaped
Primary Bdrm Upstairs
Nook / Breakfast Area
Open Floor Plan
Pantry
Storage Space
Suited for sloping lot
Suited for view lot
Unfinished Space
Walk-in Closet
Walk-in Pantry

Our Guarantees

  • Only the highest quality plans
  • Int’l Residential Code Compliant
  • Full structural details on all plans
  • Best plan price guarantee
  • Free modification Estimates
  • Builder-ready construction drawings
  • Expert advice from leading designers
  •  PDFs NOW!™ plans in minutes
  • 100% satisfaction guarantee
  • Free Home Building Organizer