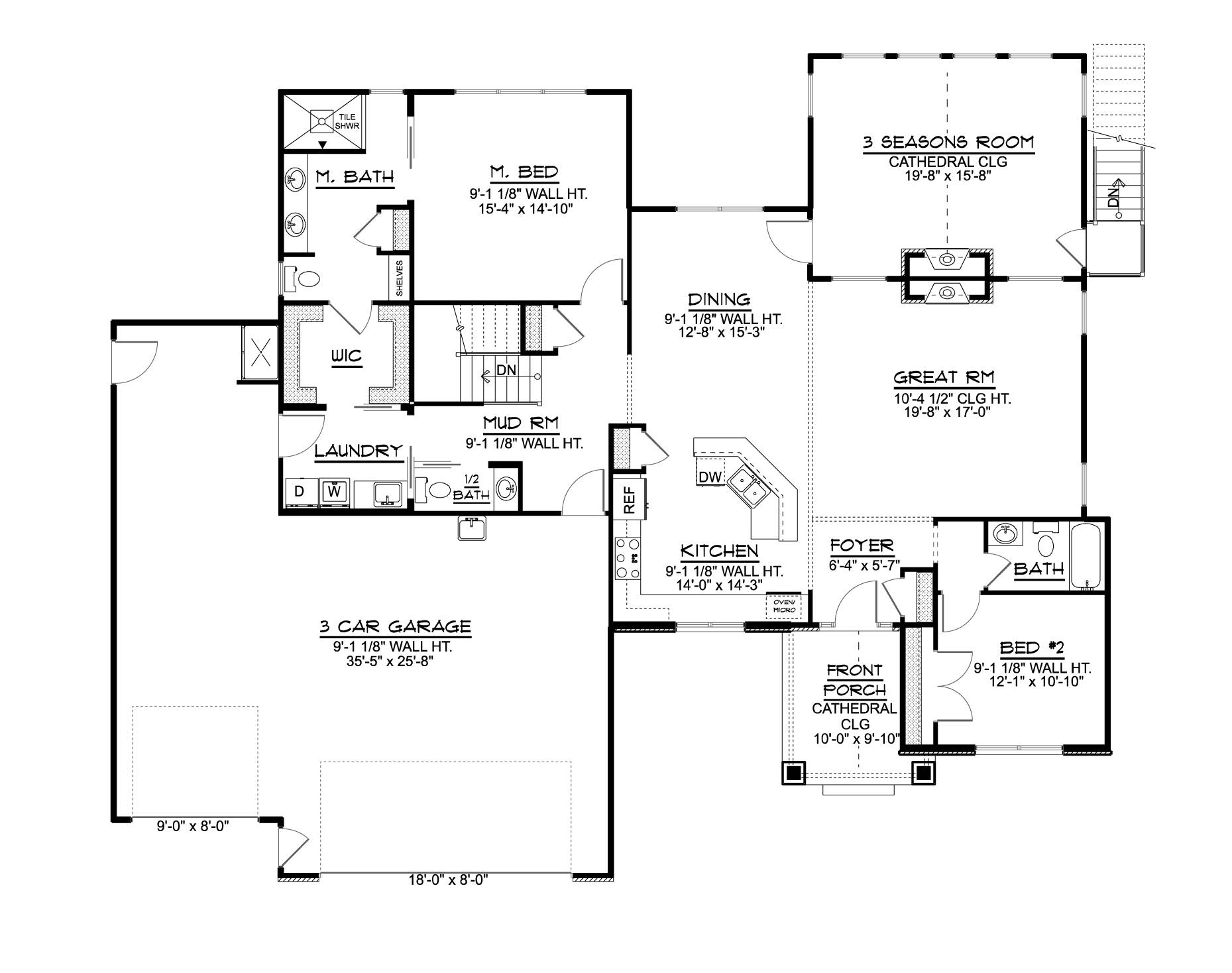
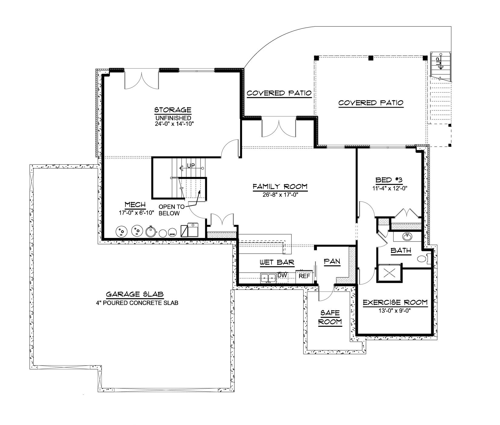
With 3,640 square feet of heated living space, this thoughtfully designed home delivers 2 bedrooms and 2.5 bathrooms across a flexible main-level and lower-level layout. The great room anchors the open floor plan and connects seamlessly to the dining area and kitchen for easy entertaining. The kitchen is well equipped with a central island, L-shaped counters, a pantry, and a walk-in pantry that offer generous storage and workspace. Practical spaces such as an exercise room, mud room, first-floor laundry, and ample storage enhance everyday comfort. The primary bedroom on the main floor serves as a private retreat with a walk-in closet and a well-appointed bath. Split secondary living areas provide balance and privacy throughout the home. Outdoor living is highlighted by covered porches, a screened porch or sunroom, and a deck that create inviting spaces to unwind.